Fnaim.fr
Menu

Achat Maison 4 pièces 105m² MONTIVILLIERS 76290

252 000 Honoraires charge vendeur

3 chambres Parking / Garage

Description du bien

MONTIVILLIERS - Nouveauté
Pavillon indépendant avec vue dégagée, offrant un potentiel d'aménagement interréssant.
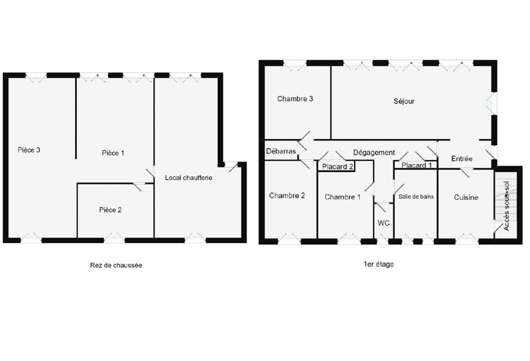
Vie de plain pied : entrée, séjour 34 m2 accès balcon exposé ouest, cuisine, trois chambres, salle de bains, wc. Travaux à prévoir
En rez de jardin: 90 m2 à aménager, 3 pièces avec fenêtres (chambres, bureau ou salle de jeux), atelier, chauffage gaz.
Paking. Garage. Jardin 715 m2. Secteur calme..« Les informations sur les risques auxquels ce bien est exposé sont disponibles sur le site Géorisques : www.georisques.gouv.fr »

Etat des risques et pollutions

Les informations sur les risques auxquels ce bien est exposé sont disponibles sur le site Géorisques : www.georisques.gouv.fr.

Caractéristiques du bien

Composition du bien

  • Type d'habitation : Maison
  • Nombre de chambres : 3
  • Nombre de salles de bain : 1
  • Cuisine : Type de cuisine Non communique

Aménagement du bien

  • Cave : Non
  • Garage / Parking : Oui
    • Surface habitable : 105 m²
    • Parking : Oui

    Localisation du bien

    MONTIVILLIERS (76290) , SEINE-MARITIME (76) - NORMANDIE

    Ce bien n'est pas géolocalisé, pour connaitre sa géolocalisation, merci de contacter l'agence.

    Consommation énergétique

    • F (413 kWh/m² an)
      F (91 kgCO2/m².an)
      Plus d'info
      413
      91
      91
    • DPE réalisé après le 1er juillet 2021.
    • Entre 3700 € TTC / an et 5050 € TTC / an
      01/01/2021
    • Logement à consommation énergétique excessive : classe F

    Nos professionnels vous accompagnent

    Contactez notre agence !

    46 PLACE FRANCOIS MITTERRAND 76290 MONTIVILLIERS

    Appeler l’agence Tél : 02 35 20 28 71

    * Champs obligatoires

    Nous vous informons de l’existence de la liste d’opposition au démarchage téléphonique « BLOCTEL » sur laquelle vous pouvez vous inscrire (https://www.bloctel.gouv.fr).

    En complétant le formulaire «CONTACTEZ NOTRE AGENCE », je reconnais expressément que je consens au traitement de mes données personnelles et que je dispose du droit de retirer mon consentement à tout moment en m'adressant à support@fnaim.fr.
    En savoir plus sur la gestion de vos données et droits : consulter nos mentions légales, « article 5/ Données à caractère personnel ».

    En envoyant ce message, vous acceptez les conditions d'utilisation du site. Plus d'infos