Fnaim.fr
Menu

Exclusivité
Réf. 1431

Achat Appartement 4 pièces 86m² ANGLET 64600

449 000 Honoraires charge vendeur

3 chambres Ascenseur

Description du bien

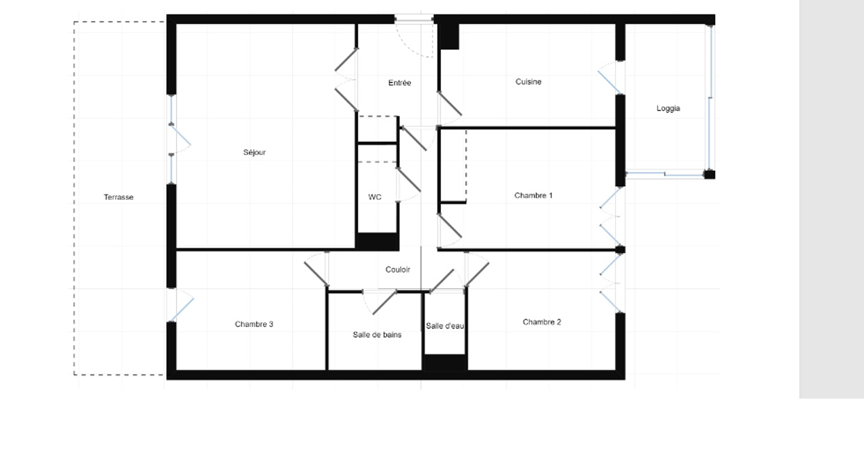
Au coeur du quartier Quintaou à Anglet,à deux pas des commerces/commodités tout en restant au calme,cet appartement T4 traversant de 80 m2 carrez environ (86m2 utiles avec la loggia/buanderia) offre une exposition est-ouest .
Situé dans une résidence intimiste avec ascenseur, l'entrée dessert la partie salon et salle à manger ouvrant sur une belle terrasse semi-couverte de 17m2 avec vue dégagée sur un espace vert en fait un espace de vie à part entière.
La cuisine séparée dispose en plus d'un espace buanderie (non compté dans la superficie carrez et très utile).
La partie nuit offre trois chambres, une salle d'eau, une salle de bain et un WC séparé. Une des chambres ouvre sur la terrasse.
Le bien dispose d'une cave au rez-de-chaussée pour du stockage, un local vélo commun et le parking est libre et aisé dans la résidence.
Appartement lumineux, avec de beaux volumes, idéalement situé à rénover, ce qui vous permet de le concevoir entièrement selon vos goûts et vos besoins.
DPE C GES C. Montant estimé des dépenses annuelles d'énergie pour un usage standard : entre 950EUR et 1350EUR par an, abonnements compris.Les informations sur les risques auxquels ce bien est exposé sont disponibles sur le site Géorisques.
Honoraires inclus à la charge du vendeur.

Etat des risques et pollutions

Les informations sur les risques auxquels ce bien est exposé sont disponibles sur le site Géorisques : www.georisques.gouv.fr.

Caractéristiques du bien

Composition du bien

  • Type d'habitation : Appartement
  • Cuisine : Type de cuisine Non communique
  • Nombre de pièce(s) : 4
  • Nombre de chambre(s) : 3
  • Salles de bain : 1

Aménagement du bien

Extérieur

  • Terrasse : Non
  • Balcon : Non

Partie Commune

  • Ascenseur : Oui
  • Surface habitable : 86 m²

Informations sur la copropriété

  • Bien soumis au statut de la copropriété
  • Nombre de lots : 75
  • Procédure en cours : Non

Localisation du bien

ANGLET (64600) , PYRENEES-ATLANTIQUES (64) - NOUVELLE-AQUITAINE

Ce bien n'est pas géolocalisé, pour connaitre sa géolocalisation, merci de contacter l'agence.

Consommation énergétique

  • C (111 kWh/m² an)
    C (21 kgCO2/m².an)
    Plus d'info
    111
    21
    21
  • DPE réalisé après le 1er juillet 2021.
  • Entre 950 € TTC / an et 1350 € TTC / an
    01/01/2021

Nos professionnels vous accompagnent

Contactez notre agence !

6 bis avenue de Biarritz 64600 ANGLET

Appeler l’agence Tél : 0745254128

* Champs obligatoires

Nous vous informons de l’existence de la liste d’opposition au démarchage téléphonique « BLOCTEL » sur laquelle vous pouvez vous inscrire (https://www.bloctel.gouv.fr).

En complétant le formulaire «CONTACTEZ NOTRE AGENCE », je reconnais expressément que je consens au traitement de mes données personnelles et que je dispose du droit de retirer mon consentement à tout moment en m'adressant à support@fnaim.fr.
En savoir plus sur la gestion de vos données et droits : consulter nos mentions légales, « article 5/ Données à caractère personnel ».

En envoyant ce message, vous acceptez les conditions d'utilisation du site. Plus d'infos