Fnaim.fr
Menu

Exclusivité
Réf. 445758ALBD

Achat Appartement 3 pièces 83m² PARIS 16ème

995 000 Honoraires charge acquéreur inclus : 4% TTC (955200 € hors honoraires)

2 chambres Balcon Ascenseur

Description du bien

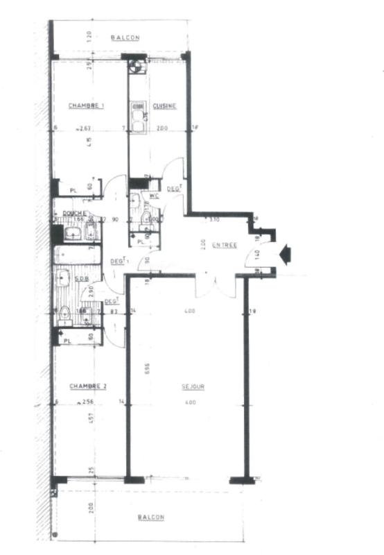
Idéalement situé entre la place Victor Hugo et la place du Trocadéro , appartement de 3 pièces climatisé en parfait état d'une surface de 83 m² avec balcon/terrasse aménagée de 12 m² et un second balcon donnant sur le jardin de la copropriété. Situé au 1er étage avec ascenseur d'un immeuble de standing des années 70 parfaitement entretenu avec gardien. Il se compose d'une entrée avec placard, d'un séjour de 28 m² exposé Sud donnant sur le balcon/terrasse, d'une cuisine équipée, de deux chambres avec placard (l'une donne sur le balcon/terrasse et l'autre sur le balcon coté jardin, d'une salle de bains avec toilettes, d'une salle d'eau et de toilettes invités. Vendu avec une cave. Box (avec borne de recharge et porte électrique) possible en sus du prix. Marché Saint Didier à deux pas. Sectorisation Janson de Sailly. Appartement clef en main. Faibles consommations électriques. Climatisation réversible.

Prix de vente : 995 000 euros Honoraires d'agence inclus. Honoraire de 4% TTC à la charge de l'acquéreur, soit un prix hors honoraires de 956 730 euros.
Copropriété de 113 lots dont 40 à usage d'habitation.
Pas de procédure en cours.
Charges de copropriété annuelles : 4965 euros (fond travaux Alur inclus)
Taxe foncière : 2675 euros
DPE : C GES : C
Montant estimé des dépenses annuelles d'énergie pour un usage standard : entre 990 euros et 1 400 euros (indexées aux années 2021, 2022 et 2023).

Pour visiter et vous accompagner dans votre projet, contactez Albéric d'AMECOURT au 06 14 83 85 67 ou par email : a.damecourt@proprietes-privees.com.
Conformément à l'article L.561-5 du Code monétaire et financier, une pièce d'identité pourra être demandée lors de la visite.
Cette annonce a été rédigée sous la responsabilité éditoriale d'Albéric d'AMECOURT, agent commercial immatriculé au RSAC de Nanterre n° 791 967 318, auprès de la SAS PROPRIETES PRIVEES, ZAC Le Chêne Ferré - 44 allée des Cinq Continents, 44120 Vertou - SIRET 487 624 777 00040 - RCS Nantes.
Carte professionnelle Transactions et Gestion n° CPI 4401 2016 000 010 388 (CCI Nantes - Saint-Nazaire). Garantie financière GALIAN-SMABTP (2 000 000 euros en Transaction / 120 000 euros en Gestion). Assurance responsabilité civile professionnelle GALIAN-SMABTP n° 28137.J.
Mandat réf : 445758
Le professionnel garantit et sécurise votre projet immobilier.

(4.00 % honoraires TTC à la charge de l'acquéreur.)
Copropriété de 113 lots - dont 40 lots habitation.

Charges annuelles : 4684 euros.
Albéric d'AMECOURT (EI) Agent Commercial - Numéro RSAC : 791967318 Nanterre - .
Les informations sur les risques auxquels ce bien est exposé sont disponibles sur le site Géorisques : www. georisques. gouv. fr

Etat des risques et pollutions

Les informations sur les risques auxquels ce bien est exposé sont disponibles sur le site Géorisques : www.georisques.gouv.fr.

Caractéristiques du bien

Composition du bien

  • Type d'habitation : Appartement
  • Cuisine : Equipée
  • Nombre de pièce(s) : 3
  • Nombre de chambre(s) : 2
  • Salles de bain : 1

Aménagement du bien

Extérieur

  • Terrasse : Non
  • Balcon : Oui

Partie Commune

  • Ascenseur : Oui
  • Surface habitable : 83 m²

Informations sur la copropriété

  • Bien soumis au statut de la copropriété
  • Nombre de lots : 113
  • Quote part charges courantes : 4684 €/an
  • Procédure en cours : Non

Localisation du bien

PARIS (75016) , PARIS (75) - ILE-DE-FRANCE

Consommation énergétique

  • C (125 kWh/m² an)
    C (12 kgCO2/m².an)
    Plus d'info
    125
    12
    12
  • DPE réalisé après le 1er juillet 2021.
  • Entre 1000 € TTC / an et 1370 € TTC / an
    Non communiqué

Nos professionnels vous accompagnent

Contactez notre agence !

44 Allée des Cinq Continents. ZAC Le Chêne Ferré 44120 VERTOU

Appeler l’agence Tél : 06 14 83 85 67

* Champs obligatoires

Nous vous informons de l’existence de la liste d’opposition au démarchage téléphonique « BLOCTEL » sur laquelle vous pouvez vous inscrire (https://www.bloctel.gouv.fr).

En complétant le formulaire «CONTACTEZ NOTRE AGENCE », je reconnais expressément que je consens au traitement de mes données personnelles et que je dispose du droit de retirer mon consentement à tout moment en m'adressant à support@fnaim.fr.
En savoir plus sur la gestion de vos données et droits : consulter nos mentions légales, « article 5/ Données à caractère personnel ».

En envoyant ce message, vous acceptez les conditions d'utilisation du site. Plus d'infos