Fnaim.fr
Menu

Réf. getkey_10077

Achat Appartement 1 pièce 28m² PARIS 17ème

299 000 Honoraires charge vendeur

1 chambre

Description du bien

À deux pas du métro Guy Môquet, au calme d'une charmante rue piétonne, découvrez ce joli studio de 29 m² niché au 3e étage avec ascenseur d'un bel immeuble ancien de 1930, au cachet typiquement parisien (façade en pierres et briques).

Entièrement tourné sur une cour intérieure dégagée, cet appartement séduit immédiatement par sa luminosité et son calme absolu, un véritable havre de paix en plein coeur de la ville.

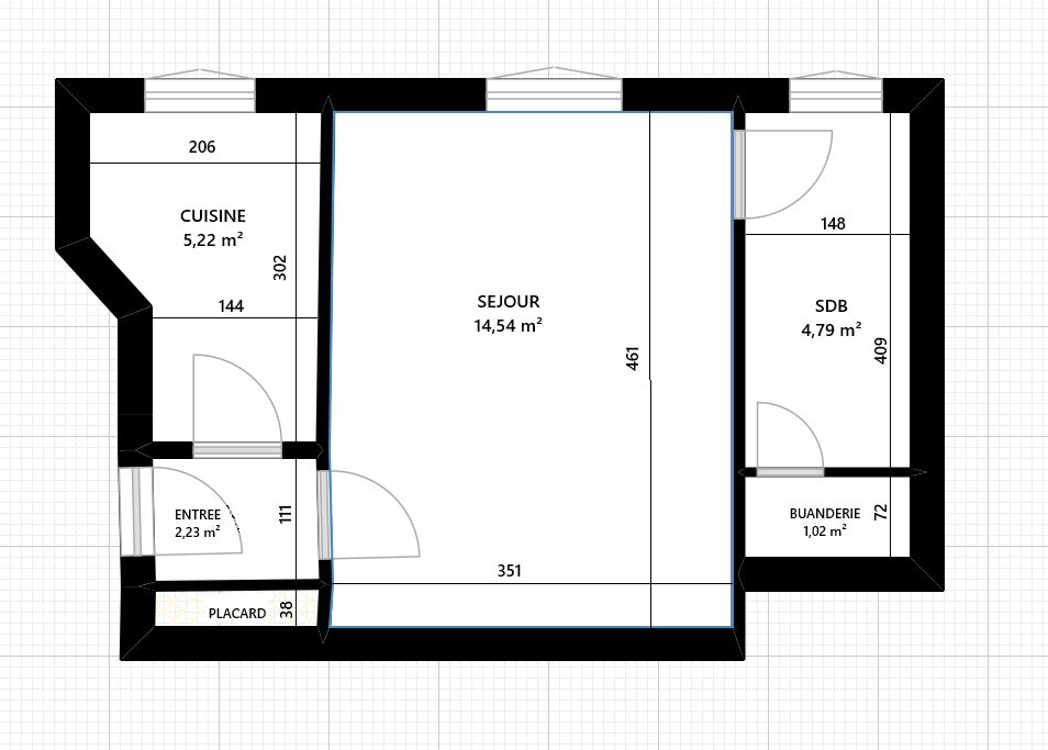
Parfaitement agencé, il se compose d'une entrée avec grand placard, d'une spacieuse cuisine pouvant facilement s'ouvrir sur le séjour pour créer un bel espace de vie convivial, d'un séjour lumineux avec grande porte-fenêtre, d'une salle de bains avec WC et fenêtre, ainsi que d'un espace buanderie indépendant, rare et pratique.

Le chauffage est assuré par le réseau urbain CPCU, gage de confort.

Faibles charges : 103 € / mois.

Ce bien est idéal pour un premier achat, un pied-à-terre parisien ou un investissement locatif de qualité.

Une opportunité rare dans un secteur recherché, alliant charme de l'ancien, calme et fonctionnalité.

À visiter sans tarder !

Bien présenté par Agences de France par délégation.
Agences de France - SIREN : 899413603 - Titulaire de la carte T : 29012021000000009 non habilité à percevoir des fonds

Etat des risques et pollutions

Les informations sur les risques auxquels ce bien est exposé sont disponibles sur le site Géorisques : www.georisques.gouv.fr.

Caractéristiques du bien

Composition du bien

  • Type d'habitation : Appartement
  • Cuisine : Simple
  • Nombre de pièce(s) : 1
  • Nombre de chambre(s) : 1
  • Salles de bain : 1

Aménagement du bien

Extérieur

  • Terrasse : Non
  • Balcon : Non

Partie Commune

  • Ascenseur : Non
  • Surface habitable : 28 m²

Localisation du bien

PARIS 17 (75017) , PARIS (75) - ILE-DE-FRANCE

Ce bien n'est pas géolocalisé, pour connaitre sa géolocalisation, merci de contacter l'agence.

Consommation énergétique

  • E (346 kWh/m² an)
    D (45 kgCO2/m².an)
    Plus d'info
    346
    45
    45
  • DPE réalisé après le 1er juillet 2021.
  • Entre 759 € TTC / an et 1027 € TTC / an
    Non communiqué
  • Logement à consommation énergétique excessive : classe E

Nos professionnels vous accompagnent

Contactez notre agence !

38 rue Jim Sevellec 29200 BREST

Appeler l’agence Tél : 06 15 25 04 40

* Champs obligatoires

Nous vous informons de l’existence de la liste d’opposition au démarchage téléphonique « BLOCTEL » sur laquelle vous pouvez vous inscrire (https://www.bloctel.gouv.fr).

En complétant le formulaire «CONTACTEZ NOTRE AGENCE », je reconnais expressément que je consens au traitement de mes données personnelles et que je dispose du droit de retirer mon consentement à tout moment en m'adressant à support@fnaim.fr.
En savoir plus sur la gestion de vos données et droits : consulter nos mentions légales, « article 5/ Données à caractère personnel ».

En envoyant ce message, vous acceptez les conditions d'utilisation du site. Plus d'infos