Fnaim.fr
Menu

Réf. 450..ADA

Achat Appartement 2 pièces 47m² TOUQUES 14800

215 000 Honoraires charge vendeur

1 chambre Balcon Ascenseur Parking / Garage

Description du bien

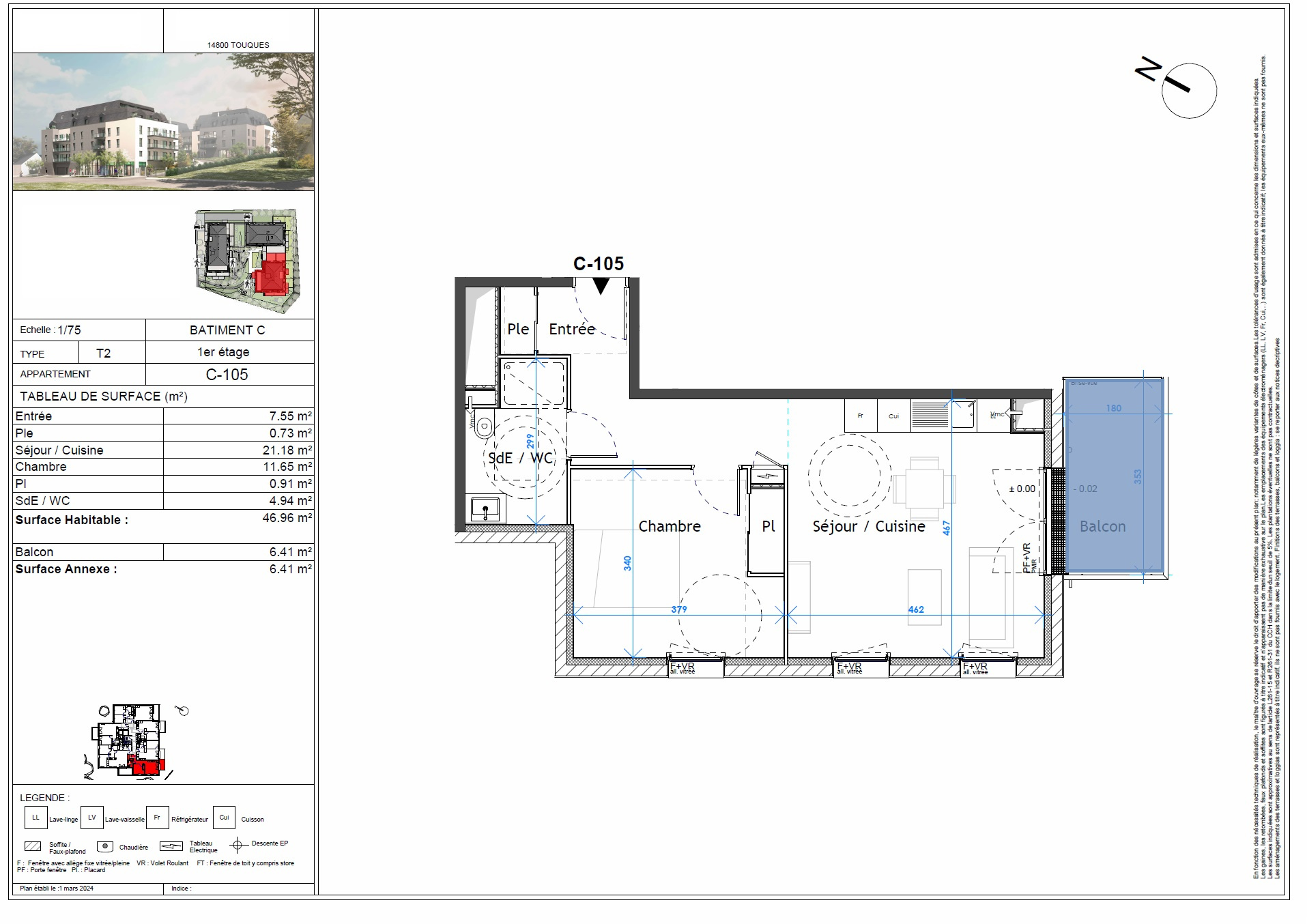
Nuances immobilières vous propose aux portes de Deauville-Trouville, à Touques sur les hauteurs, un Appartement de 2pièces de 47m2 au premier étage au calme avec ascenseur.
Une Pièce de vie principale de 21m2 ouverte sur le balcon de 6m2, une chambre de 11,65m2 avec placard, puis une salle d'eau avec wc.
Parking en sous sol compris dans le prix.
Dernières normes phoniques et thermiques
Habitable 3T 2026
'Les informations sur les risques auxquels ce bien est exposé sont disponibles sur le site Géorisques : www.georisques.gouv.fr'.

Etat des risques et pollutions

Les informations sur les risques auxquels ce bien est exposé sont disponibles sur le site Géorisques : www.georisques.gouv.fr.

Caractéristiques du bien

Composition du bien

  • Type d'habitation : Appartement
  • Cuisine : Type de cuisine Non communique
  • Nombre de pièce(s) : 2
  • Nombre de chambre(s) : 1

Aménagement du bien

Extérieur

  • Terrasse : Non
  • Balcon : Oui

Partie Commune

  • Ascenseur : Oui
  • Surface habitable : 47 m²
  • Parking : Oui

Informations sur la copropriété

  • Bien soumis au statut de la copropriété
  • Nombre de lots : 65
  • Quote part charges courantes : 900 €/an
  • Procédure en cours : Non

Localisation du bien

TOUQUES (14800) , CALVADOS (14) - NORMANDIE

Ce bien n'est pas géolocalisé, pour connaitre sa géolocalisation, merci de contacter l'agence.

Consommation énergétique

  • C (114 kWh/m² an)
    C (20 kgCO2/m².an)
    Plus d'info
    114
    20
    20
  • DPE réalisé après le 1er juillet 2021.
  • Entre 560 € TTC / an et 740 € TTC / an
    01/01/2023

Nos professionnels vous accompagnent

Contactez notre agence !

10 rue de l'Oratoire 14000 CAEN

Appeler l’agence Tél : 0231084040

* Champs obligatoires

Nous vous informons de l’existence de la liste d’opposition au démarchage téléphonique « BLOCTEL » sur laquelle vous pouvez vous inscrire (https://www.bloctel.gouv.fr).

En complétant le formulaire «CONTACTEZ NOTRE AGENCE », je reconnais expressément que je consens au traitement de mes données personnelles et que je dispose du droit de retirer mon consentement à tout moment en m'adressant à support@fnaim.fr.
En savoir plus sur la gestion de vos données et droits : consulter nos mentions légales, « article 5/ Données à caractère personnel ».

En envoyant ce message, vous acceptez les conditions d'utilisation du site. Plus d'infos