Fnaim.fr
Menu

Réf. 10-12284-1036

Achat Appartement 3 pièces 83m²

585 000 Honoraires charge vendeur

2 chambres Ascenseur Parking / Garage

Description du bien


Exclusivité !
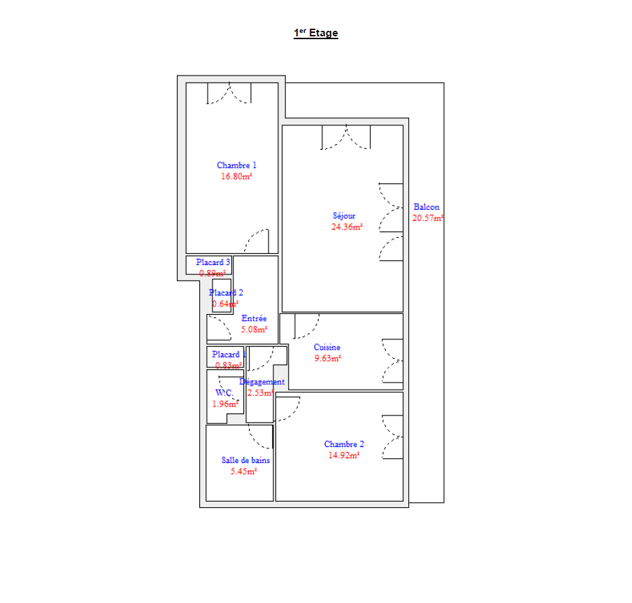
Au coeur de Cabourg, venez découvrir ce bel appartement de trois pièces principales situé dans une résidence de standing, sécurisée, avec ascenseur et gardien.
Il se compose d'une entrée avec placard, d'une salle de bains équipée à la fois d'une douche et d'une baignoire, d'un WC indépendant, de deux grandes chambres, d'une cuisine aménagée et équipée, ainsi que d'un spacieux salon/séjour.
Vous serez séduit par sa vue imprenable sur la mer et son grand balcon d'angle de 20,57 m², idéal pour profiter pleinement du cadre exceptionnel.
Une place de parking en sous-sol complète ce bien rare.

Situé dans un secteur recherché, à deux pas de la plage et des commerces, vous pourrez tout faire à pied.

Montant estimé des dépenses annuelles d'énergie pour un usage standard : entre 1770 euros et 2 440 euros par an - prix moyens des énergies indexés au 1° janvier 2021 (abonnement compris)
Les informations sur les risques auxquels ce bien est exposé sont disponibles sur le site Géorisques : www. georisques. gouv. fr

Etat des risques et pollutions

Les informations sur les risques auxquels ce bien est exposé sont disponibles sur le site Géorisques : www.georisques.gouv.fr.

Caractéristiques du bien

Composition du bien

  • Type d'habitation : Appartement
  • Cuisine : Type de cuisine Non communique
  • Nombre de pièce(s) : 3
  • Nombre de chambre(s) : 2
  • Salles de bain : 1

Aménagement du bien

Extérieur

  • Terrasse : Non
  • Balcon : Non

Partie Commune

  • Ascenseur : Oui
  • Surface habitable : 83 m²
  • Parking : Oui

Informations sur la copropriété

  • Bien soumis au statut de la copropriété
  • Nombre de lots : 311
  • Quote part charges courantes : 2579 €/an
  • Procédure en cours : Non

Localisation du bien

Ce bien n'est pas géolocalisé, pour connaitre sa géolocalisation, merci de contacter l'agence.

Consommation énergétique

  • E (279 kWh/m² an)
    B (9 kgCO2/m².an)
    Plus d'info
    279
    9
    9
  • DPE réalisé après le 1er juillet 2021.
  • Entre 1770 € TTC / an et 2440 € TTC / an
    Non communiqué

Nos professionnels vous accompagnent

Contactez notre agence !

57 AVENUE DE LA MER 14390 CABOURG

Appeler l’agence Tél : 0231916868

* Champs obligatoires

Nous vous informons de l’existence de la liste d’opposition au démarchage téléphonique « BLOCTEL » sur laquelle vous pouvez vous inscrire (https://www.bloctel.gouv.fr).

En complétant le formulaire «CONTACTEZ NOTRE AGENCE », je reconnais expressément que je consens au traitement de mes données personnelles et que je dispose du droit de retirer mon consentement à tout moment en m'adressant à support@fnaim.fr.
En savoir plus sur la gestion de vos données et droits : consulter nos mentions légales, « article 5/ Données à caractère personnel ».

En envoyant ce message, vous acceptez les conditions d'utilisation du site. Plus d'infos