Fnaim.fr
Menu

Réf. 559.AMP

Achat Appartement 3 pièces 54m² COURSEULLES SUR MER 14470

217 000 Honoraires charge vendeur

2 chambres Balcon Parking / Garage

Description du bien

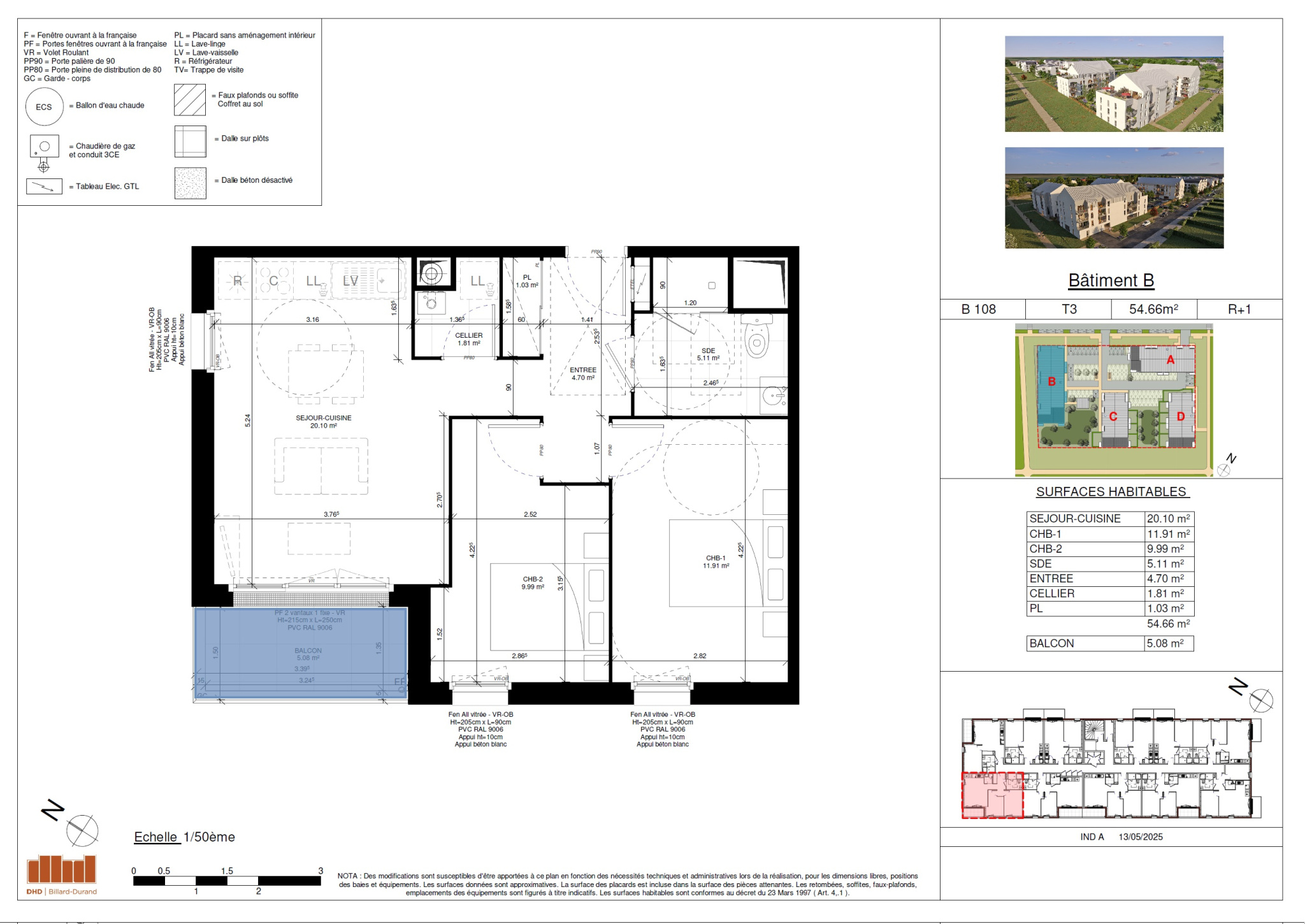
Nuances immobilières vous propose au Nord Ouest de Caen, à COURSEULLES SUR MER, au sein d'un environnement résidentiel composé de 4 résidences de 3 étages, un appartement exposé Sud et Ouest.
Ici, nous vous présentons un 3Pièces de 54m2 au premier étage bénéficiant d'un balcon, vendu avec 1 parking privé.
Cet appartement se compose d'une entrée avec placard, d'un espace séjour salon de 20m2 ouvrant sur l'extérieur, un coin cuisine avec fenêtre, une salle d'eau avec wc, et deux chambres dont une de plus de 11m2.
Dernières normes phoniques et thermiques. Commerces, marché, boulangerie, à 9 minutes en vélo.
Habitable été 2027.
'Les informations sur les risques auxquels ce bien est exposé sont disponibles sur le site Géorisques : www.georisques.gouv.fr'.

Etat des risques et pollutions

Les informations sur les risques auxquels ce bien est exposé sont disponibles sur le site Géorisques : www.georisques.gouv.fr.

Caractéristiques du bien

Composition du bien

  • Type d'habitation : Appartement
  • Cuisine : Type de cuisine Non communique
  • Nombre de pièce(s) : 3
  • Nombre de chambre(s) : 2

Aménagement du bien

Extérieur

  • Terrasse : Non
  • Balcon : Oui

Partie Commune

  • Ascenseur : Non
  • Surface habitable : 54 m²
  • Parking : Oui

Informations sur la copropriété

  • Bien soumis au statut de la copropriété
  • Nombre de lots : 70
  • Quote part charges courantes : 950 €/an
  • Procédure en cours : Non

Localisation du bien

COURSEULLES SUR MER (14470) , CALVADOS (14) - NORMANDIE

Ce bien n'est pas géolocalisé, pour connaitre sa géolocalisation, merci de contacter l'agence.

Consommation énergétique

DPE non soumis
mention indiquée sous la responsabilité de l’agence immobilière

Nos professionnels vous accompagnent

Contactez notre agence !

10 rue de l'Oratoire 14000 CAEN

Appeler l’agence Tél : 0231084040

* Champs obligatoires

Nous vous informons de l’existence de la liste d’opposition au démarchage téléphonique « BLOCTEL » sur laquelle vous pouvez vous inscrire (https://www.bloctel.gouv.fr).

En complétant le formulaire «CONTACTEZ NOTRE AGENCE », je reconnais expressément que je consens au traitement de mes données personnelles et que je dispose du droit de retirer mon consentement à tout moment en m'adressant à support@fnaim.fr.
En savoir plus sur la gestion de vos données et droits : consulter nos mentions légales, « article 5/ Données à caractère personnel ».

En envoyant ce message, vous acceptez les conditions d'utilisation du site. Plus d'infos