Fnaim.fr
Menu

Exclusivité
Réf. 14167

Achat Maison 4 pièces 113m² ST JACUT DE LA MER 22750

556 500 Honoraires charge acquéreur inclus : 5% TTC (528675 € hors honoraires)

3 chambres Jardin

Description du bien

EXCLUSIVITE ARMOR CONSEIL IMMOBILIER

À seulement 200 mètres de la plage, au coeur de l'extra-centre de la presqu'île, découvrez une opportunité unique d'acquérir une maison neuve dans un environnement aussi recherché que préservé.

Cette future réalisation, dont le démarrage des travaux est imminent, vous offre la possibilité rare de devenir propriétaire d'un bien aux dernières normes de construction (RE2020), alliant confort moderne, performance énergétique et qualité de vie incomparable.
Pensée pour répondre aux exigences actuelles, cette maison proposera des prestations de qualité, une conception optimisée et des espaces de vie lumineux, le tout dans un cadre privilégié à proximité immédiate de la mer.

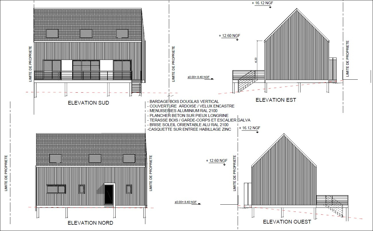
Cette maison en ossature bois et laine de bois est composée au rez-de-chaussée d'une belle pièce de vie lumineuse avec grande cuisine, d'une salle d'eau, un wc et une terrasse plein sud.
A l'étage un palier desservant 3 chambres, une salle de bains et un wc.
Le tout sur un terrain de 417 m2.

Prestations haut de gamme !

Fin des travaux en octobre 2026, à voir très rapidement !

Etat des risques et pollutions

Les informations sur les risques auxquels ce bien est exposé sont disponibles sur le site Géorisques : www.georisques.gouv.fr.

Caractéristiques du bien

Composition du bien

  • Type d'habitation : Maison
  • Nombre de chambres : 3
  • Nombre de salles de bain : 2
  • Cuisine : Type de cuisine Non communique

Aménagement du bien

  • Cave : Non
  • Garage / Parking : Non
    • Surface habitable : 113 m²

    Localisation du bien

    ST JACUT DE LA MER (22750) , COTES-D'ARMOR (22) - BRETAGNE

    Ce bien n'est pas géolocalisé, pour connaitre sa géolocalisation, merci de contacter l'agence.

    Consommation énergétique

    DPE non soumis
    mention indiquée sous la responsabilité de l’agence immobilière

    Nos professionnels vous accompagnent

    Contactez notre agence !

    37 Bis Grande Rue 22750 ST JACUT DE LA MER

    Appeler l’agence Tél : 02 96 87 05 44

    * Champs obligatoires

    Nous vous informons de l’existence de la liste d’opposition au démarchage téléphonique « BLOCTEL » sur laquelle vous pouvez vous inscrire (https://www.bloctel.gouv.fr).

    En complétant le formulaire «CONTACTEZ NOTRE AGENCE », je reconnais expressément que je consens au traitement de mes données personnelles et que je dispose du droit de retirer mon consentement à tout moment en m'adressant à support@fnaim.fr.
    En savoir plus sur la gestion de vos données et droits : consulter nos mentions légales, « article 5/ Données à caractère personnel ».

    En envoyant ce message, vous acceptez les conditions d'utilisation du site. Plus d'infos