Fnaim.fr
Menu

Exclusivité
Réf. TAPP937985

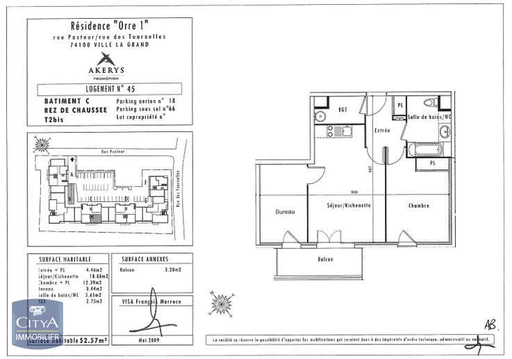
Achat Appartement 3 pièces 52m² VILLE LA GRAND 74100

195 000 Honoraires charge vendeur

1 chambre Balcon Ascenseur Parking / Garage

Description du bien

INVESTISSEUR/ vente d'un appartement 3 pièces (T2bis) de 52m2 à Ville-la-Grand, avec balcon, 2 places de parking. - VENTE
Découvrez ce charmant appartement 3 pièces de 52 m², situé dans une résidence récente (2009), au cœur d'un environnement agréable et dynamique à Ville-la-Grand, à seulement 8 minutes à pied du CEVA et à proximité immédiate du tramway ligne 17.

Situé en rez-de-chaussée sur 3 étages, ce bien offre une distribution fonctionnelle et optimisée, comprenant : une chambre de 12 m2, un bureau ou chambre d'appoint de 8m2, un séjour lumineux de 18m2 ouvrant sur un balcon exposé Sud-Ouest de 5 m², et enfin un cellier de 2.8m2.
Chauffage individuel électrique par radiateurs

Atout rare dans le secteur :
Deux places de stationnement incluses (extérieur + sous-sol)
Sa proximité avec le CEVA et les transports transfrontaliers en fait un emplacement particulièrement recherché et sécurisé pour un investissement pérenne.
Carrefour Market et salle de fitness à proximité, accessible à pied

Il s'agit d'une opportunité idéale pour investir dans un secteur dynamique à forte demande locative.
Contactez Laurent Chevalier pour organiser une visite :lchevalier@citya.com ou 06 29 37 62 06.

À très bientôt pour découvrir ce bien !. Le bien est soumis au statut de la copropriété , la quote-part budget prévisionnel (dépenses courantes) est de 1 100,00 euros/an.
Honoraires à la charge du vendeur.
Vous pouvez consulter les barèmes d'honoraires à l'adresse suivante : https://www.citya.com/agences-immobilieres/annemasse-74100/199 . Montant estimé des dépenses annuelles d'énergie pour un usage standard : entre 890 et 1 260 euros. Prix moyens des énergies indexés en 2021. Les informations sur les risques auxquels ce bien est exposé sont disponibles sur le site Géorisques : https://www.georisques.gouv.fr

Etat des risques et pollutions

Les informations sur les risques auxquels ce bien est exposé sont disponibles sur le site Géorisques : www.georisques.gouv.fr.

Caractéristiques du bien

Composition du bien

  • Type d'habitation : Appartement
  • Cuisine : Simple
  • Nombre de pièce(s) : 3
  • Nombre de chambre(s) : 1
  • Salles de bain : 1

Aménagement du bien

Extérieur

  • Terrasse : Non
  • Balcon : Oui

Partie Commune

  • Ascenseur : Oui
  • Surface habitable : 52 m²
  • Parking : Oui

Informations sur la copropriété

  • Bien soumis au statut de la copropriété
  • Quote part charges courantes : 1100 €/an
  • Procédure en cours : Non

Localisation du bien

VILLE LA GRAND (74100) , HAUTE-SAVOIE (74) - AUVERGNE-RHÔNE-ALPES

Consommation énergétique

  • D (230 kWh/m² an)
    B (7 kgCO2/m².an)
    Plus d'info
    230
    7
    7
  • DPE réalisé après le 1er juillet 2021.
  • Entre 890 € TTC / an et 1260 € TTC / an
    01/01/2021

Nos professionnels vous accompagnent

Contactez notre agence !

9, rue de la Gare 74100 ANNEMASSE

Appeler l’agence Tél : 04 50 31 84 22

* Champs obligatoires

Nous vous informons de l’existence de la liste d’opposition au démarchage téléphonique « BLOCTEL » sur laquelle vous pouvez vous inscrire (https://www.bloctel.gouv.fr).

En complétant le formulaire «CONTACTEZ NOTRE AGENCE », je reconnais expressément que je consens au traitement de mes données personnelles et que je dispose du droit de retirer mon consentement à tout moment en m'adressant à support@fnaim.fr.
En savoir plus sur la gestion de vos données et droits : consulter nos mentions légales, « article 5/ Données à caractère personnel ».

En envoyant ce message, vous acceptez les conditions d'utilisation du site. Plus d'infos