Fnaim.fr
Menu

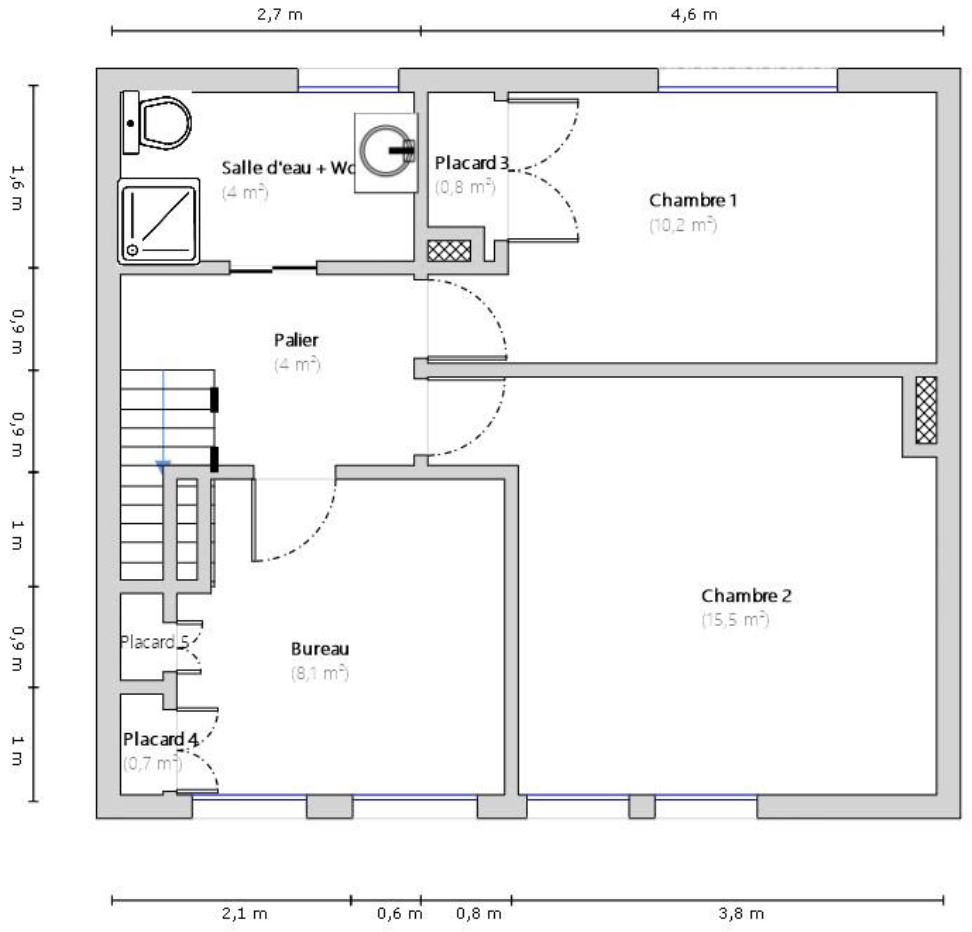
Achat Maison 5 pièces 97m² ABBEVILLE 80100

198 000 Honoraires charge vendeur

3 chambres Jardin Parking / Garage

Description du bien

Proche du centre et à proximité des écoles, collèges et lycées, cette maison possède un salon relié en L avec la salle à manger. La cuisine dînatoire est équipée. 3 chambres à l'étage ainsi que la salle d'eau, WC à chaque niveau, sous sol complet, garage. Double vitrage avec volets élec, chauffage économique avec poêle a bois doublé d'une chaudière gaz, fibre. Terrasse avec auvent et store motorisé. Contactez: Thomas CADIX: O6 76 6O 17 O5

Etat des risques et pollutions

Les informations sur les risques auxquels ce bien est exposé sont disponibles sur le site Géorisques : www.georisques.gouv.fr.

Caractéristiques du bien

Composition du bien

  • Type d'habitation : Maison
  • Nombre de chambres : 3
  • Cuisine : Equipée

Aménagement du bien

  • Cave : Non
  • Garage / Parking : Oui
    • Surface habitable : 97 m²
    • Parking : Oui

    Informations sur la copropriété

    • Bien soumis au statut de la copropriété
    • Nombre de lots : 57
    • Procédure en cours : Non

    Localisation du bien

    ABBEVILLE (80100) , SOMME (80) - HAUTS-DE-FRANCE

    Ce bien n'est pas géolocalisé, pour connaitre sa géolocalisation, merci de contacter l'agence.

    Consommation énergétique

    • D (231 kWh/m² an)
      C (28 kgCO2/m².an)
      Plus d'info
      231
      28
      28
    • DPE réalisé après le 1er juillet 2021.
    • Entre 1710 € TTC / an et 2380 € TTC / an
      01/01/2023

    Nos professionnels vous accompagnent

    Contactez notre agence !

    43 GRANDE RUE 80460 AULT

    Appeler l’agence Tél : 0676601705

    * Champs obligatoires

    Nous vous informons de l’existence de la liste d’opposition au démarchage téléphonique « BLOCTEL » sur laquelle vous pouvez vous inscrire (https://www.bloctel.gouv.fr).

    En complétant le formulaire «CONTACTEZ NOTRE AGENCE », je reconnais expressément que je consens au traitement de mes données personnelles et que je dispose du droit de retirer mon consentement à tout moment en m'adressant à support@fnaim.fr.
    En savoir plus sur la gestion de vos données et droits : consulter nos mentions légales, « article 5/ Données à caractère personnel ».

    En envoyant ce message, vous acceptez les conditions d'utilisation du site. Plus d'infos