Fnaim.fr
Menu

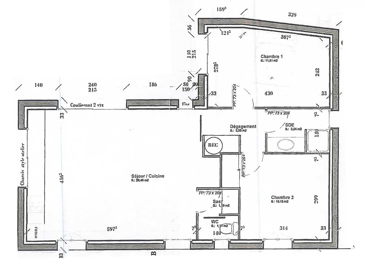
Achat Maison 3 pièces 59m²

250 000 Honoraires charge vendeur

2 chambres Jardin Parking / Garage

Description du bien


SAINTE-SOULLE - proche DOMPIERRE SUR MER

Tres Lumineuse, pas de vis a vis, sous sol accessible par l'extérieur

MAISON de plain-pied d'environ 59 m2 construite en 2014 comprenant : piece de vie de 28, 5 m2 avec cuisine équipée, vaste baie vitrée plein sud sur terrasse, deux chambres, sde, WC indépendant, placards.

Accès facile aux transports en commun avec des arrêts de bus à moins de 700 mètres
Fibre optique déployée pour une connectivité optimal
La parcelle de 200 m2 entoure la maison, place de parking privative
cave de 34 m2

A visiter sans tarder.

Prix : 250.000 Euro (honoraires à la charge du vendeur).

DPE : Classe C -162.5 kWh/m²/an
GES : Classe B - 6.2 kg CO?/m²/an

N° de mandat 3161- Frais d'agence Inclus à la charge Vendeur- Bien hors copropriété. Pour visiter, ou pour toutes informations, contactez votre agence BLOWSENS Immobilier au 05.16.40.50.20. Toutes nos annonces sont disponibles sur notre site internet : www.blowsens.fr
Les informations sur les risques auxquels ce bien est exposé sont disponibles sur le site Géorisques : www.georisques.gouv.fr


Etat des risques et pollutions

Les informations sur les risques auxquels ce bien est exposé sont disponibles sur le site Géorisques : www.georisques.gouv.fr.

Caractéristiques du bien

Composition du bien

  • Type d'habitation : Maison
  • Nombre de chambres : 2
  • Cuisine : Type de cuisine Non communique

Aménagement du bien

  • Cave : Non
  • Garage / Parking : Oui
    • Surface habitable : 59 m²
    • Parking : Oui

    Localisation du bien

    Ce bien n'est pas géolocalisé, pour connaitre sa géolocalisation, merci de contacter l'agence.

    Consommation énergétique

    • C (162 kWh/m² an)
      B (6 kgCO2/m².an)
      Plus d'info
      162
      6
      6
    • DPE réalisé après le 1er juillet 2021.
    • Entre 740 € TTC / an et 1010 € TTC / an
      Non communiqué

    Nos professionnels vous accompagnent

    Contactez notre agence !

    73 rue de l'Aunis 17220 STE SOULLE

    Appeler l’agence Tél : 0516405020

    * Champs obligatoires

    Nous vous informons de l’existence de la liste d’opposition au démarchage téléphonique « BLOCTEL » sur laquelle vous pouvez vous inscrire (https://www.bloctel.gouv.fr).

    En complétant le formulaire «CONTACTEZ NOTRE AGENCE », je reconnais expressément que je consens au traitement de mes données personnelles et que je dispose du droit de retirer mon consentement à tout moment en m'adressant à support@fnaim.fr.
    En savoir plus sur la gestion de vos données et droits : consulter nos mentions légales, « article 5/ Données à caractère personnel ».

    En envoyant ce message, vous acceptez les conditions d'utilisation du site. Plus d'infos