Fnaim.fr
Menu

Réf. 86872400

Achat Appartement 6 pièces 127m² NIMES 30000

320 000 Honoraires charge vendeur

4 chambres

Description du bien

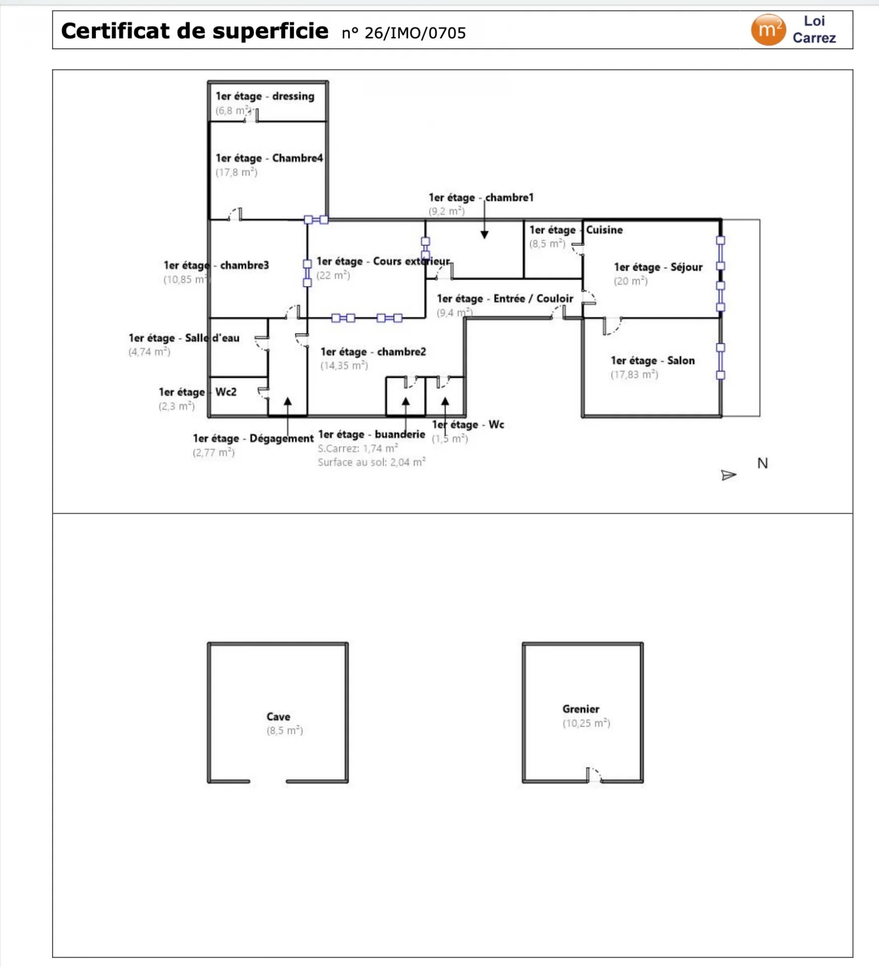
Au cœur du centre historique de Nîmes, découvrez cet appartement de caractère avec patio de 22m2

Dès l’entrée, les volumes généreux et la belle hauteur sous plafond créent immédiatement une atmosphère élégante et chaleureuse. L’appartement s’organise harmonieusement autour d’un agréable patio intérieur, véritable havre de paix en plein cœur de ville.

Entièrement rénové il y a quelques années, il conjugue avec subtilité le charme de l’ancien et le confort moderne. Développant une surface habitable de 127 m², il offre de nombreuses possibilités d’aménagement : quatre chambres, ou trois chambres accompagnées d’un vaste bureau, idéal pour créer un espace de travail adapté à vos besoins.
Situé dans une petite copropriété, ce bien bénéficie également d’annexes appréciables avec un grenier et une cave.

Un emplacement au cœur de l’Écusson, à deux pas des commerces, des restaurants et de toute l’animation du centre historique, tout en conservant calme et intimité.

Prix de vente: 320 000 € honoraires d'agence inclus charge vendeur..
Surface Loi carrez: 127,78m²
Classe énergétique C (consommation d'énergie primaire: 112kWh/m²/an, consommation d'énergie finale : 105 kWh/m²/an),...

Etat des risques et pollutions

Les informations sur les risques auxquels ce bien est exposé sont disponibles sur le site Géorisques : www.georisques.gouv.fr.

Caractéristiques du bien

Composition du bien

  • Type d'habitation : Appartement
  • Cuisine : Type de cuisine Non communique
  • Nombre de pièce(s) : 6
  • Nombre de chambre(s) : 4

Aménagement du bien

Extérieur

  • Terrasse : Non
  • Balcon : Non

Partie Commune

  • Ascenseur : Non
  • Surface habitable : 127 m²

Localisation du bien

NIMES (30000) , GARD (30) - OCCITANIE

Ce bien n'est pas géolocalisé, pour connaitre sa géolocalisation, merci de contacter l'agence.

Consommation énergétique

  • C (122 kWh/m² an)
    C (22 kgCO2/m².an)
    Plus d'info
    122
    22
    22
  • DPE réalisé après le 1er juillet 2021.
  • Entre 1440 € TTC / an et 1990 € TTC / an
    01/01/2021

Nos professionnels vous accompagnent

Contactez notre agence !

28 RUE TURENNE 30000 NIMES

Appeler l’agence Tél : +33 4 66 84 72 84

* Champs obligatoires

Nous vous informons de l’existence de la liste d’opposition au démarchage téléphonique « BLOCTEL » sur laquelle vous pouvez vous inscrire (https://www.bloctel.gouv.fr).

En complétant le formulaire «CONTACTEZ NOTRE AGENCE », je reconnais expressément que je consens au traitement de mes données personnelles et que je dispose du droit de retirer mon consentement à tout moment en m'adressant à support@fnaim.fr.
En savoir plus sur la gestion de vos données et droits : consulter nos mentions légales, « article 5/ Données à caractère personnel ».

En envoyant ce message, vous acceptez les conditions d'utilisation du site. Plus d'infos