Fnaim.fr
Menu

Réf. BOW2-G1J-ZRO

Achat Appartement 4 pièces 64m² ISSY LES MOULINEAUX 92130

426 000 Honoraires charge acquéreur inclus : 4% TTC (408960 € hors honoraires)

3 chambres Parking / Garage

Description du bien

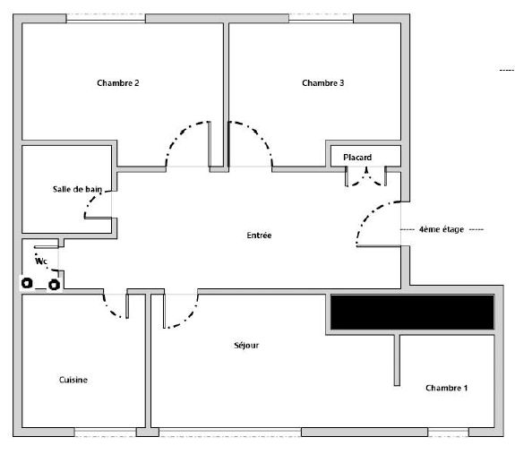
En DERNIER ETAGE d'une résidence des années 60, cet appartement TRAVERSANT d'environ 64 m² se compose d'une entrée, double séjour (poss. 3ème chambre), cuisine indépendante, wc séparé, salle de bains, 2 chambres. Une CAVE et un PARKING.
A proximité du parc de l'Ile St Germain et des bords de Seine.
Tram T2 'Les Moulineaux', commerces à 6 minutes à pieds

DPE = E (Pour l'améliorer, il est recommandé de remplacer les fenêtres avec double vitrage à isolation renforcée, isoler les murs).

Loyer actuel de 1295 euros + 150 euros de charges par mois

Visites possibles mercredis et samedis après-midi
Référence agence : 12295

Etat des risques et pollutions

Les informations sur les risques auxquels ce bien est exposé sont disponibles sur le site Géorisques : www.georisques.gouv.fr.

Caractéristiques du bien

Composition du bien

  • Type d'habitation : Appartement
  • Cuisine : Simple
  • Nombre de pièce(s) : 4
  • Nombre de chambre(s) : 3
  • Salles de bain : 1

Aménagement du bien

Extérieur

  • Terrasse : Non
  • Balcon : Non

Partie Commune

  • Ascenseur : Non
  • Surface habitable : 64 m²
  • Parking : Oui

Informations sur la copropriété

  • Bien soumis au statut de la copropriété
  • Nombre de lots : 20
  • Quote part charges courantes : 3720 €/an
  • Procédure en cours : Non

Localisation du bien

ISSY LES MOULINEAUX (92130) , HAUTS-DE-SEINE (92) - ILE-DE-FRANCE

Ce bien n'est pas géolocalisé, pour connaitre sa géolocalisation, merci de contacter l'agence.

Consommation énergétique

  • E (301 kWh/m² an)
    E (65 kgCO2/m².an)
    Plus d'info
    301
    65
    65
  • DPE réalisé après le 1er juillet 2021.
  • Entre 1610 € TTC / an et 2240 € TTC / an
    Non communiqué

Nos professionnels vous accompagnent

Contactez notre agence !

8 AVENUE VICTOR CRESSON - BP 146 92130 ISSY LES MOULINEAUX

Appeler l’agence Tél : 01 46 44 10 40

* Champs obligatoires

Nous vous informons de l’existence de la liste d’opposition au démarchage téléphonique « BLOCTEL » sur laquelle vous pouvez vous inscrire (https://www.bloctel.gouv.fr).

En complétant le formulaire «CONTACTEZ NOTRE AGENCE », je reconnais expressément que je consens au traitement de mes données personnelles et que je dispose du droit de retirer mon consentement à tout moment en m'adressant à support@fnaim.fr.
En savoir plus sur la gestion de vos données et droits : consulter nos mentions légales, « article 5/ Données à caractère personnel ».

En envoyant ce message, vous acceptez les conditions d'utilisation du site. Plus d'infos