Fnaim.fr
Menu

Achat Appartement 1 pièce 35m² VILLEURBANNE 69100

197 500 Honoraires charge vendeur

Balcon Ascenseur Parking / Garage

Description du bien


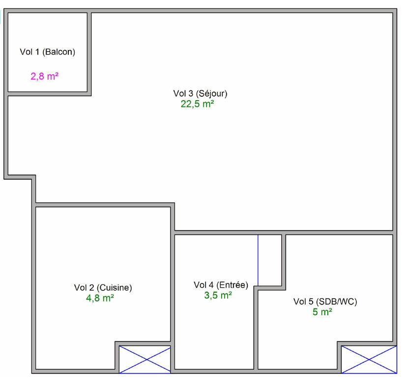
Votre agence GINET Immobilier a le plaisir de vous proposer ce charmant T1, idéalement situé rue Édouard Aynard, au sein d'une résidence récente datant de 2019.

Au 5? étage, cet appartement se compose d'une entrée avec placard, d'une agréable pièce de vie lumineuse avec coin cuisine, d'une salle de bains ainsi que d'un balcon.

Exposé Ouest et doté de grandes fenêtres, vous apprécierez sa luminosité et son calme.

A proximité des commerces et des transports en commun venez découvrir ce bien qui saura vous séduire

Une place de parking en sous-sol complète cette offre.

Pour le visiter, contactez Antoine MADELRIEUX au O6 98 30 16 84.

Etat des risques et pollutions

Les informations sur les risques auxquels ce bien est exposé sont disponibles sur le site Géorisques : www.georisques.gouv.fr.

Caractéristiques du bien

Composition du bien

  • Type d'habitation : Appartement
  • Cuisine : Type de cuisine Non communique
  • Nombre de pièce(s) : 1

Aménagement du bien

Extérieur

  • Terrasse : Non
  • Balcon : Oui

Partie Commune

  • Ascenseur : Oui
  • Surface habitable : 35 m²
  • Parking : Oui

Informations sur la copropriété

  • Bien soumis au statut de la copropriété
  • Nombre de lots : 99
  • Quote part charges courantes : 988 €/an
  • Procédure en cours : Non

Localisation du bien

VILLEURBANNE (69100) , RHONE (69) - AUVERGNE-RHÔNE-ALPES

Ce bien n'est pas géolocalisé, pour connaitre sa géolocalisation, merci de contacter l'agence.

Consommation énergétique

  • C (101 kWh/m² an)
    C (19 kgCO2/m².an)
    Plus d'info
    101
    19
    19
  • DPE réalisé après le 1er juillet 2021.
  • Entre 430 € TTC / an et 590 € TTC / an
    Non communiqué

Nos professionnels vous accompagnent

Contactez notre agence !

16 RUE BRISON 42300 ROANNE

Appeler l’agence Tél : 0698301684

* Champs obligatoires

Nous vous informons de l’existence de la liste d’opposition au démarchage téléphonique « BLOCTEL » sur laquelle vous pouvez vous inscrire (https://www.bloctel.gouv.fr).

En complétant le formulaire «CONTACTEZ NOTRE AGENCE », je reconnais expressément que je consens au traitement de mes données personnelles et que je dispose du droit de retirer mon consentement à tout moment en m'adressant à support@fnaim.fr.
En savoir plus sur la gestion de vos données et droits : consulter nos mentions légales, « article 5/ Données à caractère personnel ».

En envoyant ce message, vous acceptez les conditions d'utilisation du site. Plus d'infos