Fnaim.fr
Menu

Exclusivité
Réf. 3156

Achat Maison 6 pièces 200m²

647 000 Honoraires charge vendeur

5 chambres Jardin

Description du bien


EXCLUSIVITE BLOWSENS

SAINTE SOULLE - CENTRE BOURG - aux portes de La Rochelle

Situation privilégiée au coeur du village - Environnement calme et sans vis-à-vis - Commerces et écoles accessibles à pied - Environnement calme et sans vis-à-vis

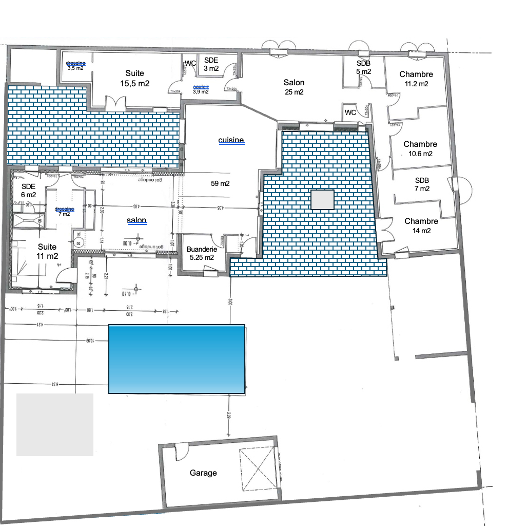
Élégante Maison contemporaine lumineuse et conviviale d'environ 200 m2 avec piscine, deux salons et 5 chambres dont 3 suites.

Cette élégante propriété familiale dévoile un cadre de vie rare, au calme absolu et sans vis-à-vis, où les espaces intérieurs et extérieurs s'articulent harmonieusement autour de terrasses intimistes et d'une piscine.

Pensée dans un esprit contemporain et chaleureux, la maison offre des volumes généreux et une distribution idéale pour la vie de famille comme pour recevoir.

Dès l'entrée, la maison révèle une magnifique pièce de vie de près de 60 m², baignée de lumière grâce à de larges ouvertures sur les extérieurs. La cuisine ouverte, entièrement équipée et organisée autour d'un îlot central, s'intègre parfaitement à cet espace convivial.

La maison propose 5 chambres, dont trois véritables suites avec salles d'eau privatives, offrant confort et indépendance à chacun.

Un art de vivre tourné vers l'extérieur

La propriété s'organise autour de plusieurs espaces extérieurs soigneusement aménagés, Un patio abrité permet de profiter d'un espace de détente protégé tandis qu'un espace repas couvert au style atelier, particulièrement chaleureux.

Le jardin, facile d'entretien, offre un cadre paisible et préservé de tout vis-à-vis, véritable havre de tranquillité.

Buanderie
Garage indépendant
Piscine 4x8m

Dossier complet et visite sur demande.

Etat des risques et pollutions

Les informations sur les risques auxquels ce bien est exposé sont disponibles sur le site Géorisques : www.georisques.gouv.fr.

Caractéristiques du bien

Composition du bien

  • Type d'habitation : Maison
  • Nombre de chambres : 5
  • Cuisine : Type de cuisine Non communique

Aménagement du bien

  • Cave : Non
  • Garage / Parking : Non
    • Surface habitable : 200 m²

    Localisation du bien

    Ce bien n'est pas géolocalisé, pour connaitre sa géolocalisation, merci de contacter l'agence.

    Consommation énergétique

    • C (179 kWh/m² an)
      B (6 kgCO2/m².an)
      Plus d'info
      179
      6
      6
    • DPE réalisé après le 1er juillet 2021.
    • Entre 3100 € TTC / an et 4240 € TTC / an
      Non communiqué

    Nos professionnels vous accompagnent

    Contactez notre agence !

    73 rue de l'Aunis 17220 STE SOULLE

    Appeler l’agence Tél : 0516405020

    * Champs obligatoires

    Nous vous informons de l’existence de la liste d’opposition au démarchage téléphonique « BLOCTEL » sur laquelle vous pouvez vous inscrire (https://www.bloctel.gouv.fr).

    En complétant le formulaire «CONTACTEZ NOTRE AGENCE », je reconnais expressément que je consens au traitement de mes données personnelles et que je dispose du droit de retirer mon consentement à tout moment en m'adressant à support@fnaim.fr.
    En savoir plus sur la gestion de vos données et droits : consulter nos mentions légales, « article 5/ Données à caractère personnel ».

    En envoyant ce message, vous acceptez les conditions d'utilisation du site. Plus d'infos