Fnaim.fr
Menu

Exclusivité
Réf. TAPP735

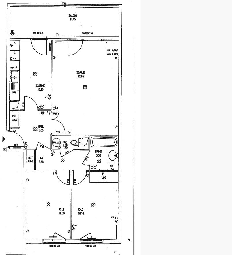
Achat Appartement 3 pièces 70m² LYON 7ème

360 000 Honoraires charge vendeur

2 chambres Balcon Ascenseur Parking / Garage

Description du bien

Dernier étage - Luminosité, vue dégagée et investissement sécurisé à Lyon 7ème - Situé au 6ème et dernier étage d'une résidence de 1995 parfaitement entretenue, cet appartement T3 séduit immédiatement par sa luminosité, son calme et sa vue dégagée sur un espace verdoyant, en plein cœur d'un quartier vivant et recherché du 7ème arrondissement de Lyon.

Déjà loué, ce bien constitue une opportunité clé en main pour un investissement patrimonial serein, dans un secteur dynamique et à forte demande locative.

Dès l'entrée, vous découvrez une pièce de vie spacieuse et baignée de lumière, prolongée par un grand balcon de 11 m² exposé plein sud, sans vis-à-vis, offrant une vue agréable sur un parc - un véritable atout pour les locataires.

La cuisine, actuellement indépendante, peut facilement être ouverte sur le séjour pour créer un espace de vie contemporain et convivial, en phase avec les attentes actuelles.

L'espace nuit, bien distinct, comprend :
- deux chambres confortables
- une salle de bains fonctionnelle
- des toilettes séparées

L'agencement optimisé assure confort, intimité et aucune perte d'espace.

Côté prestations :
- volets roulants
- chauffage individuel électrique
- résidence bien isolée (DPE C), garantissant confort thermique et maîtrise des consommations

En complément, vous bénéficiez d'une cave et d'un garage fermé en sous-sol, inclus dans le prix - un vrai plus en milieu urbain.

Un bien complet, lumineux et idéalement situé, parfait pour sécuriser et valoriser votre investissement à Lyon.

Contactez-nous dès maintenant pour obtenir plus d'informations ou organiser une visite. Honoraires à la charge du vendeur. Montant estimé des dépenses annuelles d'énergie pour un usage standard : entre 920 et 1 300 euros. Prix moyens des énergies indexés en 2021.

Etat des risques et pollutions

Les informations sur les risques auxquels ce bien est exposé sont disponibles sur le site Géorisques : www.georisques.gouv.fr.

Caractéristiques du bien

Composition du bien

  • Type d'habitation : Appartement
  • Cuisine : Type de cuisine Non communique
  • Nombre de pièce(s) : 3
  • Nombre de chambre(s) : 2
  • Salles de bain : 1

Aménagement du bien

Extérieur

  • Terrasse : Non
  • Balcon : Oui

Partie Commune

  • Ascenseur : Oui
  • Surface habitable : 70 m²
  • Parking : Oui

Localisation du bien

LYON 07 (69007) , RHONE (69) - AUVERGNE-RHÔNE-ALPES

Consommation énergétique

  • C (164 kWh/m² an)
    A (5 kgCO2/m².an)
    Plus d'info
    164
    5
    5
  • DPE réalisé après le 1er juillet 2021.
  • Entre 920 € TTC / an et 1300 € TTC / an
    01/01/2021

Nos professionnels vous accompagnent

Contactez notre agence !

68, rue Mercière. Hotel Horace Cardon 69002 LYON 02

Appeler l’agence Tél : 07 61 26 35 29

* Champs obligatoires

Nous vous informons de l’existence de la liste d’opposition au démarchage téléphonique « BLOCTEL » sur laquelle vous pouvez vous inscrire (https://www.bloctel.gouv.fr).

En complétant le formulaire «CONTACTEZ NOTRE AGENCE », je reconnais expressément que je consens au traitement de mes données personnelles et que je dispose du droit de retirer mon consentement à tout moment en m'adressant à support@fnaim.fr.
En savoir plus sur la gestion de vos données et droits : consulter nos mentions légales, « article 5/ Données à caractère personnel ».

En envoyant ce message, vous acceptez les conditions d'utilisation du site. Plus d'infos