Fnaim.fr
Menu

Exclusivité
Réf. 443653KAG

Achat Immeuble 388m² THIZY LES BOURGS 69240

Description du bien

Très bien situé, au centre de Thizy-les-Bourgs, à environ 1h de Lyon, avec un niveau de rentabilité nettement plus attractif que la métropole. : immeuble de rapport en monopropriété, entièrement loué, offrant une rentabilité immédiate.
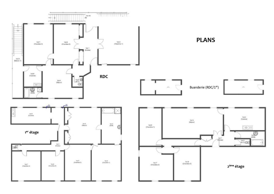
L'immeuble se compose de 3 appartements :
Rez-de-chaussée : T5 de 118 m² avec jardin, terrasse, dépendance et garage ? loué 693,57 euros / mois
1er étage : T6 de 146 m² ? loué 581,28 euros / mois
2ème étage : T5 de 119 m² ? loué 465,01 euros / mois

Revenus locatifs annuels : 18 571 euros
Rentabilité brute : 8.47 %
Taxe foncière : 2345 euros

Chaque logement dispose d'un chauffage individuel au gaz, de menuiseries bois double vitrage et d'une cave en sous-sol.
Immeuble de caractère avec beaux volumes, situé dans un secteur central attractif.
Produit adapté à un investissement locatif sécurisé avec potentiel d'optimisation.
Gare à 10 minutes, liaison LYON avec TCL.
DPE réalisé pour l'ensemble de l'immeuble (performances variables selon les logements).
VIDEO de présentation et photos originales de tous les appartements sur demande.

DPE E GES E - Montant estimé des dépenses annuelles d'énergie pour un usage standard entre 8820 euros et 11970 euros indexées aux années 2021, 2022 et 2023

PRIX 219 000 euros, Honoraires charge vendeur
Pour visiter et vous accompagner dans votre projet, contactez Karine GARAYT, au 0672743646 ou, par courriel à k.garayt@proprietes-privees.com.
Selon l'article L.561.5 du Code Monétaire et Financier, pour l'organisation de la visite, la présentation d'une pièce d'identité vous sera demandée.
Cette présente annonce a été rédigée sous la responsabilité éditoriale de Karine GARAYT agissant sous le statut d'agent commercial immatriculé au RSAC roanne 819 403 817 auprès de SAS PROPRIETES PRIVEES, au capital de 44 920 euros, ZAC LE CHÊNE FERRÉ - 44 ALLÉE DES CINQ CONTINENTS 44120 VERTOU; SIRET 487 624 777 00040, RCS Nantes. Carte Professionnelle Transactions sur immeubles et fonds de commerce (T) et Gestion immobilière (G) n°CPI 4401 2016 000 010 388 délivrée par la CCI Nantes - Saint Nazaire. Compte séquestre n°30932508467 BPA SAINT-SEBASTIEN-SUR-LOIRE (44230). Garantie GALIAN-SMABTP - 89 rue de la Boétie, 75008 Paris - n°28137 J pour 2 000 000 euros pour T et 120 000 euros pour G. Assurance responsabilité civile professionnelle par GALIAN-SMABTP n° de police 28137.J

Mandat réf : 443653 - Le professionnel conseille et sécurise votre projet immobilier.

Karine GARAYT (EI) Agent Commercial - Numéro RSAC : roanne 819 403 817 - .
Les informations sur les risques auxquels ce bien est exposé sont disponibles sur le site Géorisques : www. georisques. gouv. fr

Etat des risques et pollutions

Les informations sur les risques auxquels ce bien est exposé sont disponibles sur le site Géorisques : www.georisques.gouv.fr.

Caractéristiques du bien

Composition du bien

  • Type d'habitation : Immeuble
  • Surface totale : 388 m²

Aménagement du bien

Partie Commune

  • Ascenseur : Non
  • Accès digicode : Non

Localisation du bien

THIZY LES BOURGS (69240) , RHONE (69) - AUVERGNE-RHÔNE-ALPES

Consommation énergétique

  • E (257 kWh/m² an)
    E (53 kgCO2/m².an)
    Plus d'info
    257
    53
    53
  • DPE réalisé après le 1er juillet 2021.
  • Non communiqué
    Non communiqué

Nos professionnels vous accompagnent

Contactez notre agence !

44 Allée des Cinq Continents. ZAC Le Chêne Ferré 44120 VERTOU

Appeler l’agence Tél : 06 72 74 36 46

* Champs obligatoires

Nous vous informons de l’existence de la liste d’opposition au démarchage téléphonique « BLOCTEL » sur laquelle vous pouvez vous inscrire (https://www.bloctel.gouv.fr).

En complétant le formulaire «CONTACTEZ NOTRE AGENCE », je reconnais expressément que je consens au traitement de mes données personnelles et que je dispose du droit de retirer mon consentement à tout moment en m'adressant à support@fnaim.fr.
En savoir plus sur la gestion de vos données et droits : consulter nos mentions légales, « article 5/ Données à caractère personnel ».

En envoyant ce message, vous acceptez les conditions d'utilisation du site. Plus d'infos