Fnaim.fr
Menu

Réf. 86840367

Achat Local commercial 109m² ST LAURENT DU MARONI 97320

256 800 Honoraires charge vendeur

Description du bien

Réservez votre visite grâce au lien suivant : https://plato.immo/c/9G7X

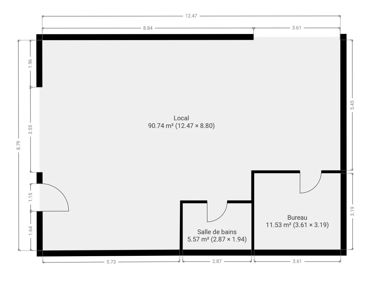
SAINT-LAURENT-DU-MARONI, Découvrez ce local commercial d’environ 109 m², idéalement situé à proximité immédiate des supermarchés ÉCOMAX et SUPER U, ainsi que de l’aérodrome.

Ce local lumineux et fonctionnel est livré brut, vous offrant une totale liberté d’aménagement selon les besoins de votre activité : entrepôts, locauxcommerciaux, showroom, bureaux, salle de formation, espace de coworking, activité de services ou espace de stockage.

Il bénéficie de deux stores électriques, dont un en façade et un sur le côté, offrant confort et sécurité. Un espace bureau en placo d’environ 11,50 m² ainsi qu’une salle d’eau avec WC viennent compléter l’ensemble.

Implanté dans un environnement professionnel dynamique, bénéficiant d’une forte attractivité, ce bien constitue une excellente opportunité pour implanter ou développer votre entreprise dans des conditions optimales.

À découvrir sans tarder.

Honoraires à la charge du vendeur.
Non soumis au DPE
Les informations sur les risques auxquels ce bien est exposé sont disponibles sur le site Géorisques : georisques.gouv.fr Non soumis au DPE

Etat des risques et pollutions

Les informations sur les risques auxquels ce bien est exposé sont disponibles sur le site Géorisques : www.georisques.gouv.fr.

Caractéristiques du bien

Composition du bien

  • Surface totale : 109 m²

Consommation énergétique

DPE non soumis
mention indiquée sous la responsabilité de l’agence immobilière

Nos professionnels vous accompagnent

Contactez notre agence !

87 Lotissement BENEY 97300 CAYENNE

Appeler l’agence Tél : +594 5 94 10 62 20

* Champs obligatoires

Nous vous informons de l’existence de la liste d’opposition au démarchage téléphonique « BLOCTEL » sur laquelle vous pouvez vous inscrire (https://www.bloctel.gouv.fr).

En complétant le formulaire «CONTACTEZ NOTRE AGENCE », je reconnais expressément que je consens au traitement de mes données personnelles et que je dispose du droit de retirer mon consentement à tout moment en m'adressant à support@fnaim.fr.
En savoir plus sur la gestion de vos données et droits : consulter nos mentions légales, « article 5/ Données à caractère personnel ».

En envoyant ce message, vous acceptez les conditions d'utilisation du site. Plus d'infos