Fnaim.fr
Menu

Achat Appartement 4 pièces 67m² LYON 8ème

215 000 Honoraires charge vendeur

2 chambres Balcon Parking / Garage

Description du bien


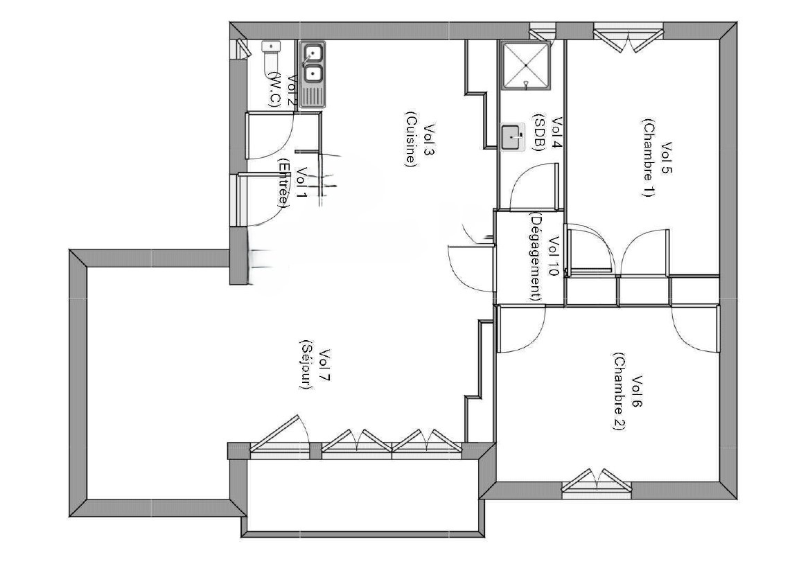
Votre agence GINET Immobilier a le plaisir de vous présenter cet appartement T4, avec deux chambres, de 67m2, idéalement situé au 2ème étage d'une résidence calme et en retrait de la rue.

Dans le secteur de Santy La Plaine, à deux pas de la place Général André et de toutes ses commodités (transports, commerces, écoles), cette adresse offre un cadre de vie agréable et pratique au quotidien.

L'appartement, rénové, traversant et baigné de lumière, se compose d'un séjour - salle à manger ouvrant sur un balcon, d'une cuisine ouverte, de deux chambres, d'une salle d'eau et de toilettes séparées.

Une cave vient compléter ce bien.
La copropriété dispose également d'un stationnement collectif pour plus de confort.

Pour organiser une visite, contactez Antoine Madelrieux O698301684

Etat des risques et pollutions

Les informations sur les risques auxquels ce bien est exposé sont disponibles sur le site Géorisques : www.georisques.gouv.fr.

Caractéristiques du bien

Composition du bien

  • Type d'habitation : Appartement
  • Cuisine : Type de cuisine Non communique
  • Nombre de pièce(s) : 4
  • Nombre de chambre(s) : 2

Aménagement du bien

Extérieur

  • Terrasse : Non
  • Balcon : Oui

Partie Commune

  • Ascenseur : Non
  • Surface habitable : 67 m²
  • Parking : Oui

Informations sur la copropriété

  • Bien soumis au statut de la copropriété
  • Nombre de lots : 264
  • Quote part charges courantes : 964 €/an
  • Procédure en cours : Non

Localisation du bien

LYON 08 (69008) , RHONE (69) - AUVERGNE-RHÔNE-ALPES

Ce bien n'est pas géolocalisé, pour connaitre sa géolocalisation, merci de contacter l'agence.

Consommation énergétique

  • E (249 kWh/m² an)
    E (54 kgCO2/m².an)
    Plus d'info
    249
    54
    54
  • DPE réalisé après le 1er juillet 2021.
  • Entre 1150 € TTC / an et 1610 € TTC / an
    Non communiqué

Nos professionnels vous accompagnent

Contactez notre agence !

16 RUE BRISON 42300 ROANNE

Appeler l’agence Tél : 0698301684

* Champs obligatoires

Nous vous informons de l’existence de la liste d’opposition au démarchage téléphonique « BLOCTEL » sur laquelle vous pouvez vous inscrire (https://www.bloctel.gouv.fr).

En complétant le formulaire «CONTACTEZ NOTRE AGENCE », je reconnais expressément que je consens au traitement de mes données personnelles et que je dispose du droit de retirer mon consentement à tout moment en m'adressant à support@fnaim.fr.
En savoir plus sur la gestion de vos données et droits : consulter nos mentions légales, « article 5/ Données à caractère personnel ».

En envoyant ce message, vous acceptez les conditions d'utilisation du site. Plus d'infos