Fnaim.fr
Menu

Exclusivité
Réf. 9201111987

Achat Maison 7 pièces 225m² REIMS 51100

699 000 Honoraires charge vendeur

4 chambres Jardin Parking / Garage

Description du bien

Exclusivité - REIMS (51100) - Loft familial avec terrasse, extérieur et dépendances - Hypercentre de Reims
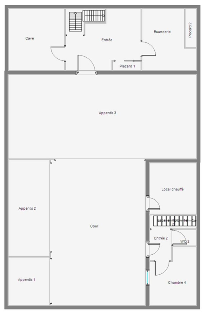
Situé en plein c?ur de Reims, à l'abri des regards, ce superbe Loft offre une surface habitable de 225 m2, au calme.
Rare, à l'esprit maison, il se compose d'une entrée avec rangements, d'un double séjour de plus de 87 m2 avec cuisine ouverte aménagée / équipée, d'une grande TERRASSE de plain-pied sur le salon / salle à mange, de 4 CHAMBRES dont une SUITE PARENTALE, un bureau, 1 salle de bains, 1 salle d'eau/wc, des toilettes invités.
Espace lingerie, Cave, Salle de jeux/sport..
TERRASSE de près de 40 m²
Cour-jardin privative au calme.

Potentiel rare : stockage, atelier, salle de sport, espace créatif ou aménagement complémentaire selon les projets.

IDEAL FAMILLE / USAGE MIXTE - Professions libérales ou amateurs de biens atypiques
.
Volumes, extérieur, centralité et accès rapide à Paris (TGV), écoles et commerces. DPE : C/C
Bien parfaitement entretenu .Beaux volumes, circulation fluide.

FILM sur demande.

Pour toute demande de renseignements et visites, contactez Caroline LOGEAIS - Agent immobilier porteur de la carte T - 5 PIECES ET PLUS, 1ère agence immobilière spécialisée dans les biens familiaux de minimum 3 CHAMBRES (Paris, Ile-de-France / Bordeaux, Bassin d'Arcachon) www.5piecesetplus.com (réf. 9201111987) Prix TTC et Honoraires à charge vendeur TTC
Prix TTC et Honoraires à charge vendeur TTC
Les informations sur les risques auxquels ce bien est exposé sont disponibles sur le site georisques.gouv.fr

** Inter-cabinet bienvenu : travaillons ensemble pour des transactions réussies et la satisfaction de nos clients **
5 PIÈCES ET PLUS est membre du GNI - Groupement National des Indépendants, un réseau qui valorise les meilleurs agents immobiliers de France, ceux qui placent le professionnalisme, la qualité de service et l'engagement au c?ur de leur métier.
10 ans après sa création, 5 PIECES ET PLUS est référencée depuis 2024 dans le Guide National de l'Immobilier, une véritable distinction pour les agences qui s'impliquent pleinement dans la réussite des projets immobiliers de leurs clients.
Parce que votre projet est aussi un peu le nôtre, nous mettons tout en ?uvre pour vous offrir une expérience unique et sur-mesure !
5 PIECES ET PLUS, agence FNAIM, gage de sérieux et professionnalisme. Agence responsable et engagée, sécurité juridique, veille réglementaire permanente, formation continue, ? La garantie d'un haut niveau de compétence. FNAIM, 1er syndicat immobilier de France.

Etat des risques et pollutions

Les informations sur les risques auxquels ce bien est exposé sont disponibles sur le site Géorisques : www.georisques.gouv.fr.

Caractéristiques du bien

Composition du bien

  • Type d'habitation : Maison
  • Nombre de chambres : 4
  • Nombre de salles de bain : 1
  • Cuisine : Aménagée

Aménagement du bien

  • Cave : Non
  • Garage / Parking : Oui
    • Surface habitable : 225 m²
    • Parking : Oui

    Localisation du bien

    REIMS (51100) , MARNE (51) - GRAND-EST

    Ce bien n'est pas géolocalisé, pour connaitre sa géolocalisation, merci de contacter l'agence.

    Consommation énergétique

    • C (179 kWh/m² an)
      C (20 kgCO2/m².an)
      Plus d'info
      179
      20
      20
    • DPE réalisé après le 1er juillet 2021.
    • Entre 3010 € TTC / an et 4150 € TTC / an
      Non communiqué

    Nos professionnels vous accompagnent

    Contactez notre agence !

    3 BIS RUE LOUISE MICHEL 92300 LEVALLOIS PERRET

    Appeler l’agence Tél : 06 63 55 66 08

    * Champs obligatoires

    Nous vous informons de l’existence de la liste d’opposition au démarchage téléphonique « BLOCTEL » sur laquelle vous pouvez vous inscrire (https://www.bloctel.gouv.fr).

    En complétant le formulaire «CONTACTEZ NOTRE AGENCE », je reconnais expressément que je consens au traitement de mes données personnelles et que je dispose du droit de retirer mon consentement à tout moment en m'adressant à support@fnaim.fr.
    En savoir plus sur la gestion de vos données et droits : consulter nos mentions légales, « article 5/ Données à caractère personnel ».

    En envoyant ce message, vous acceptez les conditions d'utilisation du site. Plus d'infos