Fnaim.fr
Menu

Achat Appartement 2 pièces 51m² VILLEURBANNE 69100

194 000 Honoraires charge vendeur

1 chambre Balcon Ascenseur

Description du bien


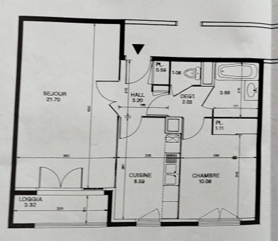
Ginet Immobilier vous propose à la vente ce charmant appartement 2 pièces de 51,77 m², idéalement situé aux portes du très recherché quartier de Monchat.

Au sein d'une résidence récente de 2002, ce bien offre un fort potentiel d'aménagement et de valorisation. Vous serez immédiatement séduit par son séjour spacieux de 21 m², facilement modulable grâce à la possibilité d'ouvrir la cuisine pour créer une belle pièce de vie d'environ 30 m².

L'espace nuit se compose d'une chambre confortable de 11,17 m² ainsi que d'une salle d'eau fonctionnelle.

Exposé Ouest, l'appartement bénéficie d'une belle luminosité tout au long de la journée. Vous profiterez également d'un agréable balcon de 3 m², idéal pour vos moments de détente aux beaux jours.

Côté emplacement, vous apprécierez la proximité immédiate des transports : à seulement 2 minutes de l'arrêt de tram Reconnaissance Balzac (T3) et de la gare de Villeurbanne (T6), vous permettant de rejoindre rapidement l'ensemble de la métropole lyonnaise.

Pour organiser une visite, contactez François Joseph au 06 16 03 33 14.

Francois Joseph (EI) Agent Commercial - Numéro RSAC : 832623649 - LYON.

Etat des risques et pollutions

Les informations sur les risques auxquels ce bien est exposé sont disponibles sur le site Géorisques : www.georisques.gouv.fr.

Caractéristiques du bien

Composition du bien

  • Type d'habitation : Appartement
  • Cuisine : Type de cuisine Non communique
  • Nombre de pièce(s) : 2
  • Nombre de chambre(s) : 1

Aménagement du bien

Extérieur

  • Terrasse : Non
  • Balcon : Oui

Partie Commune

  • Ascenseur : Oui
  • Surface habitable : 51 m²

Informations sur la copropriété

  • Bien soumis au statut de la copropriété
  • Nombre de lots : 69
  • Quote part charges courantes : 625 €/an
  • Procédure en cours : Non

Localisation du bien

VILLEURBANNE (69100) , RHONE (69) - AUVERGNE-RHÔNE-ALPES

Ce bien n'est pas géolocalisé, pour connaitre sa géolocalisation, merci de contacter l'agence.

Consommation énergétique

  • C (106 kWh/m² an)
    C (20 kgCO2/m².an)
    Plus d'info
    106
    20
    20
  • DPE réalisé après le 1er juillet 2021.
  • Entre 650 € TTC / an et 900 € TTC / an
    Non communiqué

Nos professionnels vous accompagnent

Contactez notre agence !

16 RUE BRISON 42300 ROANNE

Appeler l’agence Tél : 0616033314

* Champs obligatoires

Nous vous informons de l’existence de la liste d’opposition au démarchage téléphonique « BLOCTEL » sur laquelle vous pouvez vous inscrire (https://www.bloctel.gouv.fr).

En complétant le formulaire «CONTACTEZ NOTRE AGENCE », je reconnais expressément que je consens au traitement de mes données personnelles et que je dispose du droit de retirer mon consentement à tout moment en m'adressant à support@fnaim.fr.
En savoir plus sur la gestion de vos données et droits : consulter nos mentions légales, « article 5/ Données à caractère personnel ».

En envoyant ce message, vous acceptez les conditions d'utilisation du site. Plus d'infos