Fnaim.fr
Menu

Exclusivité
Réf. PBE_48

Achat Appartement 1 pièce 20m² MARSEILLE 12ème

59 000 Honoraires charge vendeur

Parking / Garage

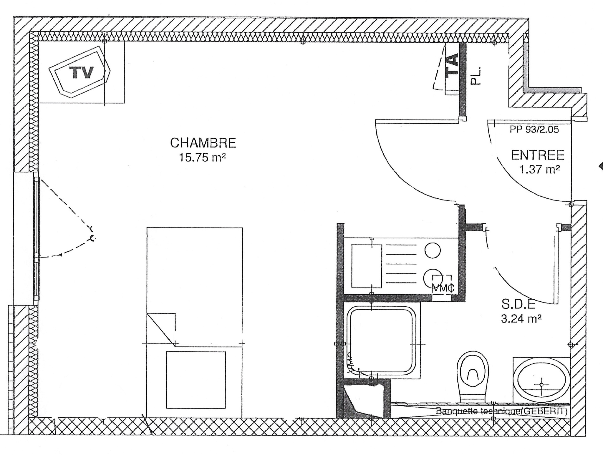
Description du bien

EXCLUSIVITE : Quartier St Pierre. Au sein d'une petite résidence étudiante de 4 étages construite en 2009, à 15 min à pied de l'hôpital de la Timone.
Studio au 4ème et dernier étage avec ascenseur mesurant 20,50 m2 loi carrez, en très bon état.
Il est composé :
d'une entrée avec placard de rangement ;
d'une chambre très lumineuse disposant d'une vue dégagée ;
d'une kitchenette équipée ;
d'une salle d'eau avec WC.
Vendu avec une place de PARKING privative en sous-sol.
Loué à l'année par un bail commercial garantissant 2580 EUR ht / an.
Prestations : double vitrage, eau chaude collective, chauffage électrique individuel, ascenseur, concierge.
Taxe foncière : 713 EUR / an.
« Les informations sur les risques auxquels ce bien est exposé sont disponibles sur le site Géorisques : www.georisques.gouv.fr ».
Les honoraires sont à la charge du vendeur.

Etat des risques et pollutions

Les informations sur les risques auxquels ce bien est exposé sont disponibles sur le site Géorisques : www.georisques.gouv.fr.

Caractéristiques du bien

Composition du bien

  • Type d'habitation : Appartement
  • Cuisine : Kitchenette
  • Nombre de pièce(s) : 1

Aménagement du bien

Extérieur

  • Terrasse : Non
  • Balcon : Non

Partie Commune

  • Ascenseur : Non
  • Surface habitable : 20 m²
  • Parking : Oui

Localisation du bien

MARSEILLE 12 (13012) , BOUCHES-DU-RHONE (13) - PROVENCE-ALPES-COTE-D-AZUR

Ce bien n'est pas géolocalisé, pour connaitre sa géolocalisation, merci de contacter l'agence.

Consommation énergétique

  • C (191 kWh/m² an)
    C (15 kgCO2/m².an)
    Plus d'info
    191
    15
    15
  • DPE réalisé après le 1er juillet 2021.
  • Entre 310 € TTC / an et 470 € TTC / an
    01/01/2021

Nos professionnels vous accompagnent

Contactez notre agence !

146 rue Paradis Le Noilly 13006 MARSEILLE 06

Appeler l’agence Tél : 0699528509

* Champs obligatoires

Nous vous informons de l’existence de la liste d’opposition au démarchage téléphonique « BLOCTEL » sur laquelle vous pouvez vous inscrire (https://www.bloctel.gouv.fr).

En complétant le formulaire «CONTACTEZ NOTRE AGENCE », je reconnais expressément que je consens au traitement de mes données personnelles et que je dispose du droit de retirer mon consentement à tout moment en m'adressant à support@fnaim.fr.
En savoir plus sur la gestion de vos données et droits : consulter nos mentions légales, « article 5/ Données à caractère personnel ».

En envoyant ce message, vous acceptez les conditions d'utilisation du site. Plus d'infos