Fnaim.fr
Menu

Exclusivité
Réf. 443199KAG

Achat Appartement 3 pièces 74m² THIZY LES BOURGS 69240

57 000 Honoraires charge vendeur

2 chambres Ascenseur Parking / Garage

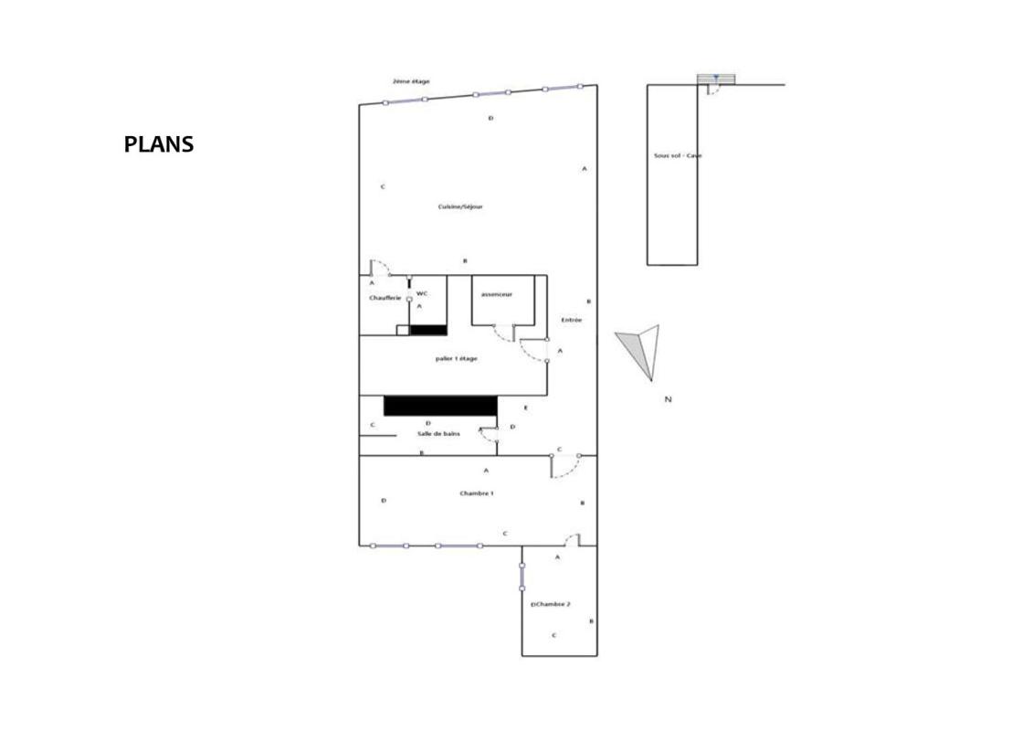
Description du bien

EXCLUSIVITÉ , IDEAL INVESTISSEUR , RENTABILITÉ 8,18 %
Au coeur du bourg, à seulement 10 minutes de la gare d'Amplepuis ( 69550, liaison Lyon) et environ 1h de Lyon, découvrez cet appartement T2 bis de 74,42 m² (72 m² loi Carrez) situé au 1er étage d'une petite copropriété avec ascenseur PMR.
L'appartement se compose d'une pièce de vie lumineuse avec cuisine ouverte, une chambre,
un bureau ou petite chambre, une salle d'eau, un WC séparés, un cellier. Une cave privative complète le bien.
Appartement entièrement rénové et remis aux normes en 2018. Aucun travaux à prévoir
Locataire sérieux en place, loyer actuel : 388,75 euros + 30 euros de charges
Revenus locatifs annuels : 4 665 euros
Rentabilité brute : 8,18 %
Taxe foncière : 431 euros
Une opportunité idéale pour un premier investissement locatif sécurisé. Possibilité d'acquérir deux appartements déjà loués au sein de la même copropriété.
VIDEO de présentation sur demande
Ce bien est sous garantie 12 mois Protec+

Petite copropriété de 5 lots, sans procédure en cours. Syndic bénévole. Charges annuelles : 1107.23 euros (dont ascenseur , dont environ 698,98 euros récupérables).

DPE C GES C
Montant estimé des dépenses annuelles d'énergie pour un usage standard entre 850 et 1180 euros indexées aux années 2021, 2022 et 2023

PRIX : 57 000 euros Honoraire charge vendeur
Pour visiter et vous accompagner dans votre projet, contactez Karine GARAYT, au 0672743646 ou, par courriel à k.garayt@proprietes-privees.com.
Selon l'article L.561.5 du Code Monétaire et Financier, pour l'organisation de la visite, la présentation d'une pièce d'identité vous sera demandée.
Cette présente annonce a été rédigée sous la responsabilité éditoriale de Karine GARAYT agissant sous le statut d'agent commercial immatriculé au RSAC roanne 819 403 817 auprès de SAS PROPRIETES PRIVEES, au capital de 44 920 euros, ZAC LE CHÊNE FERRÉ - 44 ALLÉE DES CINQ CONTINENTS 44120 VERTOU; SIRET 487 624 777 00040, RCS Nantes. Carte Professionnelle Transactions sur immeubles et fonds de commerce (T) et Gestion immobilière (G) n°CPI 4401 2016 000 010 388 délivrée par la CCI Nantes - Saint Nazaire. Compte séquestre n°30932508467 BPA SAINT-SEBASTIEN-SUR-LOIRE (44230). Garantie GALIAN-SMABTP - 89 rue de la Boétie, 75008 Paris - n°28137 J pour 2 000 000 euros pour T et 120 000 euros pour G. Assurance responsabilité civile professionnelle par GALIAN-SMABTP n° de police 28137.J

Mandat réf : 443199 - Le professionnel conseille et sécurise votre projet immobilier.
Copropriété de 5 lots - dont 5 lots habitation.

Charges annuelles : 1107.23 euros.
Karine GARAYT (EI) Agent Commercial - Numéro RSAC : roanne 819 403 817 - .
Les informations sur les risques auxquels ce bien est exposé sont disponibles sur le site Géorisques : www. georisques. gouv. fr

Etat des risques et pollutions

Les informations sur les risques auxquels ce bien est exposé sont disponibles sur le site Géorisques : www.georisques.gouv.fr.

Caractéristiques du bien

Composition du bien

  • Type d'habitation : Appartement
  • Cuisine : Aménagée
  • Nombre de pièce(s) : 3
  • Nombre de chambre(s) : 2

Aménagement du bien

Extérieur

  • Terrasse : Non
  • Balcon : Non

Partie Commune

  • Ascenseur : Oui
  • Surface habitable : 74 m²
  • Parking : Oui

Informations sur la copropriété

  • Bien soumis au statut de la copropriété
  • Nombre de lots : 5
  • Quote part charges courantes : 1107 €/an
  • Procédure en cours : Non

Localisation du bien

THIZY LES BOURGS (69240) , RHONE (69) - AUVERGNE-RHÔNE-ALPES

Consommation énergétique

  • C (109 kWh/m² an)
    C (22 kgCO2/m².an)
    Plus d'info
    109
    22
    22
  • DPE réalisé après le 1er juillet 2021.
  • Entre 850 € TTC / an et 1180 € TTC / an
    Non communiqué

Nos professionnels vous accompagnent

Contactez notre agence !

44 Allée des Cinq Continents. ZAC Le Chêne Ferré 44120 VERTOU

Appeler l’agence Tél : 06 72 74 36 46

* Champs obligatoires

Nous vous informons de l’existence de la liste d’opposition au démarchage téléphonique « BLOCTEL » sur laquelle vous pouvez vous inscrire (https://www.bloctel.gouv.fr).

En complétant le formulaire «CONTACTEZ NOTRE AGENCE », je reconnais expressément que je consens au traitement de mes données personnelles et que je dispose du droit de retirer mon consentement à tout moment en m'adressant à support@fnaim.fr.
En savoir plus sur la gestion de vos données et droits : consulter nos mentions légales, « article 5/ Données à caractère personnel ».

En envoyant ce message, vous acceptez les conditions d'utilisation du site. Plus d'infos