Fnaim.fr
Menu

Réf. VA6491-BIENALAMER

Achat Appartement 3 pièces 70m² LA ROCHELLE 17000

507 000 Honoraires charge vendeur

2 chambres Ascenseur Parking / Garage

Description du bien

L'agence 'MON BIEN A LA MER', spécialiste de l'immobilier neuf en Bord de Mer, sélectionne auprès des promoteurs les meilleures opérations aux mêmes prix, sans commission d'agence. Bénéficiez de notre expertise indépendante, et de nos services (aide aux plans, maquette, drone, visite virtuelles). Nous vous présentons ce bien :

RARE : résidence de standing quartier Ville Bois, 10 min à pied du Port des Minimes (1er Port de plaisance d'Europe) et de la gare (2h30 de PARIS).
Tout à proximité, quartier recherché. Prestations de standing :
Chauffage électrique, Menuiseries alu bicolores coulissantes, parquet stratifié ou carrelage, wc suspendus, faïence toute hauteur, salle d'eaux équipées, volets roulants électriques, ascenseur, normes RE2020. Livraison fin 2028.

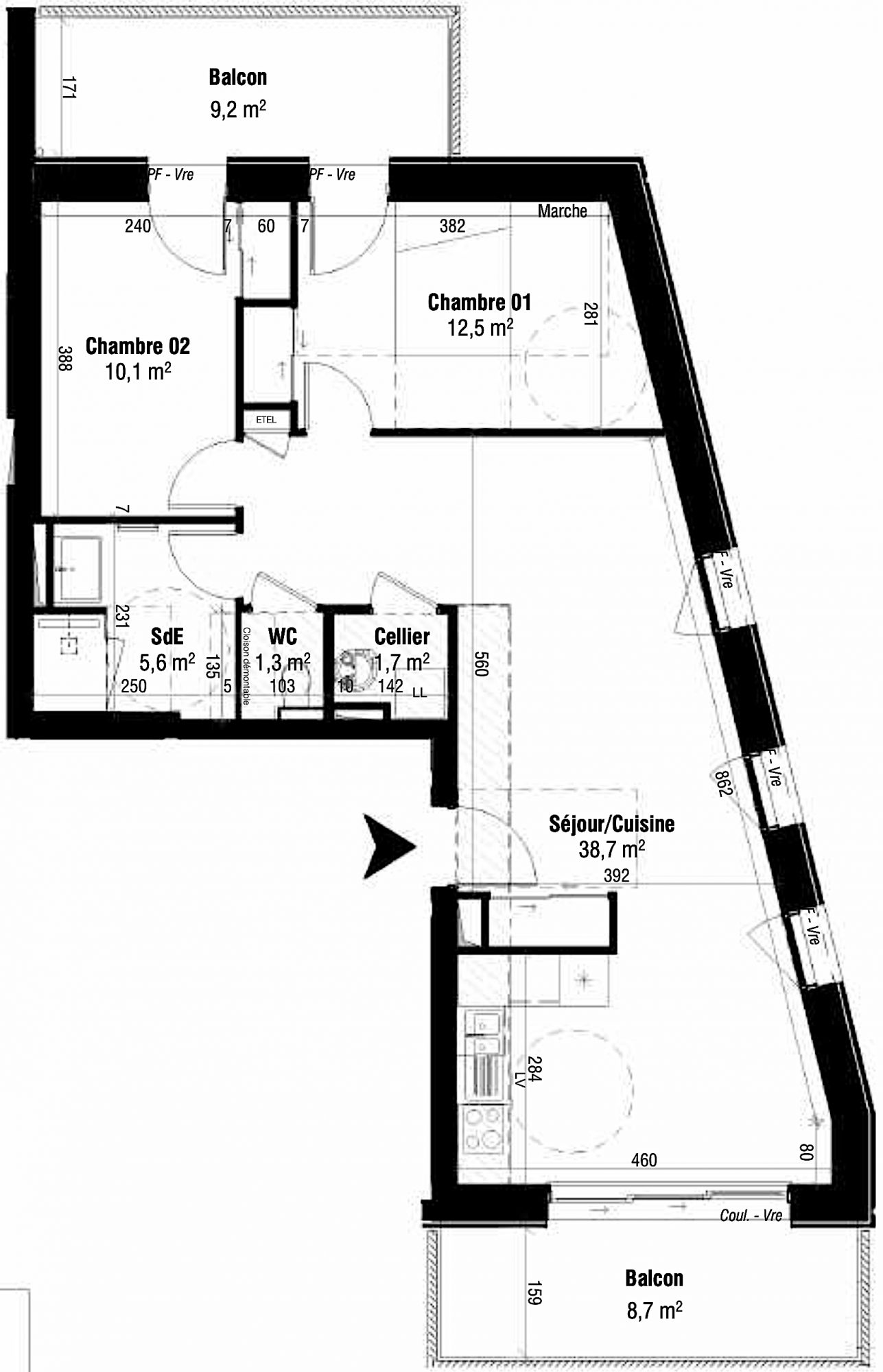
Ce T3 est situé au 5è et dernier étage et offre :
- Séjour de 38,7m2
- Deux Chambres 12,5-10,1m2
- Salle d'eau avec douche 5,6m2
- wc séparé, cellier
- Double terrasse 9,2-8,7m2
- Parking sous sol inclus.

Nous Consulter

Honoraires à la charge du vendeur. Non soumis au DPE. Les informations sur les risques auxquels ce bien est exposé sont disponibles sur le site Géorisques : georisques.gouv.fr.

Votre conseiller MON BIEN A LA MER : Gérant - .fr MON BIEN A LA MER
Carte T CPI 2201 2018 000 025 040
RCP ACM IARD B1 7025278

Etat des risques et pollutions

Les informations sur les risques auxquels ce bien est exposé sont disponibles sur le site Géorisques : www.georisques.gouv.fr.

Caractéristiques du bien

Composition du bien

  • Type d'habitation : Appartement
  • Cuisine : Type de cuisine Non communique
  • Nombre de pièce(s) : 3
  • Nombre de chambre(s) : 2

Aménagement du bien

Extérieur

  • Terrasse : Non
  • Balcon : Non

Partie Commune

  • Ascenseur : Oui
  • Surface habitable : 70 m²
  • Parking : Oui

Localisation du bien

LA ROCHELLE (17000) , CHARENTE-MARITIME (17) - NOUVELLE-AQUITAINE

Ce bien n'est pas géolocalisé, pour connaitre sa géolocalisation, merci de contacter l'agence.

Consommation énergétique

DPE non soumis
mention indiquée sous la responsabilité de l’agence immobilière

Nos professionnels vous accompagnent

Contactez notre agence !

23 Rue des Villeneuves Le Bignon 22400 MORIEUX

Appeler l’agence Tél : 0787285150

* Champs obligatoires

Nous vous informons de l’existence de la liste d’opposition au démarchage téléphonique « BLOCTEL » sur laquelle vous pouvez vous inscrire (https://www.bloctel.gouv.fr).

En complétant le formulaire «CONTACTEZ NOTRE AGENCE », je reconnais expressément que je consens au traitement de mes données personnelles et que je dispose du droit de retirer mon consentement à tout moment en m'adressant à support@fnaim.fr.
En savoir plus sur la gestion de vos données et droits : consulter nos mentions légales, « article 5/ Données à caractère personnel ».

En envoyant ce message, vous acceptez les conditions d'utilisation du site. Plus d'infos