Fnaim.fr
Menu

Réf. 442547CHHU

Achat Maison 5 pièces 133m² HYERES 83400

685 000 Honoraires charge vendeur

4 chambres Jardin Parking / Garage

Description du bien

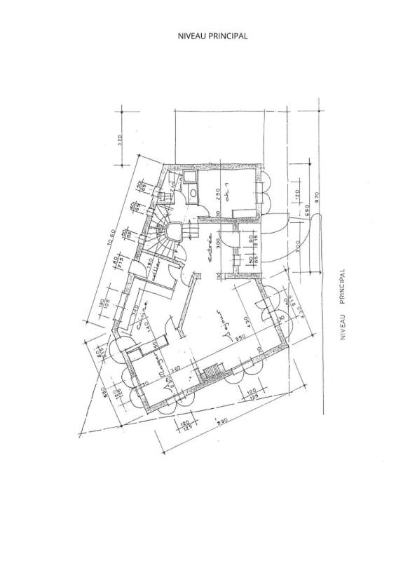
Cette villa de charme doit son élégance discrète aux traits de crayon d'un architecte inspiré. Une entrée large et accueillante nous fait pénétrer dans une vaste pièce à vivre d'environ 40 m2 composée d'un salon avec cheminée, prolongée par la salle à manger ouvrant sur le jardin. La cuisine séparée au charme provençale invite à s'y attarder pour préparer les plats à déguster sur la terrasse attenante. Après avoir grimpé quelques marches, une chambre, une salle d'eau et un toilette composent ce demi niveau. A la suite, une très belle volée d'escalier conduit à l'espace nuit avec ses trois chambres et sa salle de bains, la plus grande des chambres s'ouvrant sur une jolie terrasse tropézienne où la vue dégagée permet d'apercevoir la mer au loin. Le jardin de 700 m2 composé de petites restanques en escalier abrite une flore typique du bassin méditerranéen ainsi qu'un cabanon de rangement. Un garage double et trois places de parking privatives complètent ce bien situé en centre-ville à 10 minutes à pied du centre historique, de son marché coloré, de ses commerces et de ses terrasses animées. Le port, la presqu'ile de Giens et les plages sont très faciles d'accès en un quart d'heure par la route. Nichée dans une impasse, découvrez cette maison familiale et lumineuse qui invite à la douceur de vivre sous le soleil. Prix 685 000 euros honoraires charge vendeur. DPE C GES B Montant estimé des dépenses annuelles d'énergie pour un usage standard entre 2150 et 2930 euros indexées aux années 2021, 2022 et 2023 Pour visiter et vous accompagner dans votre projet, contactez Christophe HUMBERT, au 0671029561 ou, par courriel à ch.humbert@proprietes-privees.com. Selon l'article L.561.5 du Code Monétaire et Financier, pour l'organisation de la visite, la présentation d'une pièce d'identité vous sera demandée. Cette annonce a été rédigée sous la responsabilité éditoriale de Christophe HUMBERT agissant sous le statut d'agent commercial immatriculé au RSAC 430139063 TOULON auprès de SAS PROPRIETES PRIVEES, au capital de 44 920 euros, ZAC LE CHÊNE FERRÉ - 44 ALLÉE DES CINQ CONTINENTS 44120 VERTOU ; SIRET 487 624 777 00040, RCS Nantes. Carte Professionnelle Transactions sur immeubles et fonds de commerce (T) et Gestion immobilière (G) n°CPI 4401 2016 000 010 388 délivrée par la CCI Nantes - Saint Nazaire. Compte séquestre n°30932508467 BPA SAINT-SEBASTIEN-SUR-LOIRE (44230). Garantie GALIAN-SMABTP - 89 rue de la Boétie, 75008 Paris - n°28137 J pour 2 000 000 euros pour T et 120 000 euros pour G. Assurance responsabilité civile professionnelle par GALIAN-SMABTP n° de police 28137.J Mandat réf : 442547- Le professionnel garantit et sécurise votre projet immobilier.
Copropriété de 6 lots - dont 6 lots habitation.

Charges annuelles : 150 euros.
Christophe HUMBERT (EI) Agent Commercial - Numéro RSAC : 430139063 TOULON - .
Les informations sur les risques auxquels ce bien est exposé sont disponibles sur le site Géorisques : www. georisques. gouv. fr

Etat des risques et pollutions

Les informations sur les risques auxquels ce bien est exposé sont disponibles sur le site Géorisques : www.georisques.gouv.fr.

Caractéristiques du bien

Composition du bien

  • Type d'habitation : Maison
  • Nombre de chambres : 4
  • Nombre de salles de bain : 1
  • Cuisine : Equipée

Aménagement du bien

  • Cave : Non
  • Garage / Parking : Oui
    • Surface habitable : 133 m²
    • Parking : Oui

    Localisation du bien

    HYERES (83400) , VAR (83) - PROVENCE-ALPES-COTE-D-AZUR

    Ce bien n'est pas géolocalisé, pour connaitre sa géolocalisation, merci de contacter l'agence.

    Consommation énergétique

    • C (175 kWh/m² an)
      B (6 kgCO2/m².an)
      Plus d'info
      175
      6
      6
    • DPE réalisé après le 1er juillet 2021.
    • Entre 2150 € TTC / an et 2930 € TTC / an
      Non communiqué

    Nos professionnels vous accompagnent

    Contactez notre agence !

    44 Allée des Cinq Continents ZAC Le Chêne Ferré 44120 VERTOU

    Appeler l’agence Tél : 06 71 02 95 61

    * Champs obligatoires

    Nous vous informons de l’existence de la liste d’opposition au démarchage téléphonique « BLOCTEL » sur laquelle vous pouvez vous inscrire (https://www.bloctel.gouv.fr).

    En complétant le formulaire «CONTACTEZ NOTRE AGENCE », je reconnais expressément que je consens au traitement de mes données personnelles et que je dispose du droit de retirer mon consentement à tout moment en m'adressant à support@fnaim.fr.
    En savoir plus sur la gestion de vos données et droits : consulter nos mentions légales, « article 5/ Données à caractère personnel ».

    En envoyant ce message, vous acceptez les conditions d'utilisation du site. Plus d'infos