Fnaim.fr
Menu

Visite virtuelle
Réf. VM1628-BIENALAMER

Achat Maison 4 pièces 86m² BOIS D ARCY 78390

520 000 Honoraires charge vendeur

3 chambres Parking / Garage

Description du bien

Petite résidence plein centre Bois D'Arcy en construction en cours de travaux, pour 4è trimestre 2026.

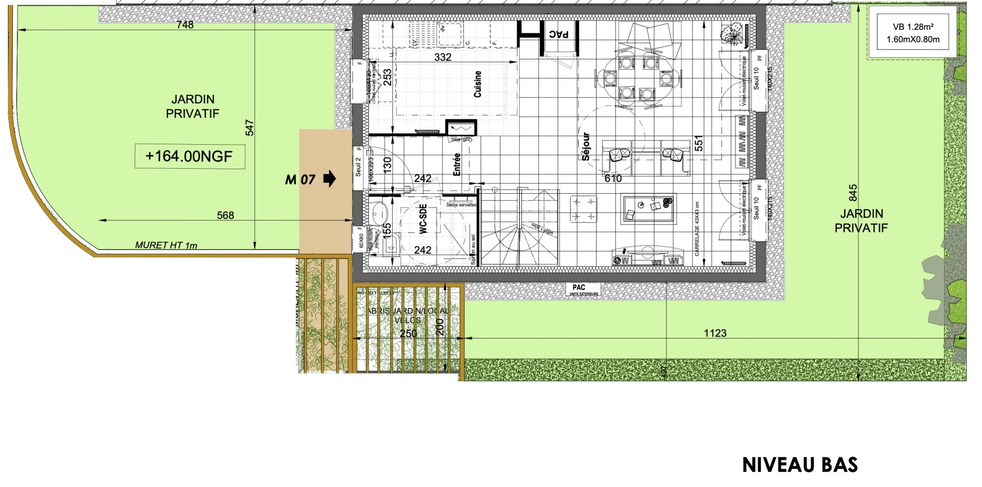
Maison de ville sur comprenant :

- Au rez de chaussée : Séjour traversant de 36,65m2, salle d'eau, wc, jardin 95m2, abri jardin/vélos, deux parkings,
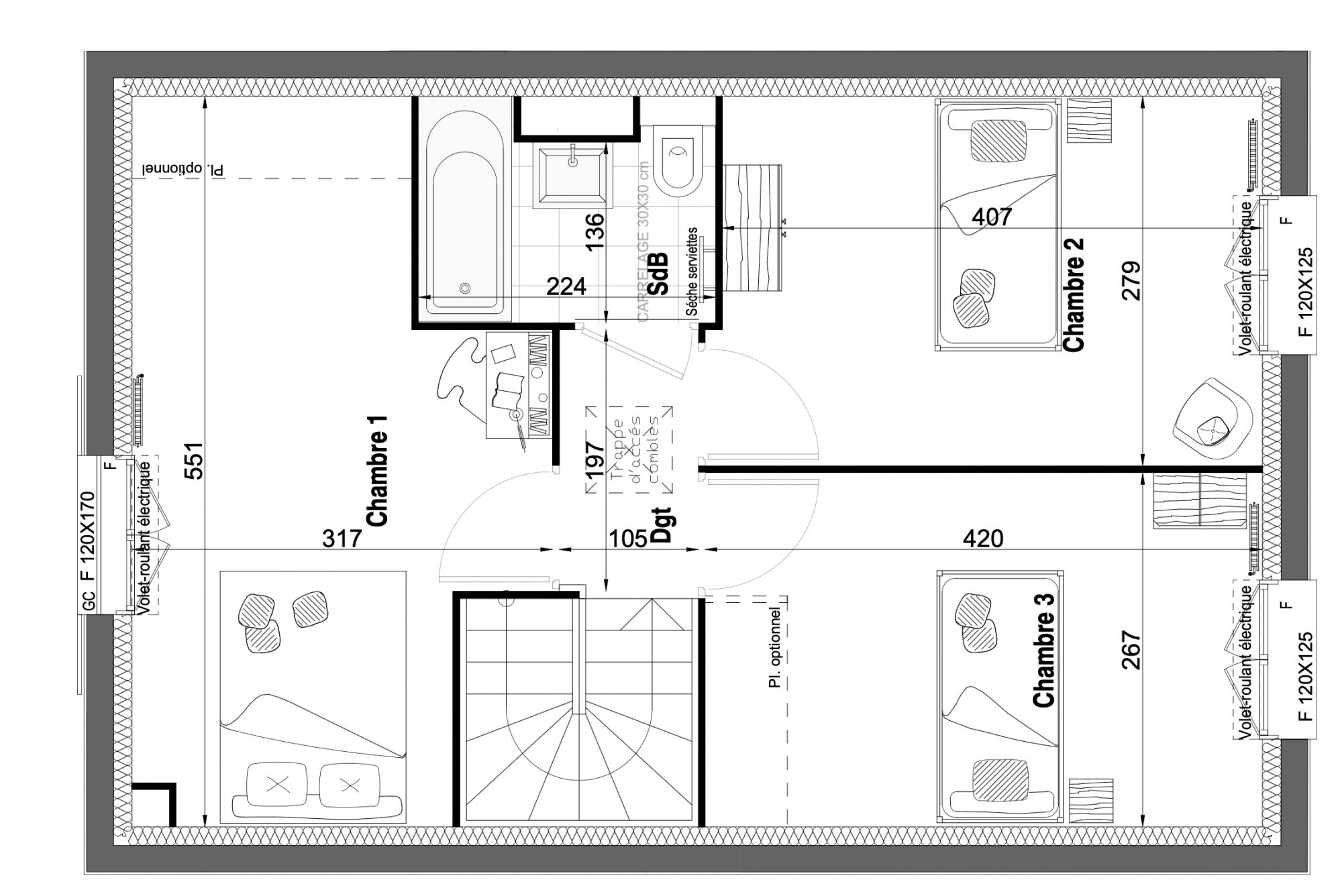
- A l'étage : 3 chambres 14,15-11,5-11,2m2, salle de bains wc.

Pompe à chaleur, normes RE2020.

Régime VEFA : tout est inclus (peintures, engazonnement etc), rien à prévoir sauf la cuisine.
Frais de notaire réduits (2%).

Nous Consulter

Honoraires à la charge du vendeur. Non soumis au DPE. Les informations sur les risques auxquels ce bien est exposé sont disponibles sur le site Géorisques : georisques.gouv.fr.

Votre conseiller MON BIEN A LA MER : Gérant - .fr MON BIEN A LA MER
Carte T CPI 2201 2018 000 025 040
RCP ACM IARD B1 7025278

Etat des risques et pollutions

Les informations sur les risques auxquels ce bien est exposé sont disponibles sur le site Géorisques : www.georisques.gouv.fr.

Caractéristiques du bien

Composition du bien

  • Type d'habitation : Maison
  • Nombre de chambres : 3
  • Nombre de salles de bain : 1
  • Cuisine : Type de cuisine Non communique

Aménagement du bien

  • Cave : Non
  • Garage / Parking : Oui
    • Surface habitable : 86 m²
    • Parking : Oui

    Localisation du bien

    BOIS D ARCY (78390) , YVELINES (78) - ILE-DE-FRANCE

    Ce bien n'est pas géolocalisé, pour connaitre sa géolocalisation, merci de contacter l'agence.

    Consommation énergétique

    DPE non soumis
    mention indiquée sous la responsabilité de l’agence immobilière

    Nos professionnels vous accompagnent

    Contactez notre agence !

    23 Rue des Villeneuves Le Bignon 22400 MORIEUX

    Appeler l’agence Tél : 0787285150

    * Champs obligatoires

    Nous vous informons de l’existence de la liste d’opposition au démarchage téléphonique « BLOCTEL » sur laquelle vous pouvez vous inscrire (https://www.bloctel.gouv.fr).

    En complétant le formulaire «CONTACTEZ NOTRE AGENCE », je reconnais expressément que je consens au traitement de mes données personnelles et que je dispose du droit de retirer mon consentement à tout moment en m'adressant à support@fnaim.fr.
    En savoir plus sur la gestion de vos données et droits : consulter nos mentions légales, « article 5/ Données à caractère personnel ».

    En envoyant ce message, vous acceptez les conditions d'utilisation du site. Plus d'infos