Fnaim.fr
Menu

Visite virtuelle
Réf. VA6445-BIENALAMER

Achat Appartement 4 pièces 83m² LANNION 22300

494 000 Honoraires charge vendeur

3 chambres Ascenseur Parking / Garage

Description du bien

L'agence 'MON BIEN A LA MER', spécialiste de l'immobilier neuf sur les Côtes Bretonnes, sélectionne auprès des promoteurs les meilleures opérations aux mêmes prix, sans commission d'agence. Bénéficiez de notre expertise indépendante, et de nos services (aide aux plans, maquette, drone, visite virtuelles). Nous vous présentons ce bien :

Très rare : Nouvelle réalisation en plein centre de LANNION :
à pied de tous commerces, 7 min à pied de la Gare.
Nouveau : Résidence de standing en construction pour fin 2027, normes RE2020, Ascenseur, Frais de notaire réduits.

Au pied de la résidence : jardin collectif pour les résidents clos de mur 1000m2.
Un havre de paix en plein centre ville! A 10 min en voiture des merveilleuses plages de la côte de Granit Rose.

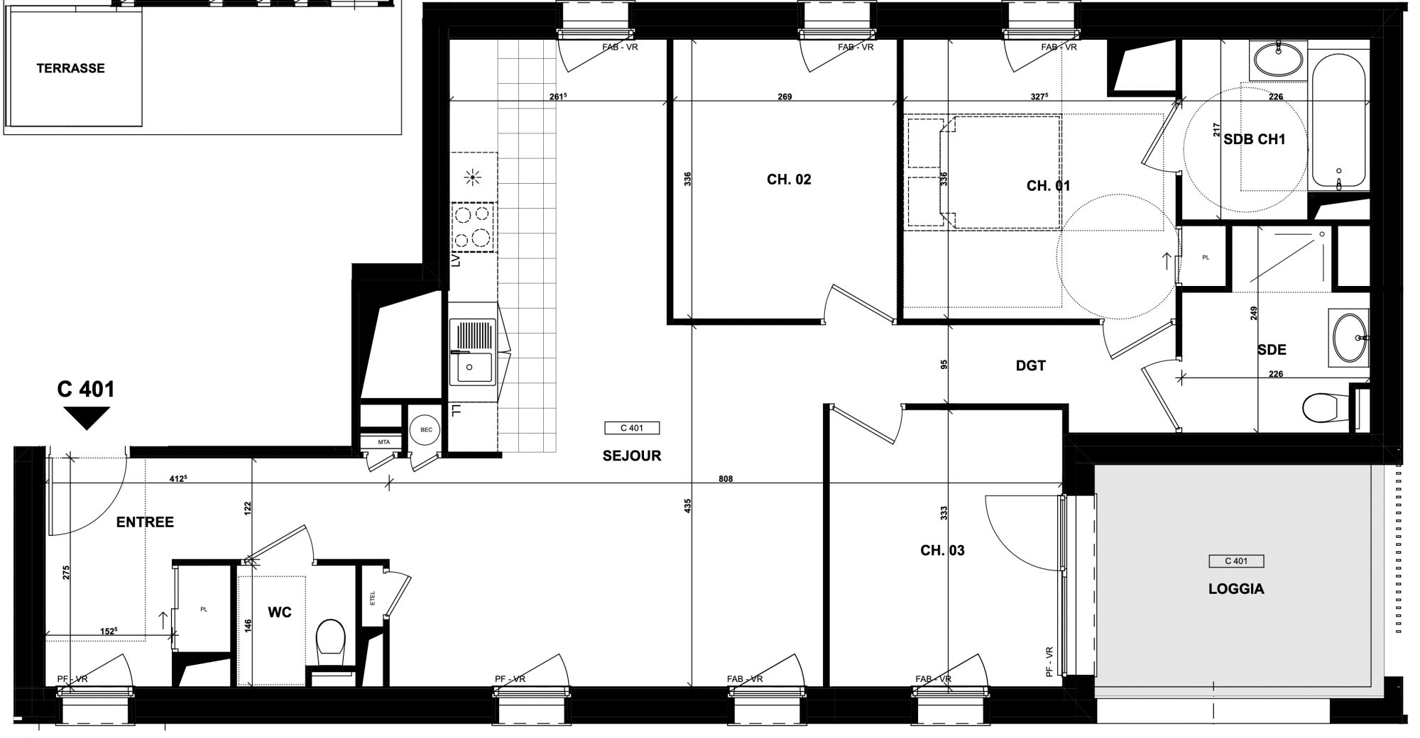
Ce T4 est situé au 4è et dernier étage, et offre séjour expo sud ouest traversant, entrée, 3 chambres, salle d'eau, salle de bains, 2 wcs, cave et deux parkings.
Une loggia de 9,65m2 et une incroyable terrasse de 50m2 offrant une vue panoramique sur LANNION.
Possibilité modification de plans intérieurs.

Nous consulter.

Honoraires à la charge du vendeur. Non soumis au DPE. Les informations sur les risques auxquels ce bien est exposé sont disponibles sur le site Géorisques : georisques.gouv.fr.

Votre conseiller MON BIEN A LA MER : Gérant - .fr MON BIEN A LA MER
Carte T CPI 2201 2018 000 025 040
RCP ACM IARD B1 7025278

Etat des risques et pollutions

Les informations sur les risques auxquels ce bien est exposé sont disponibles sur le site Géorisques : www.georisques.gouv.fr.

Caractéristiques du bien

Composition du bien

  • Type d'habitation : Appartement
  • Cuisine : Type de cuisine Non communique
  • Nombre de pièce(s) : 4
  • Nombre de chambre(s) : 3
  • Salles de bain : 1

Aménagement du bien

Extérieur

  • Terrasse : Non
  • Balcon : Non

Partie Commune

  • Ascenseur : Oui
  • Surface habitable : 83 m²
  • Parking : Oui

Localisation du bien

LANNION (22300) , COTES-D'ARMOR (22) - BRETAGNE

Ce bien n'est pas géolocalisé, pour connaitre sa géolocalisation, merci de contacter l'agence.

Consommation énergétique

DPE non soumis
mention indiquée sous la responsabilité de l’agence immobilière

Nos professionnels vous accompagnent

Contactez notre agence !

23 Rue des Villeneuves Le Bignon 22400 MORIEUX

Appeler l’agence Tél : 0787285150

* Champs obligatoires

Nous vous informons de l’existence de la liste d’opposition au démarchage téléphonique « BLOCTEL » sur laquelle vous pouvez vous inscrire (https://www.bloctel.gouv.fr).

En complétant le formulaire «CONTACTEZ NOTRE AGENCE », je reconnais expressément que je consens au traitement de mes données personnelles et que je dispose du droit de retirer mon consentement à tout moment en m'adressant à support@fnaim.fr.
En savoir plus sur la gestion de vos données et droits : consulter nos mentions légales, « article 5/ Données à caractère personnel ».

En envoyant ce message, vous acceptez les conditions d'utilisation du site. Plus d'infos