Fnaim.fr
Menu

Achat Appartement 2 pièces 48m² NANTES 44000

138 000 Honoraires charge acquéreur inclus : 7,8% TTC (127222 € hors honoraires)

1 chambre Balcon Ascenseur Parking / Garage

Description du bien

MANUFACTURE JARDIN DES PLANTES
Appartement T2 vendu avec sa locataire en place (bail loc'avantages)
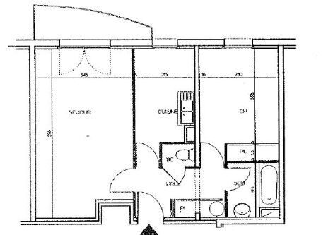
Au calme, en étage avec ascenseur, entrée avec placard, séjour avec balcon, cuisine séparée, chambre avec placard, salle de bains, wc séparés.
Parking privé
loyer mensuel 584,47 euros hors charges
Les informations sur les risques auxquels ce bien est exposé sont disponibles sur le site Géorisques : www. georisques. gouv. fr

Etat des risques et pollutions

Les informations sur les risques auxquels ce bien est exposé sont disponibles sur le site Géorisques : www.georisques.gouv.fr.

Caractéristiques du bien

Composition du bien

  • Type d'habitation : Appartement
  • Cuisine : Simple
  • Nombre de pièce(s) : 2
  • Nombre de chambre(s) : 1
  • Salles de bain : 1

Aménagement du bien

Extérieur

  • Terrasse : Non
  • Balcon : Oui

Partie Commune

  • Ascenseur : Oui
  • Surface habitable : 48 m²
  • Parking : Oui

Informations sur la copropriété

  • Bien soumis au statut de la copropriété
  • Nombre de lots : 194
  • Quote part charges courantes : 997 €/an
  • Procédure en cours : Non

Localisation du bien

NANTES (44000) , LOIRE-ATLANTIQUE (44) - PAYS-DE-LA-LOIRE

Ce bien n'est pas géolocalisé, pour connaitre sa géolocalisation, merci de contacter l'agence.

Consommation énergétique

  • C (124 kWh/m² an)
    A (4 kgCO2/m².an)
    Plus d'info
    124
    4
    4
  • DPE réalisé après le 1er juillet 2021.
  • Entre 670 € TTC / an et 950 € TTC / an
    Non communiqué

Nos professionnels vous accompagnent

Contactez notre agence !

27 place Viarme 44000 NANTES

Appeler l’agence Tél : 02 40 47 03 03

* Champs obligatoires

Nous vous informons de l’existence de la liste d’opposition au démarchage téléphonique « BLOCTEL » sur laquelle vous pouvez vous inscrire (https://www.bloctel.gouv.fr).

En complétant le formulaire «CONTACTEZ NOTRE AGENCE », je reconnais expressément que je consens au traitement de mes données personnelles et que je dispose du droit de retirer mon consentement à tout moment en m'adressant à support@fnaim.fr.
En savoir plus sur la gestion de vos données et droits : consulter nos mentions légales, « article 5/ Données à caractère personnel ».

En envoyant ce message, vous acceptez les conditions d'utilisation du site. Plus d'infos