Fnaim.fr
Menu

Exclusivité
Réf. TAPP726

Achat Appartement 1 pièce 23m² LYON 7ème

130 000 Honoraires charge vendeur

Ascenseur Parking / Garage

Description du bien

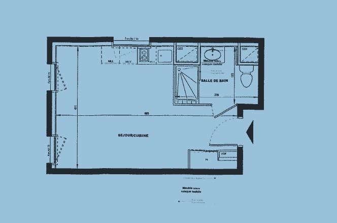
Studio récent au calme - Résidence 2019 - Idéal investissement ou logement étudiant (proche EM Lyon) - Sagi-ter vous présente en exclusivité, dans une résidence récente et sécurisée construite en 2019, ce studio constitue une opportunité idéale pour un investissement locatif sécurisé ou pour loger un étudiant à Lyon. L'appartement bénéficie d'un emplacement stratégique à proximité immédiate des transports, commerces et établissements d'enseignement supérieur, notamment EM Lyon, ce qui garantit une forte demande locative.

Un appartement fonctionnel et sans perte de place, ce studio offre un agencement optimisé, parfaitement adapté à un étudiant ou jeune actif :
- entrée avec placard mural,
- pièce de vie lumineuse avec espace séjour / nuit
- coin cuisine ouvert fonctionnel
- salle d'eau avec douche à l'italienne, meuble vasque et WC
- deux baies vitrées avec vue dégagée sur le jardin intérieur de la résidence, pour une belle luminosité.

L'appartement donne au calme sur le jardin de la résidence, un vrai plus pour le confort au quotidien.

Résidence moderne et performante :
- construite en 2019, elle bénéficie des normes récentes d'isolation thermique et phonique, garantissant confort et maîtrise des charges.
- Charges de copropriété : environ 90 € / mois, comprenant :chauffage, eau chaud, , eau froide, entretien de l'immeuble et du jardin.

Situation locative :
- Le bien est actuellement loué, offrant une rentabilité immédiate.
- Possibilité de récupérer le logement pour une occupation personnelle à partir de novembre 2026, ce qui peut être idéal pour un futur étudiant ou un pied-à-terre à Lyon.

Les points forts :
- Résidence récente (2019)
- Au calme sur jardin
- Agencement optimisé
- Idéal investissement locatif étudiant
- Proximité transports et écoles
- Forte demande locative dans le secteur

Stationnement :
Possibilité d'acquérir un garage en supplément : 20 000 €

Parfait pour :
- investisseurs recherchant un placement sécurisé à Lyon
- parents souhaitant loger leur enfant étudiant (EM Lyon, universités, écoles)
- primo-accédants souhaitant un pied-à-terre dans une résidence récente

Contactez nous pour le visiter sans attendre. Honoraires à la charge du vendeur. Montant estimé des dépenses annuelles d'énergie pour un usage standard : entre 250 et 380 euros. Prix moyens des énergies indexés en 2021.

Etat des risques et pollutions

Les informations sur les risques auxquels ce bien est exposé sont disponibles sur le site Géorisques : www.georisques.gouv.fr.

Caractéristiques du bien

Composition du bien

  • Type d'habitation : Appartement
  • Cuisine : Type de cuisine Non communique
  • Nombre de pièce(s) : 1

Aménagement du bien

Extérieur

  • Terrasse : Non
  • Balcon : Non

Partie Commune

  • Ascenseur : Oui
  • Surface habitable : 23 m²
  • Parking : Oui

Localisation du bien

LYON 07 (69007) , RHONE (69) - AUVERGNE-RHÔNE-ALPES

Consommation énergétique

  • D (188 kWh/m² an)
    D (38 kgCO2/m².an)
    Plus d'info
    188
    38
    38
  • DPE réalisé après le 1er juillet 2021.
  • Entre 250 € TTC / an et 380 € TTC / an
    01/01/2021

Nos professionnels vous accompagnent

Contactez notre agence !

68, rue Mercière. Hotel Horace Cardon 69002 LYON 02

Appeler l’agence Tél : 07 61 26 35 29

* Champs obligatoires

Nous vous informons de l’existence de la liste d’opposition au démarchage téléphonique « BLOCTEL » sur laquelle vous pouvez vous inscrire (https://www.bloctel.gouv.fr).

En complétant le formulaire «CONTACTEZ NOTRE AGENCE », je reconnais expressément que je consens au traitement de mes données personnelles et que je dispose du droit de retirer mon consentement à tout moment en m'adressant à support@fnaim.fr.
En savoir plus sur la gestion de vos données et droits : consulter nos mentions légales, « article 5/ Données à caractère personnel ».

En envoyant ce message, vous acceptez les conditions d'utilisation du site. Plus d'infos