Fnaim.fr
Menu

Visite virtuelle
Réf. VA6417-BIENALAMER

Achat Appartement 2 pièces 45m² BREST 29200

229 000 Honoraires charge vendeur

1 chambre Ascenseur Parking / Garage

Description du bien

L'agence 'MON BIEN A LA MER', spécialiste de l'immobilier neuf sur les côtes Bretonnes, vous présente :

Petite résidence neuve de 13 lots seulement, front de rade, vue mer. expo sud.
Commerces bus et tram -500m. Plage Sainte Anne à 10 min en voiture.
Travaux en cours-visitable.
Ascenseur.
Frais de notaire réduits.
Parking sous sol.

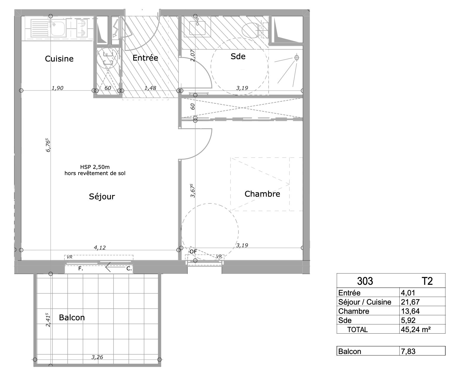
T2 2è étage avec belle vue mer.
Séjour de 22m2+entrée 4m2
terrasse 8m2
Chambre 13,63m2
Salle d'eau douche à l'italienne meuble vasque sèche serviette.
Parking sous sol inclus.

Nous Consulter.

Honoraires à la charge du vendeur. Classe énergie B, Classe climat B Montant estimé des dépenses annuelles d'énergie pour un usage standard : entre 320.00 ? et 510.00 ? sur les années 2021, 2022 et 2023 (abonnements compris). Les informations sur les risques auxquels ce bien est exposé sont disponibles sur le site Géorisques : georisques.gouv.fr.

Votre conseiller MON BIEN A LA MER : Gérant - .fr MON BIEN A LA MER
Carte T CPI 2201 2018 000 025 040
RCP ACM IARD B1 7025278

Etat des risques et pollutions

Les informations sur les risques auxquels ce bien est exposé sont disponibles sur le site Géorisques : www.georisques.gouv.fr.

Caractéristiques du bien

Composition du bien

  • Type d'habitation : Appartement
  • Cuisine : Type de cuisine Non communique
  • Nombre de pièce(s) : 2
  • Nombre de chambre(s) : 1
  • Salles de bain : 1

Aménagement du bien

Extérieur

  • Terrasse : Non
  • Balcon : Non

Partie Commune

  • Ascenseur : Oui
  • Surface habitable : 45 m²
  • Parking : Oui

Localisation du bien

BREST (29200) , FINISTERE (29) - BRETAGNE

Ce bien n'est pas géolocalisé, pour connaitre sa géolocalisation, merci de contacter l'agence.

Consommation énergétique

  • B (66 kWh/m² an)
    B (8 kgCO2/m².an)
    Plus d'info
    66
    8
    8
  • DPE réalisé après le 1er juillet 2021.
  • Entre 320 € TTC / an et 510 € TTC / an
    01/01/2021

Nos professionnels vous accompagnent

Contactez notre agence !

23 Rue des Villeneuves Le Bignon 22400 MORIEUX

Appeler l’agence Tél : 0787285150

* Champs obligatoires

Nous vous informons de l’existence de la liste d’opposition au démarchage téléphonique « BLOCTEL » sur laquelle vous pouvez vous inscrire (https://www.bloctel.gouv.fr).

En complétant le formulaire «CONTACTEZ NOTRE AGENCE », je reconnais expressément que je consens au traitement de mes données personnelles et que je dispose du droit de retirer mon consentement à tout moment en m'adressant à support@fnaim.fr.
En savoir plus sur la gestion de vos données et droits : consulter nos mentions légales, « article 5/ Données à caractère personnel ».

En envoyant ce message, vous acceptez les conditions d'utilisation du site. Plus d'infos