Fnaim.fr
Menu

Réf. VA2463-TALENTIS

Achat Appartement 1 pièce 33m² NANTES 44100

91 000 Honoraires charge acquéreur inclus : 6.4% TTC (85149 € hors honoraires)

Description du bien

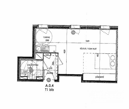
NANTES, CHEZINE STUDIO (33.60m²)
Calme Lumineux Agencement

Situé dans un quartier calme au sein d'une copropriété récente (2014) de bon standing, cet appartement en rez-de-chaussée surélevé offre un agencement fonctionnel et lumineux.

Il comprend :
Une pièce de vie lumineuse avec grand placard intégré,
Une cuisine aménagée et équipée (hotte, plaques électriques, réfrigérateur),
Une salle d'eau avec WC.

À savoir :
Chauffage : Gaz collectif,
Charges : 56?/mois,
Taxe foncière : 732?/an,
Local vélo.

Les atouts :
Copropriété récente de très bon standing,
Idéal pour un investissement locatif ou un primo accédant,
Calme et lumineux,
Agencement optimisé.

Transports à proximité :
Bus : C6, C20 et NO (arrêt Le Nain).

Une belle opportunité locative ou une première acquisition, au sein d'une copropriété de qualité !



Honoraires inclus de 6.43% TTC à la charge de l'acquéreur. Prix hors honoraires 85 500 ?. Dans une copropriété de 116 lots. Aucune procédure n'est en cours. Classe énergie C, Classe climat C Montant estimé des dépenses annuelles d'énergie pour un usage standard : entre 330.00 ? et 500.00 ? sur les années 2021, 2022 et 2023 (abonnements compris). Les informations sur les risques auxquels ce bien est exposé sont disponibles sur le site Géorisques : georisques.gouv.fr.
.
Talentis, l'immobilier sur mesure.

Etat des risques et pollutions

Les informations sur les risques auxquels ce bien est exposé sont disponibles sur le site Géorisques : www.georisques.gouv.fr.

Caractéristiques du bien

Composition du bien

  • Type d'habitation : Appartement
  • Cuisine : Equipée
  • Nombre de pièce(s) : 1

Aménagement du bien

Extérieur

  • Terrasse : Non
  • Balcon : Non

Partie Commune

  • Ascenseur : Non
  • Surface habitable : 33 m²

Informations sur la copropriété

  • Bien soumis au statut de la copropriété
  • Nombre de lots : 116
  • Procédure en cours : Non

Localisation du bien

NANTES (44100) , LOIRE-ATLANTIQUE (44) - PAYS-DE-LA-LOIRE

Ce bien n'est pas géolocalisé, pour connaitre sa géolocalisation, merci de contacter l'agence.

Consommation énergétique

  • C (135 kWh/m² an)
    C (16 kgCO2/m².an)
    Plus d'info
    135
    16
    16
  • DPE réalisé après le 1er juillet 2021.
  • Entre 330 € TTC / an et 500 € TTC / an
    01/01/2021

Nos professionnels vous accompagnent

Contactez notre agence !

6/8, rue Didienne 44000 NANTES

Appeler l’agence Tél : 0251842622

* Champs obligatoires

Nous vous informons de l’existence de la liste d’opposition au démarchage téléphonique « BLOCTEL » sur laquelle vous pouvez vous inscrire (https://www.bloctel.gouv.fr).

En complétant le formulaire «CONTACTEZ NOTRE AGENCE », je reconnais expressément que je consens au traitement de mes données personnelles et que je dispose du droit de retirer mon consentement à tout moment en m'adressant à support@fnaim.fr.
En savoir plus sur la gestion de vos données et droits : consulter nos mentions légales, « article 5/ Données à caractère personnel ».

En envoyant ce message, vous acceptez les conditions d'utilisation du site. Plus d'infos