Fnaim.fr
Menu

Exclusivité
Réf. 11963

Achat Immeuble 87m² LE HAVRE 76600

329 500

Description du bien


EXCLUSIVITÉ PREMIUM- Idéalement situé dans un secteur recherché du Centre Ville Ouest Les Ormeaux, à proximité des établissements scolaires (Fac, Lycée, des commerces et des commodités, cet immeuble en monopropriété représente une opportunité patrimoniale pour investisseurs. L'immeuble se compose de 4 appartements de type F2, tous loués en meublé, offrant une rentabilité immédiate, une gestion simplifiée et une absence de charges de copropriété.

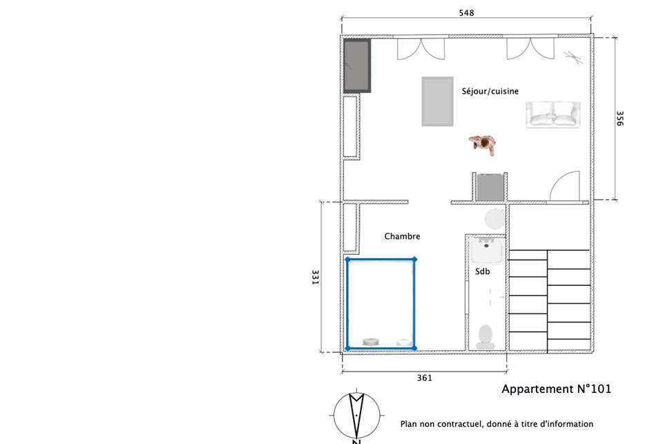
Au rez-de-chaussée : Un APPARTEMENT de type F2 loué en meublé et comprenant : Séjour avec coin cuisine, une chambre, salle de douches avec water-closet.
Au 1er étage : Un APPARTEMENT de type F2 loué en meublé comprenant : Séjour avec coin cuisine, une chambre, salle de douches avec water-closet.
Au 2ème étage : Un APPARTEMENT de type F2 loué en meublé comprenant : Séjour avec coin cuisine, une chambre, salle de douches avec water-closet.
Au 3ème étage : Un APPARTEMENT de type F2 loué en meublé comprenant : Séjour avec coin cuisine, une chambre, salle de douches avec water-closet.
Cave, dépendance et cour. Revenu locatif annuel : 22 080 EUR. « Les informations sur les risques auxquels ce bien est exposé sont disponibles sur le site Géorisques : www.georisques.gouv.fr »

Etat des risques et pollutions

Les informations sur les risques auxquels ce bien est exposé sont disponibles sur le site Géorisques : www.georisques.gouv.fr.

Caractéristiques du bien

Composition du bien

  • Type d'habitation : Immeuble
  • Surface totale : 87 m²

Aménagement du bien

Partie Commune

  • Ascenseur : Non
  • Accès digicode : Non

Localisation du bien

LE HAVRE (76600) , SEINE-MARITIME (76) - NORMANDIE

Ce bien n'est pas géolocalisé, pour connaitre sa géolocalisation, merci de contacter l'agence.

Consommation énergétique

  • D (227 kWh/m² an)
    B (8 kgCO2/m².an)
    Plus d'info
    227
    8
    8
  • DPE réalisé après le 1er juillet 2021.
  • Non communiqué
    01/01/2023

Nos professionnels vous accompagnent

Contactez notre agence !

46 PLACE FRANCOIS MITTERRAND 76290 MONTIVILLIERS

Appeler l’agence Tél : 02 35 20 28 71

* Champs obligatoires

Nous vous informons de l’existence de la liste d’opposition au démarchage téléphonique « BLOCTEL » sur laquelle vous pouvez vous inscrire (https://www.bloctel.gouv.fr).

En complétant le formulaire «CONTACTEZ NOTRE AGENCE », je reconnais expressément que je consens au traitement de mes données personnelles et que je dispose du droit de retirer mon consentement à tout moment en m'adressant à support@fnaim.fr.
En savoir plus sur la gestion de vos données et droits : consulter nos mentions légales, « article 5/ Données à caractère personnel ».

En envoyant ce message, vous acceptez les conditions d'utilisation du site. Plus d'infos