Fnaim.fr
Menu

Réf. 450.FMM

Achat Appartement 3 pièces 69m² CAEN 14000

330 000 Honoraires charge vendeur

2 chambres Ascenseur Parking / Garage

Description du bien

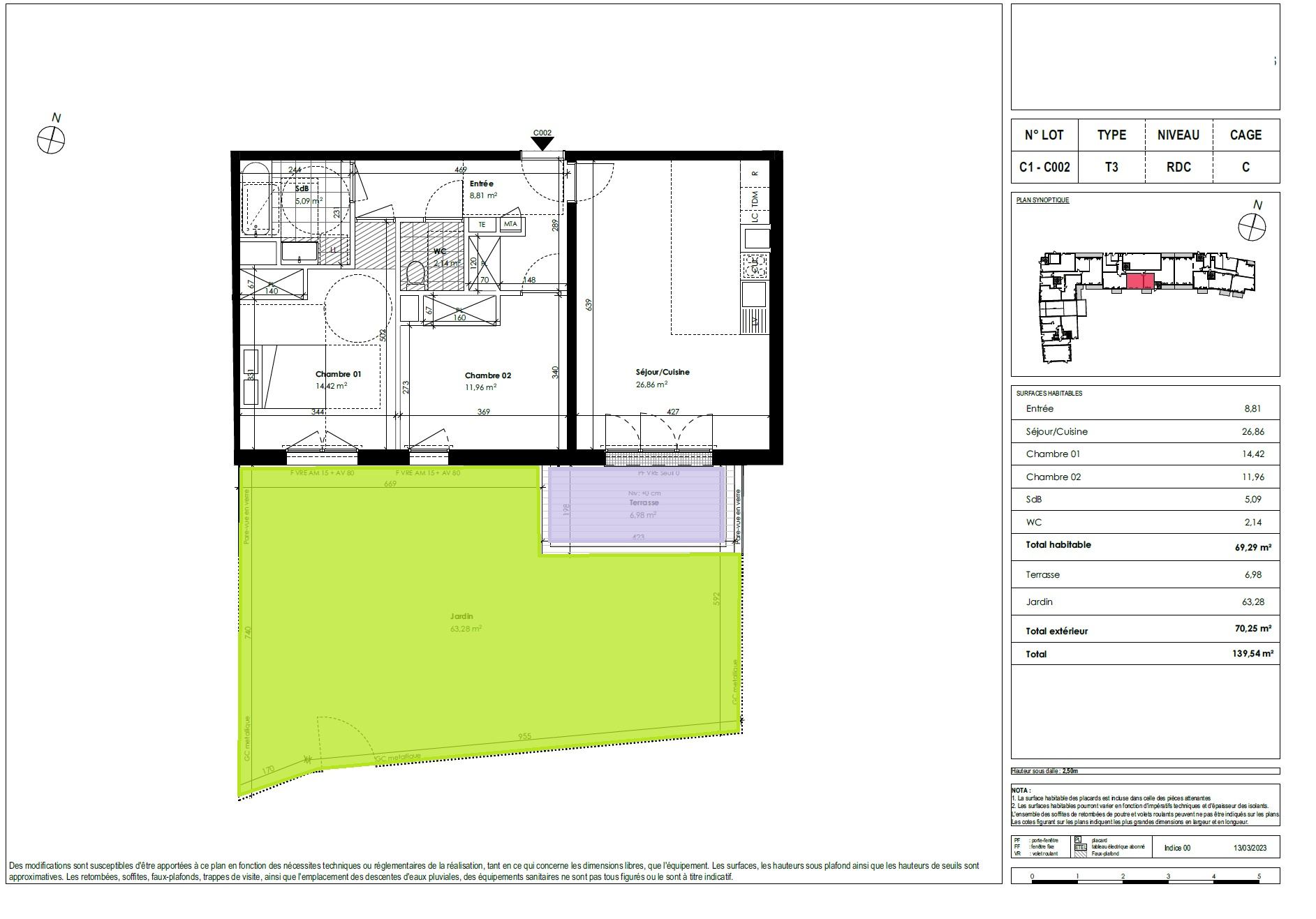
Nuances immobilières vous propose à CAEN du coté CHR, un Appartement 3P de 69m2 exposé Sud et Ouest, profitant d'un beau jardin de 63m2.
Ce bien de standing propose une pièce de vie de 27m2 ouvrant sur l'extérieur, puis 2 grandes chambres de 14m2 et 12m2,1 salle d'eau et wc indépendant.
Un Parking compris dans le prix.
Dernières normes phoniques et thermiques
Disponible printemps 2027
Les informations sont disponibles sur le site Géorisques : www.georisques.gouv.fr'.

Etat des risques et pollutions

Les informations sur les risques auxquels ce bien est exposé sont disponibles sur le site Géorisques : www.georisques.gouv.fr.

Caractéristiques du bien

Composition du bien

  • Type d'habitation : Appartement
  • Cuisine : Type de cuisine Non communique
  • Nombre de pièce(s) : 3
  • Nombre de chambre(s) : 2

Aménagement du bien

Extérieur

  • Terrasse : Non
  • Balcon : Non

Partie Commune

  • Ascenseur : Oui
  • Surface habitable : 69 m²
  • Parking : Oui

Localisation du bien

CAEN (14000) , CALVADOS (14) - NORMANDIE

Ce bien n'est pas géolocalisé, pour connaitre sa géolocalisation, merci de contacter l'agence.

Consommation énergétique

DPE non soumis
mention indiquée sous la responsabilité de l’agence immobilière

Nos professionnels vous accompagnent

Contactez notre agence !

10 rue de l'Oratoire 14000 CAEN

Appeler l’agence Tél : 0231084040

* Champs obligatoires

Nous vous informons de l’existence de la liste d’opposition au démarchage téléphonique « BLOCTEL » sur laquelle vous pouvez vous inscrire (https://www.bloctel.gouv.fr).

En complétant le formulaire «CONTACTEZ NOTRE AGENCE », je reconnais expressément que je consens au traitement de mes données personnelles et que je dispose du droit de retirer mon consentement à tout moment en m'adressant à support@fnaim.fr.
En savoir plus sur la gestion de vos données et droits : consulter nos mentions légales, « article 5/ Données à caractère personnel ».

En envoyant ce message, vous acceptez les conditions d'utilisation du site. Plus d'infos