Fnaim.fr
Menu

Réf. 441042LLAU

Achat Maison 3 pièces 61m² STE LUCE SUR LOIRE 44980

193 500 Honoraires charge acquéreur inclus : 7,5% TTC (178988 € hors honoraires)

2 chambres Jardin

Description du bien

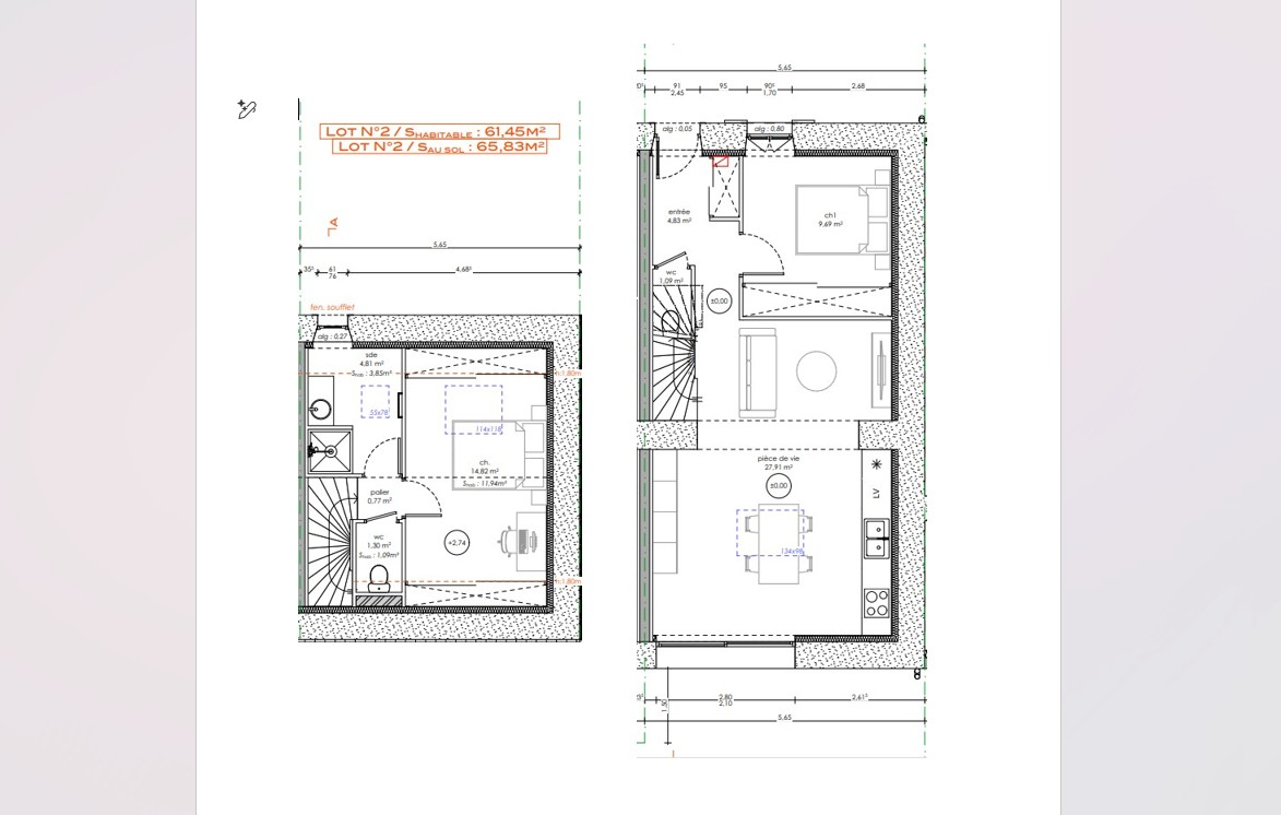
LOT 2 Sainte-Luce-sur-Loire Projet maison avec jardin Terrain 188 m²

Secteur des Trois Chênes 44980 Sainte-Luce-sur-Loire

Belle opportunité sur le secteur, idéale pour résidence principale ou investissement locatif.
Revenu locatif estimé : environ 900 euros / mois.

Sur une parcelle de 188 m², ce projet de maison contemporaine d'environ 61 m² habitables offre un positionnement recherché entre appartement et maison de ville, avec jardin privatif et indépendance.

Projet déjà validé

Permis validé par architecte
Projet accepté en mairie
Normes BBC prévues
2 chambres dont 1 en rez-de-chaussée
2 WC (un par niveau)
Jardin privatif d'environ 80 m²
2 places de stationnement
Aucun voisin au-dessus ni en dessous

Un produit rare sur Sainte-Luce-sur-Loire, parfaitement adapté aux primo-accédants, jeunes couples ou investisseurs recherchant un bien avec extérieur et budget maîtrisé.

Deux options d'acquisition

Option 1 Hors d'eau / Hors d'air : 193 500 euros FAI
Idéal pour personnaliser les finitions et optimiser votre budget travaux.

Option 2 Projet clé en main :
Prévoir un budget complémentaire d'environ 60 000 euros pour une maison neuve, sous garanties, prête à habiter.

Dossier complet et plans disponibles sur demande.

DPE projeté en cours de réalisation ; le DPE présenté correspond à celui de la maison d'origine.

Le lot est proposé au Prix de 180 000 euros dont 7.5% d'honoraires charge acquéreur, soit 193 500 euros hors honoraires.

DPE F GES F
Montant estimé des dépenses annuelles d'énergie pour un usage standard entre 2700 et 3500 euros indexées aux années 2021, 2022 et 2023 logement F ou G Logement à consommation énergétique excessive : classe F ou G
Pour visiter et vous accompagner dans votre projet, contactez Léa LAUMONE, au 0667502144 ou, par courriel à l.laumone@proprietes-privees.com.
Selon l'article L.561.5 du Code Monétaire et Financier, pour l'organisation de la visite, la présentation d'une pièce d'identité vous sera demandée.
Cette présente annonce a été rédigée sous la responsabilité éditoriale de Léa LAUMONE agissant sous le statut d'agent commercial immatriculé au RSAC NANTES 930477765 auprès de SAS PROPRIETES PRIVEES, au capital de 44 920 euros, ZAC LE CHÊNE FERRÉ - 44 ALLÉE DES CINQ CONTINENTS 44120 VERTOU; SIRET 487 624 777 00040, RCS Nantes. Carte Professionnelle Transactions sur immeubles et fonds de commerce (T) et Gestion immobilière (G) n°CPI 4401 2016 000 010 388 délivrée par la CCI Nantes - Saint Nazaire. Compte séquestre n°30932508467 BPA SAINT-SEBASTIEN-SUR-LOIRE (44230). Garantie GALIAN-SMABTP - 89 rue de la Boétie, 75008 Paris - n°28137 J pour 2 000 000 euros pour T et 120 000 euros pour G. Assurance responsabilité civile professionnelle par GALIAN-SMABTP n° de police 28137.J

Mandat réf : 441042 - Le professionnel garantit et sécurise votre projet immobilier. (7.50 % honoraires TTC à la charge de l'acquéreur.)
Copropriété de 2 lots - dont 2 lots habitation.
Léa LAUMONE (EI) Agent Commercial - Numéro RSAC : NANTES 930477765 - .
Les informations sur les risques auxquels ce bien est exposé sont disponibles sur le site Géorisques : www. georisques. gouv. fr

Etat des risques et pollutions

Les informations sur les risques auxquels ce bien est exposé sont disponibles sur le site Géorisques : www.georisques.gouv.fr.

Caractéristiques du bien

Composition du bien

  • Type d'habitation : Maison
  • Nombre de chambres : 2
  • Cuisine : Aménagée

Aménagement du bien

  • Cave : Non
  • Garage / Parking : Non
    • Surface habitable : 61 m²

    Localisation du bien

    STE LUCE SUR LOIRE (44980) , LOIRE-ATLANTIQUE (44) - PAYS-DE-LA-LOIRE

    Ce bien n'est pas géolocalisé, pour connaitre sa géolocalisation, merci de contacter l'agence.

    Consommation énergétique

    • F (344 kWh/m² an)
      F (75 kgCO2/m².an)
      Plus d'info
      344
      75
      75
    • DPE réalisé après le 1er juillet 2021.
    • Entre 2700 € TTC / an et 3600 € TTC / an
      Non communiqué
    • Logement à consommation énergétique excessive : classe F

    Nos professionnels vous accompagnent

    Contactez notre agence !

    44 Allée des Cinq Continents. ZAC Le Chêne Ferré 44120 VERTOU

    Appeler l’agence Tél : 06 67 50 21 44

    * Champs obligatoires

    Nous vous informons de l’existence de la liste d’opposition au démarchage téléphonique « BLOCTEL » sur laquelle vous pouvez vous inscrire (https://www.bloctel.gouv.fr).

    En complétant le formulaire «CONTACTEZ NOTRE AGENCE », je reconnais expressément que je consens au traitement de mes données personnelles et que je dispose du droit de retirer mon consentement à tout moment en m'adressant à support@fnaim.fr.
    En savoir plus sur la gestion de vos données et droits : consulter nos mentions légales, « article 5/ Données à caractère personnel ».

    En envoyant ce message, vous acceptez les conditions d'utilisation du site. Plus d'infos