Fnaim.fr
Menu

Visite virtuelle
Exclusivité
Réf. DOM28585

Achat Appartement 1 pièce 33m² ST MAXIMIN LA STE BAUME 83470

87 500 Honoraires charge acquéreur inclus : 7,4% TTC (80999 € hors honoraires)

Description du bien

Liberkeys vous propose, en exclusivité, un charmant appartement rénové de 32 m² Carrez situé au coeur de Saint-Maximin-la-Sainte-Baume, une commune prisée pour son environnement vivant et ses commerces accessibles à pied. Ce bien rare s'adresse idéalement à un primo-accédant ou à un investisseur cherchant à profiter de la forte demande locative du secteur, portée par la proximité du centre historique, des écoles, ainsi que des espaces verts.

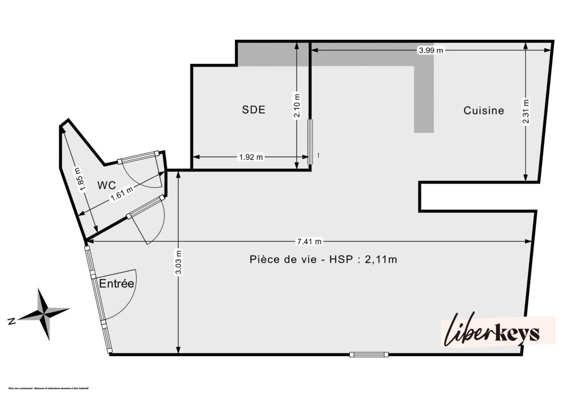
L'appartement se compose d'une vaste pièce de vie de de 27 m² où s'intègrent harmonieusement salon, salle à manger et cuisine équipée. Fonctionnel, il dispose d'une salle d'eau, de toilettes séparées, et d'une cave voutée de 23 m², rare sur le marché, idéale pour créer un espace de rangement ou un atelier.

Proche des principaux axes routiers et à seulement 5 minutes à pied des commodités, ce bien vous garantit un quotidien facilité ainsi qu'un réel potentiel de valorisation. Faibles charges de copropriété : seulement 30 € par trimestre. Taxe foncière : 550 € par an.

Montant estimé des dépenses annuelles d'énergie pour un usage standard : entre 540 € et 760 € par an. Prix moyens des énergies indexés sur l'année 2026 (abonnements compris).

Ce bien vous plaît ? Visitez-le virtuellement en 3D sur le site de Liberkeys ou contactez directement votre conseiller. Référence annonce : DOM28585. Date de réalisation du diagnostic : 13/02/2026. Les honoraires sont à la charge de l'acheteur.

Etat des risques et pollutions

Les informations sur les risques auxquels ce bien est exposé sont disponibles sur le site Géorisques : www.georisques.gouv.fr.

Caractéristiques du bien

Composition du bien

  • Type d'habitation : Appartement
  • Cuisine : Simple
  • Nombre de pièce(s) : 1

Aménagement du bien

Extérieur

  • Terrasse : Non
  • Balcon : Non

Partie Commune

  • Ascenseur : Non
  • Surface habitable : 33 m²

Informations sur la copropriété

  • Bien soumis au statut de la copropriété
  • Nombre de lots : 5
  • Quote part charges courantes : 120 €/an
  • Procédure en cours : Non

Localisation du bien

ST MAXIMIN LA STE BAUME (83470) , VAR (83) - PROVENCE-ALPES-COTE-D-AZUR

Consommation énergétique

  • C (140 kWh/m² an)
    A (140 kgCO2/m².an)
    Plus d'info
    140
    140
    140
  • DPE réalisé après le 1er juillet 2021.
  • Entre 540 € TTC / an et 760 € TTC / an
    Non communiqué

Nos professionnels vous accompagnent

Contactez notre agence !

20 RUE DE MONTHOLON 75009 PARIS 09

Appeler l’agence Tél : 06 30 63 30 74

* Champs obligatoires

Nous vous informons de l’existence de la liste d’opposition au démarchage téléphonique « BLOCTEL » sur laquelle vous pouvez vous inscrire (https://www.bloctel.gouv.fr).

En complétant le formulaire «CONTACTEZ NOTRE AGENCE », je reconnais expressément que je consens au traitement de mes données personnelles et que je dispose du droit de retirer mon consentement à tout moment en m'adressant à support@fnaim.fr.
En savoir plus sur la gestion de vos données et droits : consulter nos mentions légales, « article 5/ Données à caractère personnel ».

En envoyant ce message, vous acceptez les conditions d'utilisation du site. Plus d'infos