Fnaim.fr
Menu

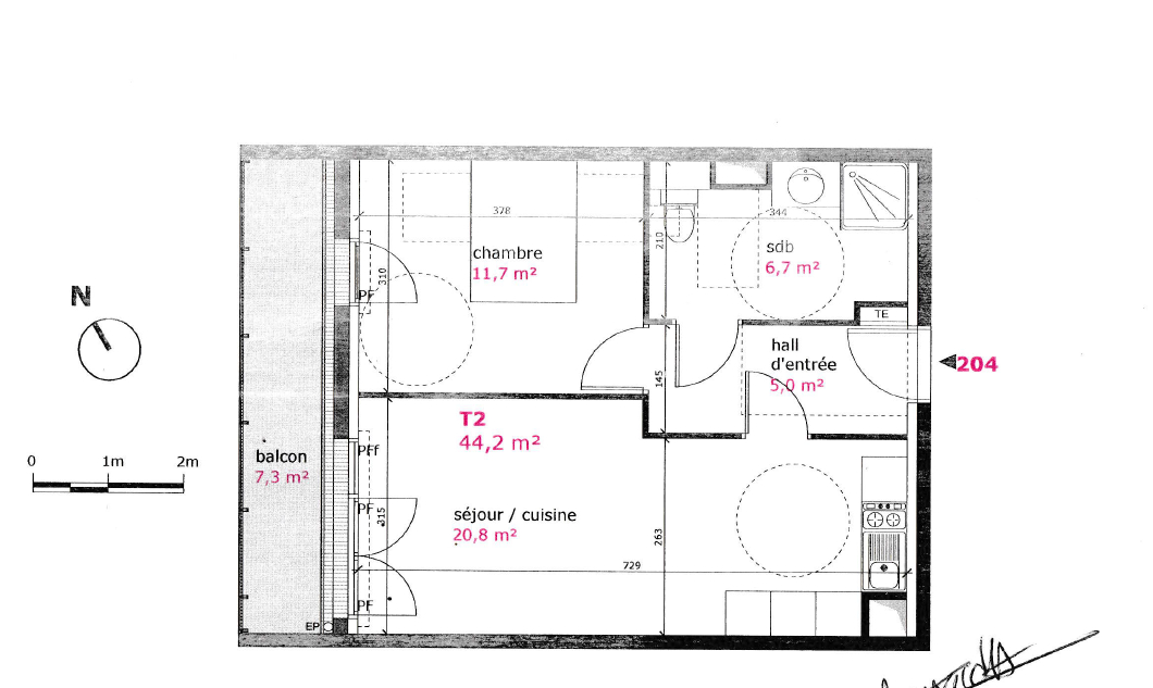
Achat Appartement 2 pièces 42m² NANTES 44300

165 000 Honoraires charge acquéreur inclus : 6,5% TTC (154358 € hors honoraires)

1 chambre Ascenseur Parking / Garage

Description du bien

Dans une résidence de 2014, au calme, venez découvrir ce T2 lumineux situé au 2ème étage avec ascenseur. Vous bénéficierez d'une entrée, d'un séjour avec cuisine ouverte de 20m² donnant un balcon de 8m² exposé ouest avec une vue dégagée, une chambre de 11m², une salle de d'eau avec WC .
Un garage et une cave complètent la vente.
Le chauffage, l'eau chaude et froide sont compris dans les charges de copropriété.
Les informations sur les risques auxquels ce bien est exposé sont disponibles sur le site Géorisques : www. georisques. gouv. fr

Etat des risques et pollutions

Les informations sur les risques auxquels ce bien est exposé sont disponibles sur le site Géorisques : www.georisques.gouv.fr.

Caractéristiques du bien

Composition du bien

  • Type d'habitation : Appartement
  • Cuisine : Simple
  • Nombre de pièce(s) : 2
  • Nombre de chambre(s) : 1

Aménagement du bien

Extérieur

  • Terrasse : Non
  • Balcon : Non

Partie Commune

  • Ascenseur : Oui
  • Surface habitable : 42 m²
  • Parking : Oui

Informations sur la copropriété

  • Bien soumis au statut de la copropriété
  • Nombre de lots : 128
  • Quote part charges courantes : 2507 €/an
  • Procédure en cours : Non

Localisation du bien

NANTES (44300) , LOIRE-ATLANTIQUE (44) - PAYS-DE-LA-LOIRE

Ce bien n'est pas géolocalisé, pour connaitre sa géolocalisation, merci de contacter l'agence.

Consommation énergétique

  • C (139 kWh/m² an)
    A (4 kgCO2/m².an)
    Plus d'info
    139
    4
    4
  • DPE réalisé après le 1er juillet 2021.
  • Entre 570 € TTC / an et 810 € TTC / an
    Non communiqué

Nos professionnels vous accompagnent

Contactez notre agence !

27 place Viarme 44000 NANTES

Appeler l’agence Tél : 02 40 47 03 03

* Champs obligatoires

Nous vous informons de l’existence de la liste d’opposition au démarchage téléphonique « BLOCTEL » sur laquelle vous pouvez vous inscrire (https://www.bloctel.gouv.fr).

En complétant le formulaire «CONTACTEZ NOTRE AGENCE », je reconnais expressément que je consens au traitement de mes données personnelles et que je dispose du droit de retirer mon consentement à tout moment en m'adressant à support@fnaim.fr.
En savoir plus sur la gestion de vos données et droits : consulter nos mentions légales, « article 5/ Données à caractère personnel ».

En envoyant ce message, vous acceptez les conditions d'utilisation du site. Plus d'infos