Fnaim.fr
Menu

Exclusivité
Réf. 215

Achat Appartement 3 pièces 68m²

210 000 Honoraires charge vendeur

2 chambres Parking / Garage

Description du bien


EXCLUSIVITE :
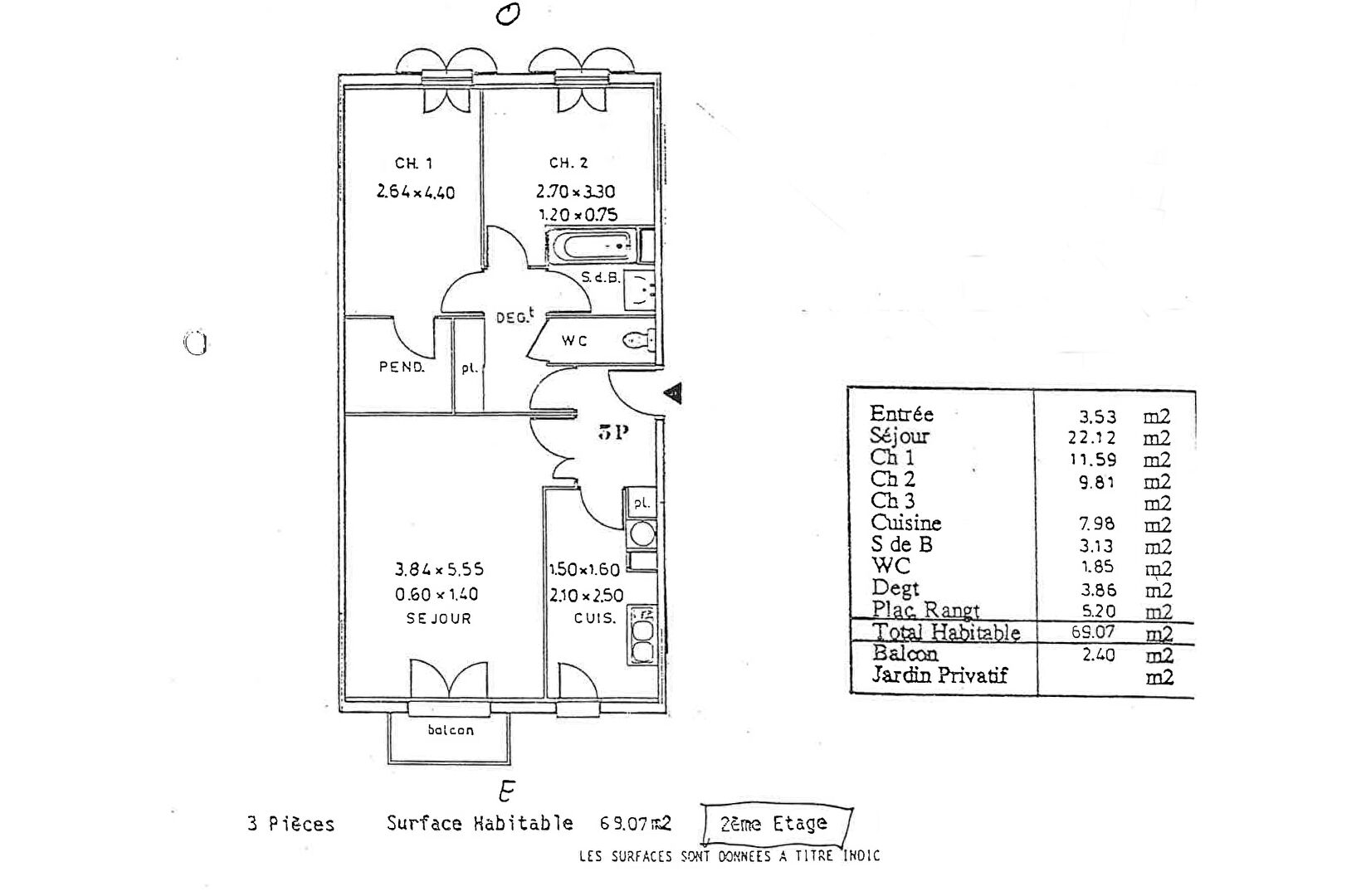
En centre ville, appartement 3 pièces de 68,5m² traversant, au 2ème étage comprenant entrée avec placard, cuisine équipée "semi-ouverte" sur séjour, balcon, dégagement, 2 chambres dont 1 avec bel espace dressing et toutes 2 donnant en intérieur de résidence au calme; salle de bains et wc séparés. Une place de parking privé en sous-sol.
Résidence ravalée, toiture et parties communes changées.

Notre Agence fête ses 26 ANS.
Incontournable sur le secteur, notre agence SYSTEM PLUS Immobilier, bénéficie d'un emplacement numéro 1, en plein centre-ville de Brétigny-sur-Orge. Nos agents, tous professionnels expérimentés de l'immobilier, vous conseillent et vous accompagnent dans vos projets.

Etat des risques et pollutions

Les informations sur les risques auxquels ce bien est exposé sont disponibles sur le site Géorisques : www.georisques.gouv.fr.

Caractéristiques du bien

Composition du bien

  • Type d'habitation : Appartement
  • Cuisine : Type de cuisine Non communique
  • Nombre de pièce(s) : 3
  • Nombre de chambre(s) : 2
  • Salles de bain : 1

Aménagement du bien

Extérieur

  • Terrasse : Non
  • Balcon : Non

Partie Commune

  • Ascenseur : Non
  • Surface habitable : 68 m²
  • Parking : Oui

Informations sur la copropriété

  • Bien soumis au statut de la copropriété
  • Nombre de lots : 200
  • Quote part charges courantes : 1680 €/an
  • Procédure en cours : Non

Localisation du bien

Ce bien n'est pas géolocalisé, pour connaitre sa géolocalisation, merci de contacter l'agence.

Consommation énergétique

  • C (166 kWh/m² an)
    B (5 kgCO2/m².an)
    Plus d'info
    166
    5
    5
  • DPE réalisé après le 1er juillet 2021.
  • Entre 970 € TTC / an et 1360 € TTC / an
    Non communiqué

Nos professionnels vous accompagnent

Contactez notre agence !

14 RUE DU GENERAL LECLERC 91220 BRETIGNY SUR ORGE

Appeler l’agence Tél : 0160842424

* Champs obligatoires

Nous vous informons de l’existence de la liste d’opposition au démarchage téléphonique « BLOCTEL » sur laquelle vous pouvez vous inscrire (https://www.bloctel.gouv.fr).

En complétant le formulaire «CONTACTEZ NOTRE AGENCE », je reconnais expressément que je consens au traitement de mes données personnelles et que je dispose du droit de retirer mon consentement à tout moment en m'adressant à support@fnaim.fr.
En savoir plus sur la gestion de vos données et droits : consulter nos mentions légales, « article 5/ Données à caractère personnel ».

En envoyant ce message, vous acceptez les conditions d'utilisation du site. Plus d'infos