Fnaim.fr
Menu

Visite virtuelle
Réf. VA6398-BIENALAMER

Achat Appartement 3 pièces 61m² L HERMITAGE 35590

243 000 Honoraires charge vendeur

2 chambres Parking / Garage

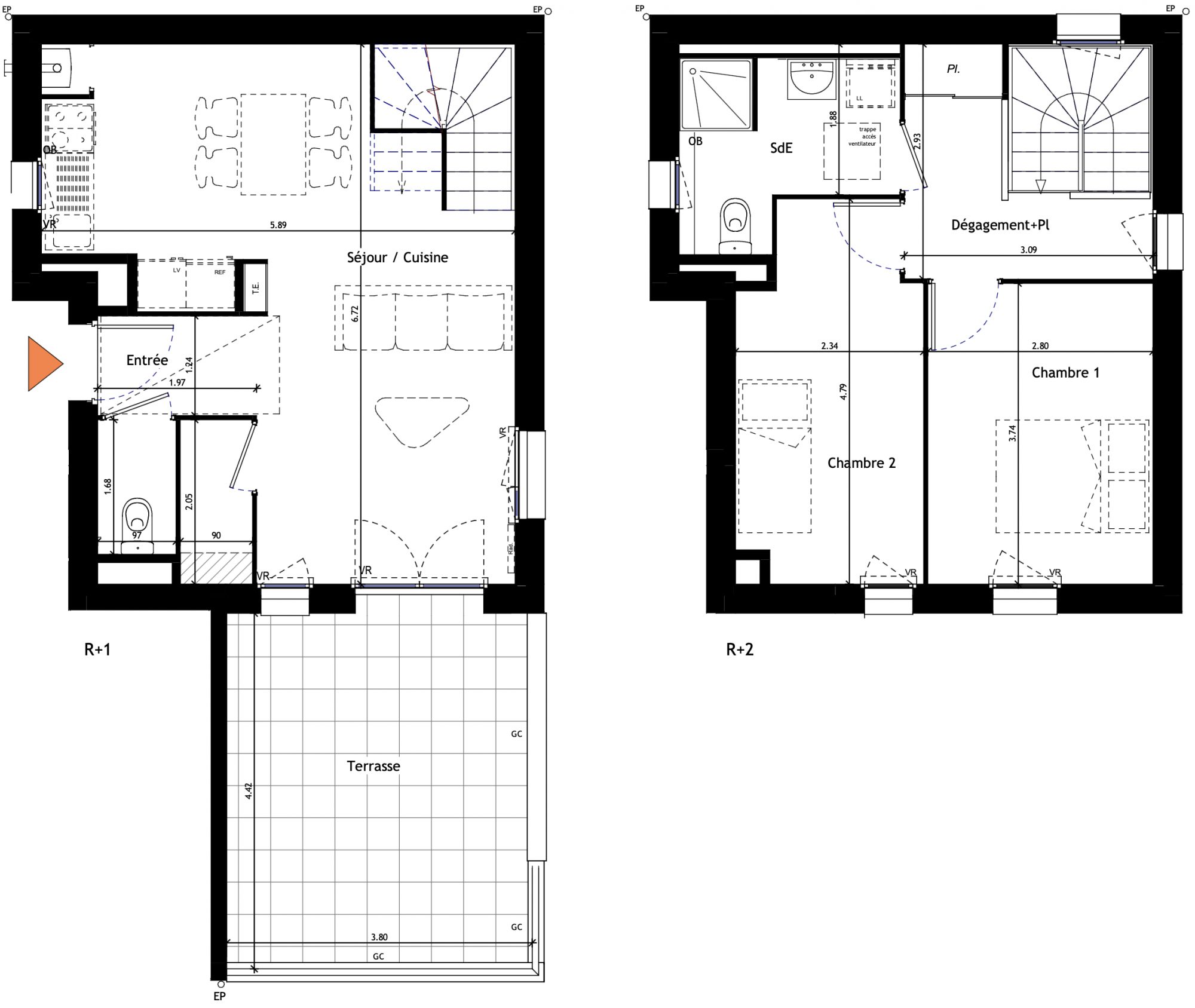
Description du bien

Petite résidence - travaux en cours et visitable, idéalement située :
A pied de la gare et du centre mais au calme, résidentiel et boisé
10min RENNES centre par la Gare.
Faibles charges de copropriété, frais de notaire réduits.
FIn de travaux, visitable.

Spacieux T3 duplex au 1er et 2è (dernier) étage :
Séjour donnant sur grande terrasse privative, wc.
Deux chambres, salle d'eau wc à l'étage.
Deux places de parking couvertes.
Expo sud.

Nous consulter.

Honoraires à la charge du vendeur. Non soumis au DPE. Les informations sur les risques auxquels ce bien est exposé sont disponibles sur le site Géorisques : georisques.gouv.fr.

Votre conseiller MON BIEN A LA MER : Gérant - .fr MON BIEN A LA MER
Carte T CPI 2201 2018 000 025 040
RCP ACM IARD B1 7025278

Etat des risques et pollutions

Les informations sur les risques auxquels ce bien est exposé sont disponibles sur le site Géorisques : www.georisques.gouv.fr.

Caractéristiques du bien

Composition du bien

  • Type d'habitation : Appartement
  • Cuisine : Type de cuisine Non communique
  • Nombre de pièce(s) : 3
  • Nombre de chambre(s) : 2
  • Salles de bain : 1

Aménagement du bien

Extérieur

  • Terrasse : Non
  • Balcon : Non

Partie Commune

  • Ascenseur : Non
  • Surface habitable : 61 m²
  • Parking : Oui

Localisation du bien

L HERMITAGE (35590) , ILLE-ET-VILAINE (35) - BRETAGNE

Ce bien n'est pas géolocalisé, pour connaitre sa géolocalisation, merci de contacter l'agence.

Consommation énergétique

DPE non soumis
mention indiquée sous la responsabilité de l’agence immobilière

Nos professionnels vous accompagnent

Contactez notre agence !

23 Rue des Villeneuves Le Bignon 22400 MORIEUX

Appeler l’agence Tél : 0787285150

* Champs obligatoires

Nous vous informons de l’existence de la liste d’opposition au démarchage téléphonique « BLOCTEL » sur laquelle vous pouvez vous inscrire (https://www.bloctel.gouv.fr).

En complétant le formulaire «CONTACTEZ NOTRE AGENCE », je reconnais expressément que je consens au traitement de mes données personnelles et que je dispose du droit de retirer mon consentement à tout moment en m'adressant à support@fnaim.fr.
En savoir plus sur la gestion de vos données et droits : consulter nos mentions légales, « article 5/ Données à caractère personnel ».

En envoyant ce message, vous acceptez les conditions d'utilisation du site. Plus d'infos