Fnaim.fr
Menu

Exclusivité
Réf. 2527

Achat Appartement 3 pièces 79m² NIMES 30900

160 000 Honoraires charge vendeur

2 chambres

Description du bien

NIMES ARENES / JEAN JAURES EN EXCLUSIVITE

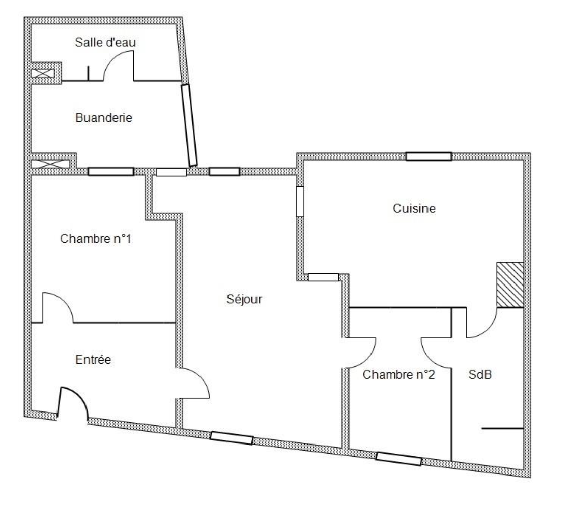
Au sein d'un ensemble immobilier entièrement rénové parfaitement situé entre les Arènes et l'avenue Jean-Jaurès, à proximité immédiate des commodités, découvrez cet appartement T3 de 78 m2 entièrement rénove en rez-de-chaussée, il se compose :

- une entrée
- un charmant séjour mettant en valeur un mur en pierre, apportant cachet et authenticité
- Une cuisine séparée
- Une buanderie
- Deux chambres,
- Une salle de bain ainsi que d'une salle d'eau, offrant un agencement fonctionnel et confortable.

Le bien bénéficie de prestations de qualité avec du double vitrage, un système de chauffage par pompe à chaleur air/air et la climatisation, garantissant un excellent confort thermique en toute saison.

Ce bien rénové avec soin conviendra aussi bien à une résidence principale qu'à un investissement, dans un secteur central et recherché de Nîmes.

Copro 5 Appt / 17 lots, Charges de copropriété néant - Honoraires charge vendeur- Les informations sur les risques auxquels ce bien est exposé sont disponibles sur le site Géorisques : www.géorisques.gouv.fr

Etat des risques et pollutions

Les informations sur les risques auxquels ce bien est exposé sont disponibles sur le site Géorisques : www.georisques.gouv.fr.

Caractéristiques du bien

Composition du bien

  • Type d'habitation : Appartement
  • Cuisine : Américaine
  • Nombre de pièce(s) : 3
  • Nombre de chambre(s) : 2
  • Salles de bain : 1

Aménagement du bien

Extérieur

  • Terrasse : Non
  • Balcon : Non

Partie Commune

  • Ascenseur : Non
  • Surface habitable : 79 m²

Localisation du bien

NIMES (30900) , GARD (30) - OCCITANIE

Ce bien n'est pas géolocalisé, pour connaitre sa géolocalisation, merci de contacter l'agence.

Consommation énergétique

  • C (130 kWh/m² an)
    A (4 kgCO2/m².an)
    Plus d'info
    130
    4
    4
  • DPE réalisé après le 1er juillet 2021.
  • Entre 1008 € TTC / an et 1364 € TTC / an
    01/01/2023

Nos professionnels vous accompagnent

Contactez notre agence !

16 RUE DE VERDUN 30000 NIMES

Appeler l’agence Tél : 0466366186

* Champs obligatoires

Nous vous informons de l’existence de la liste d’opposition au démarchage téléphonique « BLOCTEL » sur laquelle vous pouvez vous inscrire (https://www.bloctel.gouv.fr).

En complétant le formulaire «CONTACTEZ NOTRE AGENCE », je reconnais expressément que je consens au traitement de mes données personnelles et que je dispose du droit de retirer mon consentement à tout moment en m'adressant à support@fnaim.fr.
En savoir plus sur la gestion de vos données et droits : consulter nos mentions légales, « article 5/ Données à caractère personnel ».

En envoyant ce message, vous acceptez les conditions d'utilisation du site. Plus d'infos