Fnaim.fr
Menu

Visite virtuelle
Exclusivité
Réf. DOM26684

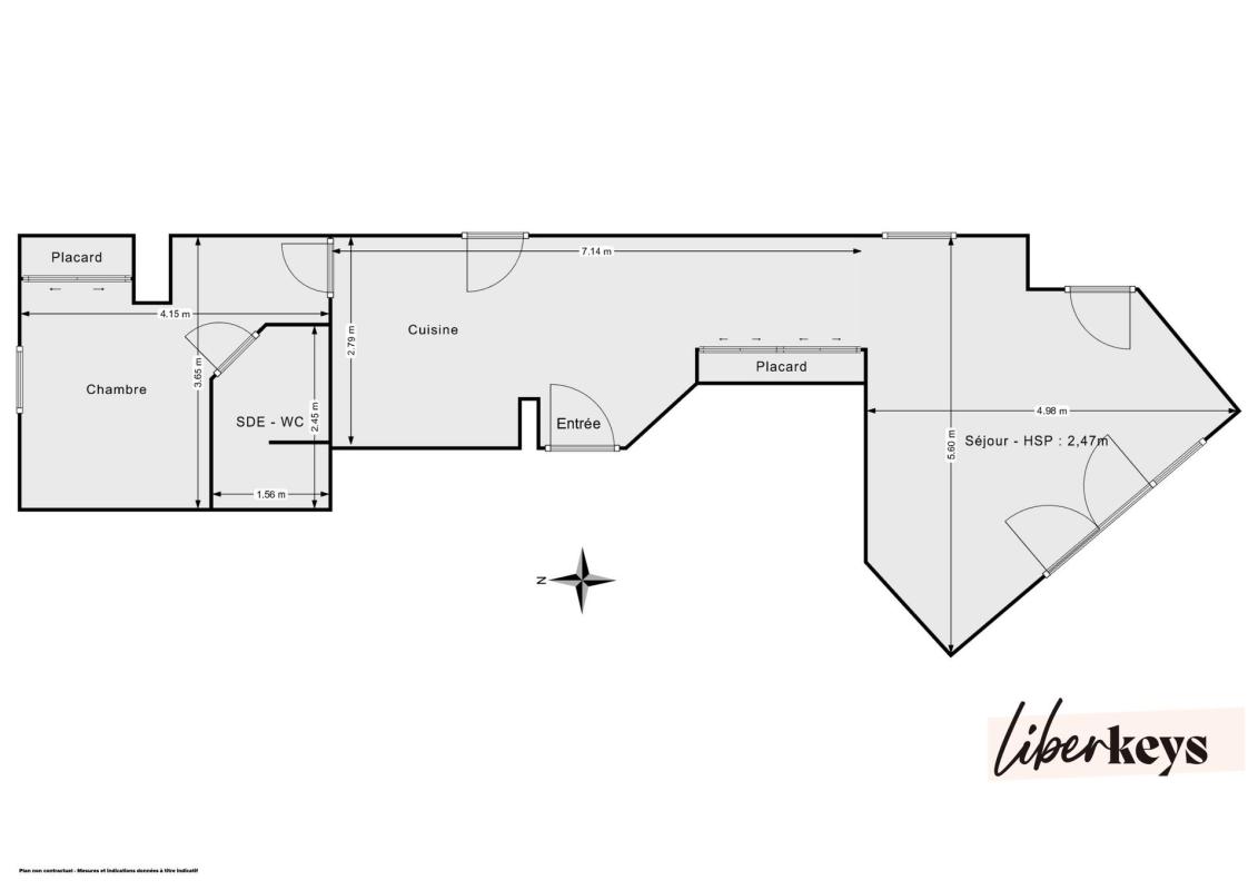
Achat Appartement 2 pièces 50m² LYON 5ème

220 000 Honoraires charge vendeur

1 chambre Ascenseur Parking / Garage

Description du bien

Lyon 5 - Rooftop végétalisé exceptionnel de 88 m² au dernier étage
Au dernier étage d'une copropriété intimiste de 13 appartements, découvrez un bien rare sur le marché lyonnais : un appartement de 50 m² prolongé par un véritable jardin suspendu de 88 m².
La terrasse, entièrement végétalisée, accueille une cinquantaine d'arbres - palmiers, olivier, bambous et lavande - créant un écrin de verdure unique en ville.
Un véritable esprit "maison sur le toit"
Grâce à sa triple exposition, ce rooftop baigné de lumière offre un cadre idéal pour recevoir, dîner en extérieur ou simplement profiter d'un calme bienvenu au coeur de la ville.
L'appartement, fonctionnel et lumineux, bénéficie d'un DPE C.
L'entrée dessert un espace de vie agréable, composé d'un salon et d'une cuisine ouverte entièrement équipée, le tout ouvrant sur la terrasse.
L'espace nuit comprend une chambre, une salle d'eau et un WC.
De nombreux rangements optimisent l'agencement.
Box possible en supplément.
Un bien rare, idéal pour celles et ceux qui recherchent un extérieur d'exception en milieu urbain.
Prestations de qualité :
- Copropriété de 2006 très bien entretenue, sécurisée avec ascenseur
- Arrosage automatique permettant d'entretenir facilement ce jardin suspendu.
- Climatisation réversible
- Borne électrique dans le box
- Chaudière gaz individuelle entretenue par l'immeuble.
Ce bien vous plaît ? Visitez-le virtuellement en 3D sur le site de Liberkeys ou contactez directement votre conseiller, Sabine Viot Coster, agent commercial immatriculé au RSAC de sous le numéro 750 163 412. Référence annonce : DOM11947. Date de réalisation du diagnostic : 27/01/2026. Les honoraires sont à la charge du vendeur.

Etat des risques et pollutions

Les informations sur les risques auxquels ce bien est exposé sont disponibles sur le site Géorisques : www.georisques.gouv.fr.

Caractéristiques du bien

Composition du bien

  • Type d'habitation : Appartement
  • Cuisine : Equipée
  • Nombre de pièce(s) : 2
  • Nombre de chambre(s) : 1

Aménagement du bien

Extérieur

  • Terrasse : Non
  • Balcon : Non

Partie Commune

  • Ascenseur : Oui
  • Surface habitable : 50 m²
  • Parking : Oui

Informations sur la copropriété

  • Bien soumis au statut de la copropriété
  • Nombre de lots : 27
  • Quote part charges courantes : 3204 €/an
  • Procédure en cours : Non

Localisation du bien

LYON 05 (69005) , RHONE (69) - AUVERGNE-RHÔNE-ALPES

Consommation énergétique

  • C (142 kWh/m² an)
    C (24 kgCO2/m².an)
    Plus d'info
    142
    24
    24
  • DPE réalisé après le 1er juillet 2021.
  • Entre 830 € TTC / an et 1200 € TTC / an
    Non communiqué

Nos professionnels vous accompagnent

Contactez notre agence !

20 RUE DE MONTHOLON 75009 PARIS 09

Appeler l’agence Tél : 06 88 69 07 37

* Champs obligatoires

Nous vous informons de l’existence de la liste d’opposition au démarchage téléphonique « BLOCTEL » sur laquelle vous pouvez vous inscrire (https://www.bloctel.gouv.fr).

En complétant le formulaire «CONTACTEZ NOTRE AGENCE », je reconnais expressément que je consens au traitement de mes données personnelles et que je dispose du droit de retirer mon consentement à tout moment en m'adressant à support@fnaim.fr.
En savoir plus sur la gestion de vos données et droits : consulter nos mentions légales, « article 5/ Données à caractère personnel ».

En envoyant ce message, vous acceptez les conditions d'utilisation du site. Plus d'infos