Fnaim.fr
Menu

Réf. TMAI157330

Achat Maison 4 pièces 92m² DOMPIERRE SUR MER 17139

349 000 Honoraires charge vendeur

3 chambres Parking / Garage

Description du bien

A VENDRE chez CITYA Ardouin Immobilier La Rochelle : Maison NEUVE T4 à Dompierre-sur-Mer, disponible de suite - A VENDRE chez CITYA Ardouin Immobilier La Rochelle

Nous vous proposons une maison neuve de type T4 située à Dompierre-sur-Mer. Construite en 2025, cette propriété moderne répond aux normes de la réglementation thermique RT 2012, garantissant ainsi un confort optimal et une efficacité énergétique.

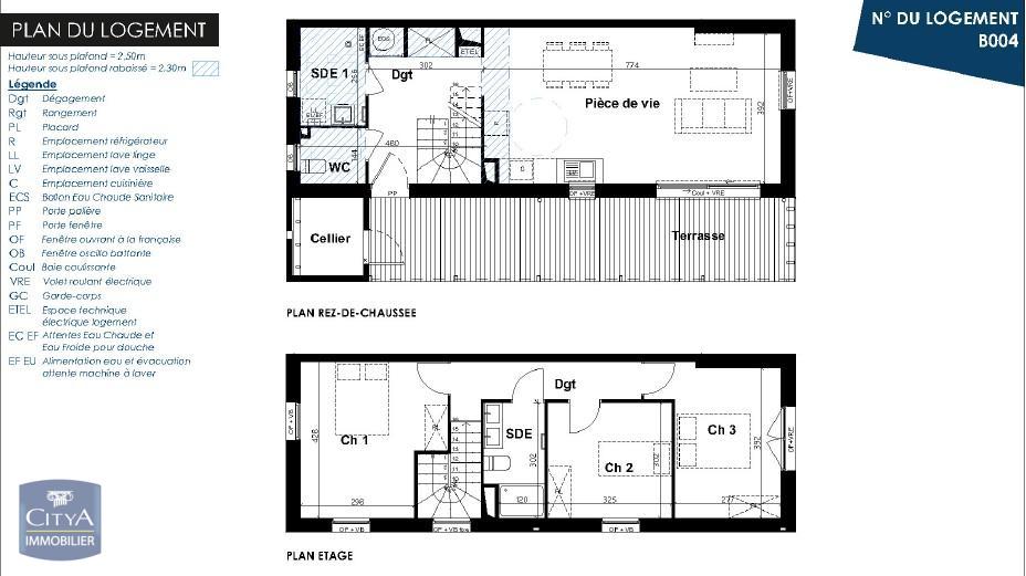
D'une superficie habitable de 92m2 cette maison dispose de quatre pièces au total, dont trois chambres spacieuses à l'étage. Au rez-de-chaussée, vous trouverez une entrée accueillante, une lingerie avec la possibilité d'aménager une salle de douche, ainsi qu'un WC séparé et une penderie. La pièce de vie, lumineuse et conviviale, est conçue pour accueillir votre future cuisine aménagée, avec toutes les attentes déjà en place. De plus, un accès direct à la terrasse vous permettra de profiter des extérieurs.

À l'étage, vous découvrirez trois chambres confortables, accompagnées d'une salle d'eau avec WC, offrant ainsi un espace de vie fonctionnel et agréable pour toute la famille.

La maison est également dotée d'un jardin clos et paysagé, idéal pour les moments de détente en plein air, ainsi qu'un cabanon de jardin pour le rangement.

Pour le stationnement, deux places de parking sont disponibles. La maison est orientée sud-ouest, garantissant une belle luminosité tout au long de la journée. Cette propriété est idéale pour les familles à la recherche d'un cadre de vie paisible et pratique. De plus, une possibilité de prêt à taux zéro (PTZ) est envisageable sous certaines conditions.

Cette maison, très lumineuse et sous garantie, représente une opportunité à ne pas manquer pour ceux qui souhaitent s'installer dans un cadre moderne et fonctionnel. Le bien est soumis au statut de la copropriété , la quote-part budget prévisionnel (dépenses courantes) est de 150,00 euros/an.
Honoraires à la charge du vendeur.
Vous pouvez consulter les barèmes d'honoraires à l'adresse suivante : https://www.citya.com/agences-immobilieres/la-rochelle-17000/179 . Montant estimé des dépenses annuelles d'énergie pour un usage standard : entre 585 et 792 euros. Prix moyens des énergies indexés en 2023. Les informations sur les risques auxquels ce bien est exposé sont disponibles sur le site Géorisques : https://www.georisques.gouv.fr

Etat des risques et pollutions

Les informations sur les risques auxquels ce bien est exposé sont disponibles sur le site Géorisques : www.georisques.gouv.fr.

Caractéristiques du bien

Composition du bien

  • Type d'habitation : Maison
  • Nombre de chambres : 3
  • Cuisine : Sans cuisine

Aménagement du bien

  • Cave : Non
  • Garage / Parking : Oui
    • Surface habitable : 92 m²
    • Parking : Oui

    Informations sur la copropriété

    • Bien soumis au statut de la copropriété
    • Quote part charges courantes : 150 €/an
    • Procédure en cours : Non

    Localisation du bien

    DOMPIERRE SUR MER (17139) , CHARENTE-MARITIME (17) - NOUVELLE-AQUITAINE

    Ce bien n'est pas géolocalisé, pour connaitre sa géolocalisation, merci de contacter l'agence.

    Consommation énergétique

    • A (61 kWh/m² an)
      A (2 kgCO2/m².an)
      Plus d'info
      61
      2
      2
    • DPE réalisé après le 1er juillet 2021.
    • Entre 585 € TTC / an et 792 € TTC / an
      01/01/2023

    Nos professionnels vous accompagnent

    Contactez notre agence !

    33 Bis, Quai Valin 17000 LA ROCHELLE

    Appeler l’agence Tél : 05 46 50 05 25

    * Champs obligatoires

    Nous vous informons de l’existence de la liste d’opposition au démarchage téléphonique « BLOCTEL » sur laquelle vous pouvez vous inscrire (https://www.bloctel.gouv.fr).

    En complétant le formulaire «CONTACTEZ NOTRE AGENCE », je reconnais expressément que je consens au traitement de mes données personnelles et que je dispose du droit de retirer mon consentement à tout moment en m'adressant à support@fnaim.fr.
    En savoir plus sur la gestion de vos données et droits : consulter nos mentions légales, « article 5/ Données à caractère personnel ».

    En envoyant ce message, vous acceptez les conditions d'utilisation du site. Plus d'infos