Fnaim.fr
Menu

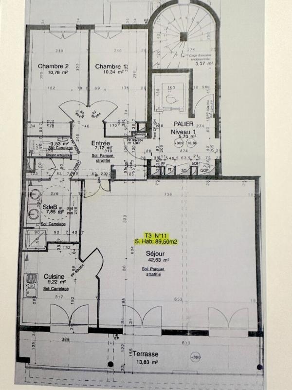
Appartement 3 pièces 89m² STE LUCE SUR LOIRE 44980 STE LUCE SUR LOIRE
Exclusivité
Réf. 436263BNP

Achat Appartement 3 pièces 89m² STE LUCE SUR LOIRE 44980

343 000 Honoraires charge acquéreur inclus : 3.9% TTC (329486 € hors honoraires)

2 chambres Balcon Ascenseur Parking / Garage

Description du bien

Centre-ville de Sainte Luce sur Loire . Proche Nantes centre .
Découvrez ce très bel appartement impeccable ,spacieux et lumineux , avec de nombreux rangements et 2 garages .
Idéalement situé en plein coeur du centre-ville, face à la place du marché, au sein d'une petite copropriété calme et très bien entretenue, composée majoritairement de propriétaires, cet appartement offre un cadre de vie confortable, lumineux et recherché.
Situé au 1er étage avec ascenseur, il bénéficie d'une exposition plein sud, apportant une belle luminosité tout au long de la journée, ainsi que d'un grand balcon agréable et ensoleillé.
L'entrée, très spacieuse, dispose d'un grand placard de rangement.
Elle dessert un vaste salon-séjour de plus de 42 m², lumineux et chaleureux, avec parquet et matériaux de qualité.
La cuisine aménagée et équipée est fonctionnelle et parfaitement intégrée à l'espace de vie.
La partie nuit comprend deux chambres, chacune dotée de placards intégrés.
Une grande salle de douche, particulièrement confortable, offre de nombreux rangements ainsi qu'un très grand placard intégré.
En sous-sol, l'appartement dispose de deux boxes fermés, sécurisés et faciles d'accès, un véritable atout en centre-ville.
Emplacement privilégié : commerces de proximité, commerces ,marché, transports Bus C7 à 2 minutes à pieds , médecins et services accessibles à pied, offrant une véritable qualité de vie au quotidien.
- Appartement très bien entretenu
- Copropriété soignée
-Ascenseur
-Balcon sud
-Emplacement central recherché
- 2 garages fermés et sécurisés

Pour vous accompagner dans votre projet ou visiter, contactez moi:
Pascal BLON au 06.74.91.88.84 ou par courriel à p.blon@proprietes-privees.com agissant en tant qu'agent commercial pour la SAS PROPRIETES PRIVEES, RCS 350 218 228, ZAC du chêne ferré 44 allée des cinq continents 44120 VERTOU, Carte professionnelle CPI 4401 2016 000 010 388 CCI Nantes Saint Nazaire RCS NANTES- Mandat N° 436263
Lucéen , je vous conseille, vous garantit et sécurise votre projet immobilier.
Prix HAI 343 000euros et 330 000 euros net vendeur .
Soit 3,9 % d'honoraires TTC à la charge de l'acquéreur.
Tel : 06 74 91 88 84 .
.
(3.94 % honoraires TTC à la charge de l'acquéreur.)
Copropriété de 29 lots - dont 13 lots habitation.

Charges annuelles : 1653 euros.
Pascal BLON (EI) Agent Commercial - Numéro RSAC : NANTES 350218228 - .
Les informations sur les risques auxquels ce bien est exposé sont disponibles sur le site Géorisques : www. georisques. gouv. fr

Etat des risques et pollutions

Les informations sur les risques auxquels ce bien est exposé sont disponibles sur le site Géorisques : www.georisques.gouv.fr.

Caractéristiques du bien

Composition du bien

  • Type d'habitation : Appartement
  • Cuisine : Aménagée
  • Nombre de pièce(s) : 3
  • Nombre de chambre(s) : 2

Aménagement du bien

Extérieur

  • Terrasse : Non
  • Balcon : Oui

Partie Commune

  • Ascenseur : Oui
  • Surface habitable : 89 m²
  • Parking : Oui

Informations sur la copropriété

  • Bien soumis au statut de la copropriété
  • Nombre de lots : 29
  • Quote part charges courantes : 1653 €/an
  • Procédure en cours : Non

Localisation du bien

STE LUCE SUR LOIRE (44980) , LOIRE-ATLANTIQUE (44) - PAYS-DE-LA-LOIRE

Consommation énergétique

  • C (123 kWh/m² an)
    C (24 kgCO2/m².an)
    Plus d'info
    123
    24
    24
  • DPE réalisé après le 1er juillet 2021.
  • Entre 1110 € TTC / an et 1530 € TTC / an
    Non communiqué

Nos professionnels vous accompagnent

Contactez notre agence !

44 Allée des Cinq Continents. ZAC Le Chêne Ferré 44120 VERTOU

Appeler l’agence Tél : 06 74 91 88 84

* Champs obligatoires

Nous vous informons de l’existence de la liste d’opposition au démarchage téléphonique « BLOCTEL » sur laquelle vous pouvez vous inscrire (https://www.bloctel.gouv.fr).

En complétant le formulaire «CONTACTEZ NOTRE AGENCE », je reconnais expressément que je consens au traitement de mes données personnelles et que je dispose du droit de retirer mon consentement à tout moment en m'adressant à support@fnaim.fr.
En savoir plus sur la gestion de vos données et droits : consulter nos mentions légales, « article 5/ Données à caractère personnel ».

En envoyant ce message, vous acceptez les conditions d'utilisation du site. Plus d'infos