Fnaim.fr
Menu

Exclusivité
Réf. 554BISLVEG

Achat Appartement 2 pièces 39m² NANTES 44200

154 000 Honoraires charge acquéreur inclus : 6.2% TTC (144437 € hors honoraires)

1 chambre Ascenseur Parking / Garage

Description du bien

Nantes Saint-Jacques - Aux croisements du boulevard de Vendée, de la route de Vertou et de la Route de Clisson, cet appartement est idéalement placé pour votre résidence principale, car aux pieds du busway et de l'accès au périphérique ou pour votre investissement locatif car très proche du lycée de la Joliverie et de ses étudiants.
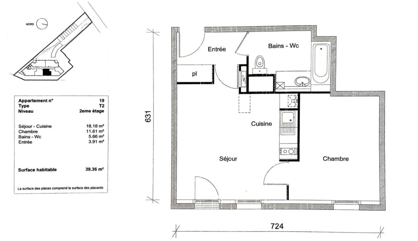
Dans une petite résidence de 10 ans comprenant seulement 26 appartements; venez visiter ce type 2 d'environ 39 m² habitables.
Situé au 2ème étage avec ascenseur, cet appartement en parfait état, sans travaux à prévoir.
Appartement comprenant une entrée avec placard, une salle de bain avec WC (meuble vasque et machine à laver), une pièce de vie d'environ 19 m² (avec espace cuisine aménagé et équipé), une grande chambre. En complément, une place de parking en sous-sol. Vous bénéficierez d'un local à vélo commun sécurisé.

Cette annonce comporte des photos de suggestions d'aménagements proposé par l'IA.

Les informations sur les risques auxquels ce bien est exposé sont disponibles sur le site Géorisques: www.georisques.gouv.fr (6.21 % honoraires TTC à la charge de l'acquéreur.)
Copropriété de 58 lots - dont 26 lots habitation.

Charges annuelles : 1056 euros.

Etat des risques et pollutions

Les informations sur les risques auxquels ce bien est exposé sont disponibles sur le site Géorisques : www.georisques.gouv.fr.

Caractéristiques du bien

Composition du bien

  • Type d'habitation : Appartement
  • Cuisine : Aménagée
  • Nombre de pièce(s) : 2
  • Nombre de chambre(s) : 1
  • Salles de bain : 1

Aménagement du bien

Extérieur

  • Terrasse : Non
  • Balcon : Non

Partie Commune

  • Ascenseur : Oui
  • Surface habitable : 39 m²
  • Parking : Oui

Informations sur la copropriété

  • Bien soumis au statut de la copropriété
  • Nombre de lots : 58
  • Quote part charges courantes : 1056 €/an
  • Procédure en cours : Non

Localisation du bien

NANTES (44200) , LOIRE-ATLANTIQUE (44) - PAYS-DE-LA-LOIRE

Consommation énergétique

  • C (85 kWh/m² an)
    C (16 kgCO2/m².an)
    Plus d'info
    85
    16
    16
  • DPE réalisé après le 1er juillet 2021.
  • Entre 340 € TTC / an et 460 € TTC / an
    Non communiqué

Nos professionnels vous accompagnent

Contactez notre agence !

32, avenue de la Libération 44400 REZE

Appeler l’agence Tél : 02 40 48 82 82

* Champs obligatoires

Nous vous informons de l’existence de la liste d’opposition au démarchage téléphonique « BLOCTEL » sur laquelle vous pouvez vous inscrire (https://www.bloctel.gouv.fr).

En complétant le formulaire «CONTACTEZ NOTRE AGENCE », je reconnais expressément que je consens au traitement de mes données personnelles et que je dispose du droit de retirer mon consentement à tout moment en m'adressant à support@fnaim.fr.
En savoir plus sur la gestion de vos données et droits : consulter nos mentions légales, « article 5/ Données à caractère personnel ».

En envoyant ce message, vous acceptez les conditions d'utilisation du site. Plus d'infos