Fnaim.fr
Menu

Réf. 25015-COLIN1

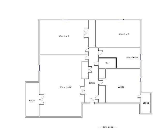
Achat Appartement 3 pièces 70m² VILLEFRANCHE SUR SAONE 69400

135 000 Honoraires charge vendeur

2 chambres Balcon Parking / Garage

Description du bien

VILLEFRANCHE PROXIMITE GARE ET ACCES AUTOROUTE: L'agence COLIN Immobilier vous propose ce T3 de 70m2 situé au 2éme étage (sans ascenseur) d'une résidence avec parc, très bien entretenue, et dont le ravalement a été fait récemment. Orienté au sud avec également une exposition au nord et à l'ouest, cet appartement, très propre et bien entretenu bénéficie d'un balcon avec une vue dégagée. Nous disposons d'un garage (box fermé), en extérieur, situé juste devant l'entrée de l'immeuble, ainsi que d'une cave. Montant des charges annuelles: 1911 euros comprenant les charges de copropriété et le chauffage. Les informations sur les risques auxquels ce bien est exposé sont disponibles sur le site 'www.georisques.gouv.fr'. Votre interlocuteur Laurent COLIN, Agent Immobilier et Administrateur de Biens, depuis 2004, titulaire de la carte professionnelle Transaction et Gestion 6902 2018 000 025 432 (CCI du Beaujolais). N'hésitez pas à nous contacter , pour de plus amples informations

Honoraires à la charge du vendeur. Classe énergie D, Classe climat D Montant estimé des dépenses annuelles d'énergie pour un usage standard : entre 1410.00 ? et 1950.00 ? sur les années 2021, 2022 et 2023 (abonnements compris). Les informations sur les risques auxquels ce bien est exposé sont disponibles sur le site Géorisques : georisques.gouv.fr.

Etat des risques et pollutions

Les informations sur les risques auxquels ce bien est exposé sont disponibles sur le site Géorisques : www.georisques.gouv.fr.

Caractéristiques du bien

Composition du bien

  • Type d'habitation : Appartement
  • Cuisine : Simple
  • Nombre de pièce(s) : 3
  • Nombre de chambre(s) : 2
  • Salles de bain : 1

Aménagement du bien

Extérieur

  • Terrasse : Non
  • Balcon : Oui

Partie Commune

  • Ascenseur : Non
  • Surface habitable : 70 m²
  • Parking : Oui

Localisation du bien

VILLEFRANCHE SUR SAONE (69400) , RHONE (69) - AUVERGNE-RHÔNE-ALPES

Ce bien n'est pas géolocalisé, pour connaitre sa géolocalisation, merci de contacter l'agence.

Consommation énergétique

  • D (243 kWh/m² an)
    D (40 kgCO2/m².an)
    Plus d'info
    243
    40
    40
  • DPE réalisé après le 1er juillet 2021.
  • Entre 1410 € TTC / an et 1950 € TTC / an
    01/01/2021

Nos professionnels vous accompagnent

Contactez notre agence !

199 rue d'Anse 69400 VILLEFRANCHE SUR SAONE

Appeler l’agence Tél : 0474068625

* Champs obligatoires

Nous vous informons de l’existence de la liste d’opposition au démarchage téléphonique « BLOCTEL » sur laquelle vous pouvez vous inscrire (https://www.bloctel.gouv.fr).

En complétant le formulaire «CONTACTEZ NOTRE AGENCE », je reconnais expressément que je consens au traitement de mes données personnelles et que je dispose du droit de retirer mon consentement à tout moment en m'adressant à support@fnaim.fr.
En savoir plus sur la gestion de vos données et droits : consulter nos mentions légales, « article 5/ Données à caractère personnel ».

En envoyant ce message, vous acceptez les conditions d'utilisation du site. Plus d'infos