Fnaim.fr
Menu

Réf. 86687784

Achat Appartement 1 pièce 28m² LYON 3ème

139 000 Honoraires charge vendeur

Ascenseur

Description du bien

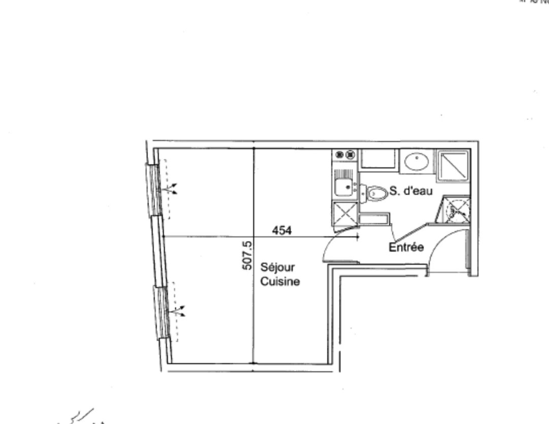
LES CLÉS D’ALEXIA vous propose ce studio de 28 m² situé au 4e étage avec ascenseur d’une résidence récente, sécurisée et bien entretenue, au 162 route de Genas.
Un emplacement pratique et recherché

Le tramway T6 se situe au pied de l’immeuble et les commerces sont accessibles immédiatement, offrant un quotidien simple et fonctionnel.

Une pièce de vie lumineuse et facile à aménager
D’environ 20 m², elle bénéficie de deux grandes fenêtres apportant une belle luminosité.

Son agencement permet d’organiser distinctement un espace nuit, un coin séjour et un espace repas ou bureau, comme illustré par le home staging proposé.

Une cuisine intégrée et fonctionnelle
Discrète et bien pensée, elle s’intègre naturellement à la pièce sans empiéter sur les volumes de vie.

Confort et prestations
Double vitrage
Chauffage individuel électrique
DPE en C permettant une bonne maîtrise des charges
Copropriété récente sans travaux à prévoir

Les plus
Possibilité d’acquérir un garage box en supplément au prix de 20 000 €, un véritable atout dans le secteur
Ce bien conviendra parfaitement pour un premier achat ou un investissement locatif, avec un loyer meublé estimé à environ 650...

Etat des risques et pollutions

Les informations sur les risques auxquels ce bien est exposé sont disponibles sur le site Géorisques : www.georisques.gouv.fr.

Caractéristiques du bien

Composition du bien

  • Type d'habitation : Appartement
  • Cuisine : Type de cuisine Non communique
  • Nombre de pièce(s) : 1

Aménagement du bien

Extérieur

  • Terrasse : Non
  • Balcon : Non

Partie Commune

  • Ascenseur : Oui
  • Surface habitable : 28 m²

Localisation du bien

LYON 03 (69003) , RHONE (69) - AUVERGNE-RHÔNE-ALPES

Ce bien n'est pas géolocalisé, pour connaitre sa géolocalisation, merci de contacter l'agence.

Consommation énergétique

  • C (194 kWh/m² an)
    A (5 kgCO2/m².an)
    Plus d'info
    194
    5
    5
  • DPE réalisé après le 1er juillet 2021.
  • Entre 400 € TTC / an et 560 € TTC / an
    01/01/2021

Nos professionnels vous accompagnent

Contactez notre agence !

48 Avenue du Maréchal de Saxe 69006 LYON 06

Appeler l’agence Tél : +33 (0)7 67 40 81 30

* Champs obligatoires

Nous vous informons de l’existence de la liste d’opposition au démarchage téléphonique « BLOCTEL » sur laquelle vous pouvez vous inscrire (https://www.bloctel.gouv.fr).

En complétant le formulaire «CONTACTEZ NOTRE AGENCE », je reconnais expressément que je consens au traitement de mes données personnelles et que je dispose du droit de retirer mon consentement à tout moment en m'adressant à support@fnaim.fr.
En savoir plus sur la gestion de vos données et droits : consulter nos mentions légales, « article 5/ Données à caractère personnel ».

En envoyant ce message, vous acceptez les conditions d'utilisation du site. Plus d'infos