Fnaim.fr
Menu

Réf. 547.JAK

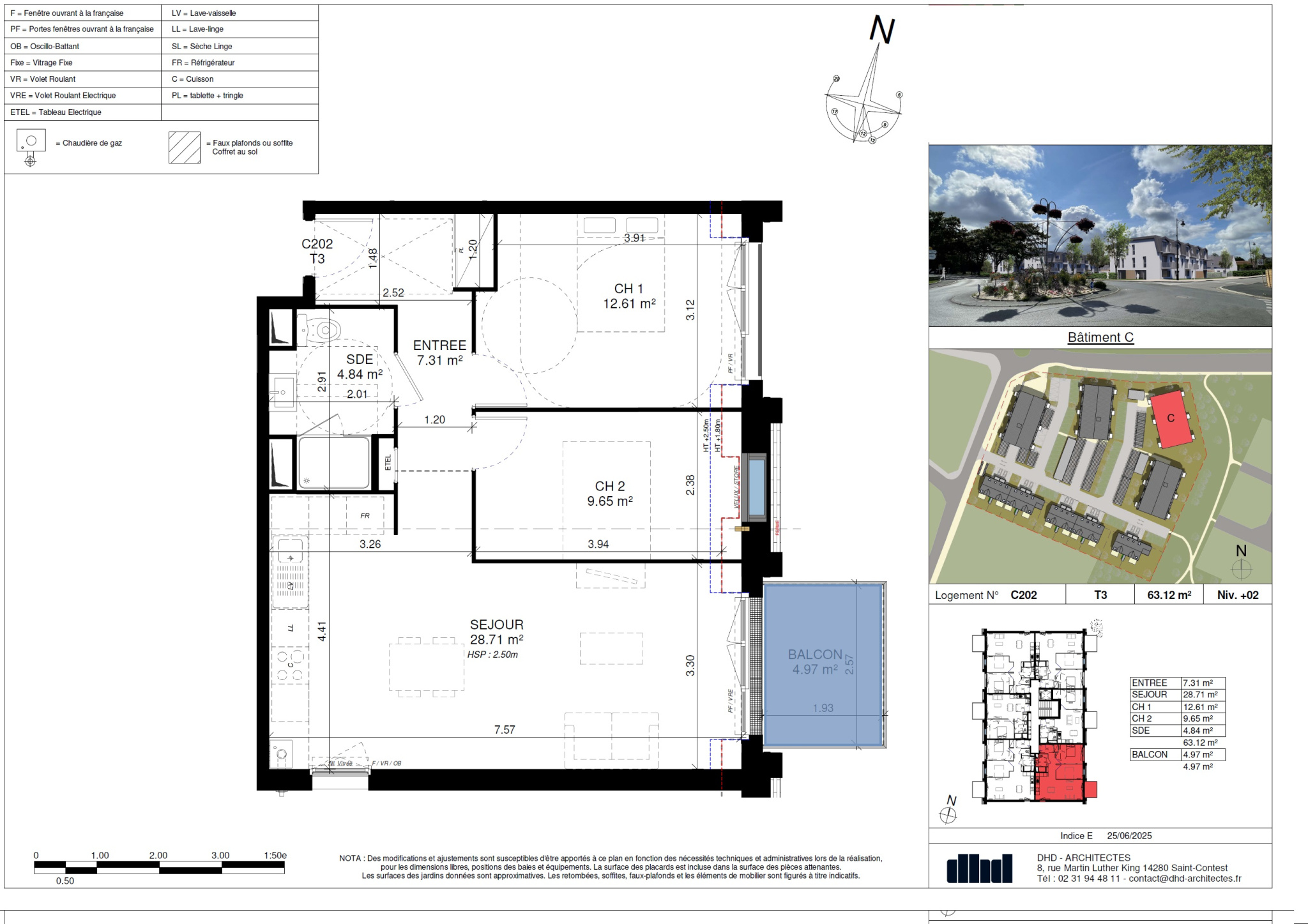
Achat Appartement 3 pièces 63m² ST AUBIN SUR MER 14750

283 900 Honoraires charge vendeur

2 chambres Balcon Ascenseur Parking / Garage

Description du bien

Nuances immobilières vous propose à SAINT AUBIN SUR MER à moins de 10 minutes à pied de la plage, un grand 3Pièces de 63m2 au 2em étage sur 2 avec ascenseur, disposant d'un balcon exposé à l'Est, une cave, 2 parkings extérieurs.
Cet appartement se situe au sein d'un bel ensemble résidentiel .composé de 4 petits immeubles de 2 étages et et quelques maisons.
Particularité :Une grande pièce de vie de 29m2 offrant une exposition Est et Sud, avec fenetre coté cuisine.
Idéal pour une résidence secondaire, ou une future résidence principale.
Dernières normes phoniques et thermiques.
Habitable en 2027.
'Les informations sur les risques auxquels ce bien est exposé sont disponibles sur le site Géorisques : www.georisques.gouv.fr'.

Etat des risques et pollutions

Les informations sur les risques auxquels ce bien est exposé sont disponibles sur le site Géorisques : www.georisques.gouv.fr.

Caractéristiques du bien

Composition du bien

  • Type d'habitation : Appartement
  • Cuisine : Type de cuisine Non communique
  • Nombre de pièce(s) : 3
  • Nombre de chambre(s) : 2

Aménagement du bien

Extérieur

  • Terrasse : Non
  • Balcon : Oui

Partie Commune

  • Ascenseur : Oui
  • Surface habitable : 63 m²
  • Parking : Oui

Localisation du bien

ST AUBIN SUR MER (14750) , CALVADOS (14) - NORMANDIE

Ce bien n'est pas géolocalisé, pour connaitre sa géolocalisation, merci de contacter l'agence.

Consommation énergétique

  • C (115 kWh/m² an)
    C (15 kgCO2/m².an)
    Plus d'info
    115
    15
  • DPE réalisé avant le 1er juillet 2021.
  • 661€ TTC / an
    01/01/2021

Nos professionnels vous accompagnent

Contactez notre agence !

10 rue de l'Oratoire 14000 CAEN

Appeler l’agence Tél : 0231084040

* Champs obligatoires

Nous vous informons de l’existence de la liste d’opposition au démarchage téléphonique « BLOCTEL » sur laquelle vous pouvez vous inscrire (https://www.bloctel.gouv.fr).

En complétant le formulaire «CONTACTEZ NOTRE AGENCE », je reconnais expressément que je consens au traitement de mes données personnelles et que je dispose du droit de retirer mon consentement à tout moment en m'adressant à support@fnaim.fr.
En savoir plus sur la gestion de vos données et droits : consulter nos mentions légales, « article 5/ Données à caractère personnel ».

En envoyant ce message, vous acceptez les conditions d'utilisation du site. Plus d'infos