Fnaim.fr
Menu

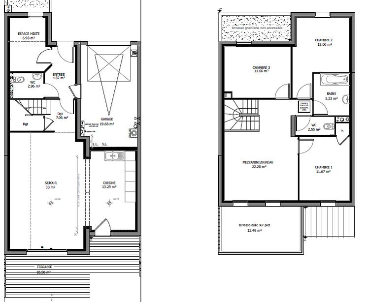
Achat Maison 5 pièces 130m² ANGERS 49100

348 150 Honoraires charge acquéreur inclus : 5.5% TTC (329002 € hors honoraires)

3 chambres Jardin Parking / Garage

Description du bien

Exclusivité de l'ETOILE IMMOBILIERE. Maison contemporaine de 2010 pouvant accueillir famille et amis, et située à la jonction du CHU d'Angers, de Ste Thérèse et des Hauts de St Aubin Très fonctionnelle, elle propose dès l'entrée de nombreux rangements, un bureau et un espace de vie spacieux, lumineux et ouvert sur sa vaste cuisine. Le garage de 20m2 facilitera votre stationnement dans ce secteur fortement demandé. A l'étage, les 3 grandes chambres sont complétées d'une mezzanine aux dimensions permettant un aménagement combiné bureau-chambre. Le petit truc en plus : une terrasse attenante à la mezzanine de l'étage pouvant satisfaire les envies de détente et de soleil tout en télétravaillant depuis l'espace bureau par exemple ! Jardin et terrasse du rez-de-chaussée complètent cette offre exclusive. Les bus et tramway sont aisément accessibles, ainsi que les différents commerces de proximité. Classement énergétique C. Estimation des coûts annuels d'énergie entre 1368EUR et 1850EUR (index 2023). Une visite 2 Thomas PORRET 06.76.81.74.97 agent commercial EI/RCS 808006472 Conseiller immobilier depuis 20 ans : Votre projet est sous une bonne Étoile. Les informations sur les risques auxquels ce bien est exposé sont disponibles sur le site Géorisques.   ACHAT - VENTE - GESTION - LOCATION - ESTIMATION - CONSEIL Types de biens : Maisons, Appartements, Immeubles, Monopropriété et Copropriété, Ferme, Parking, Garage, Terrains... Secteurs : Angers : Centre, Lafayette, Eblé, Madeleine, Saint Léonard, Roseraie, Deux croix, Banchais, Montplaisir, Eventard, Saint Serge, Ney, Chalouère, Hauts de Saint Aubin, Doutre, Camus, Belle Beille, Saint Jacques, Nazareth, Lac de Maine. Première Couronne : Beaucouzé, Bouchemaine, Saint Léger de Linières, Avrillé, Montreuil Juigné, Ecouflant, Saint sylvain d'Anjou, SaInt Barthélémy d'Anjou, Trélazé, Les Ponts de Cé, Mais aussi : Briollay, Feneu, Soulaire-et-Bourg, Sceaux d'Anjou, Grez-Neuville, Le lion d'Angers, Champigé, Etriché, Tiercé, Seiches sur le Loir, Huillé, Lézigné, Baracé, Durtal, Les rairies, Montigné-les-Rairies, Jarzé, Bauné, Corné, Mazé-Milon, Beaufort-en-Anjou, Le Plessis-Grammoire, Loire Authion, Mûrs erigné, Sainte-Melaine-sur-Aubance, Brissac-Loire-Aubance, Les Garennes sur Loire, Saint-Martin-du-Fouilloux, Saint-Clément-de-la-Place, Saint-Lambert-la-Potherie.
Cette annonce vous est proposée par M. THOMAS PORRET - EI - NoRSAC: RCS808006472, Enregistré à Chambre de commerce et de l'industrie de ANGERS

Etat des risques et pollutions

Les informations sur les risques auxquels ce bien est exposé sont disponibles sur le site Géorisques : www.georisques.gouv.fr.

Caractéristiques du bien

Composition du bien

  • Type d'habitation : Maison
  • Nombre de chambres : 3
  • Nombre de salles de bain : 1
  • Cuisine : Américaine

Aménagement du bien

  • Cave : Non
  • Garage / Parking : Oui
    • Surface habitable : 130 m²
    • Parking : Oui

    Localisation du bien

    ANGERS (49100) , MAINE-ET-LOIRE (49) - PAYS-DE-LA-LOIRE

    Ce bien n'est pas géolocalisé, pour connaitre sa géolocalisation, merci de contacter l'agence.

    Consommation énergétique

    • B (106 kWh/m² an)
      C (20 kgCO2/m².an)
      Plus d'info
      106
      20
      20
    • DPE réalisé après le 1er juillet 2021.
    • Entre 1368 € TTC / an et 1850 € TTC / an
      01/01/2023

    Nos professionnels vous accompagnent

    Contactez notre agence !

    41 rue des Lices 49100 ANGERS

    Appeler l’agence Tél : 0241399039

    * Champs obligatoires

    Nous vous informons de l’existence de la liste d’opposition au démarchage téléphonique « BLOCTEL » sur laquelle vous pouvez vous inscrire (https://www.bloctel.gouv.fr).

    En complétant le formulaire «CONTACTEZ NOTRE AGENCE », je reconnais expressément que je consens au traitement de mes données personnelles et que je dispose du droit de retirer mon consentement à tout moment en m'adressant à support@fnaim.fr.
    En savoir plus sur la gestion de vos données et droits : consulter nos mentions légales, « article 5/ Données à caractère personnel ».

    En envoyant ce message, vous acceptez les conditions d'utilisation du site. Plus d'infos