Fnaim.fr
Menu

Visite virtuelle
Exclusivité
Réf. 10202SC

Achat Maison 6 pièces 88m² GAVRAY SUR SEINE 50450

139 000 Honoraires charge vendeur

3 chambres Jardin

Description du bien


EXCLUSIVITÉ maison idéalement située en plein centre de Gavray-sur-Sienne ! Visite virtuelle disponible.
Vous rêvez d'un emplacement tout à pied avec commerces, écoles et services à proximité Cette maison est faite pour vous
Atout majeur : une vraie vie de plain-pied, rare sur le secteur !
Description du bien:
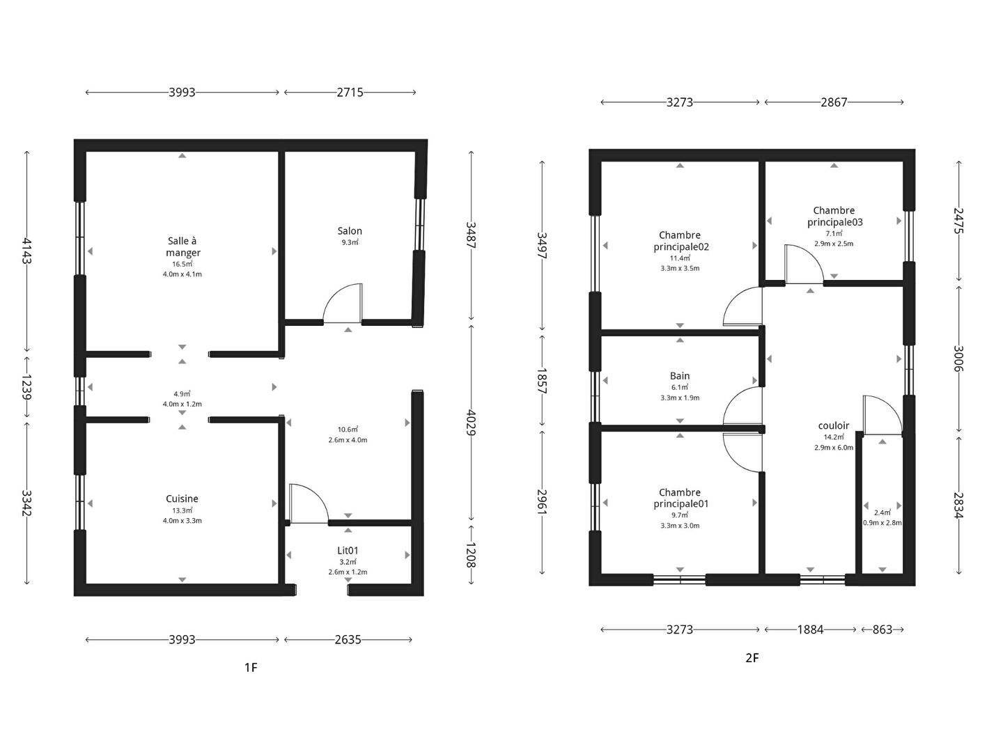
Au rez-de-chaussée, vous trouverez :
Une cuisine
Un séjour lumineux
Une chambre
WC indépendant
Dégagement
À l'étage :
Deux chambres
Un bureau (idéal télétravail ou chambre d'appoint)
Une salle d'eau
Dégagement
Au 2ème étage :
Un grenier, parfait pour du stockage ou un futur aménagement
Petit débarras en prolongement de la maison
Petit terrain, agréable pour profiter des beaux jours

Les + qui font la différence

Emplacement central recherché
Commerces accessibles à pied
Vie de plain-pied possible
Classe énergie F (363) classe climat C (11)
Montant estimé des dépenses annuelles d'énergie pour un usage standard : entre 2950Euro et 4040Euro / an, indexées aux années 2021, 2022 et 2023 (abonnement compris).

Les informations sur les risques auxquels ce bien est exposé sont disponibles sur le site
Géorisques : www.georisques.gouv.fr

PRIX : 139.000Euro honoraires charge vendeur Réf 10202 SC
Contact DELAMARCHE IMMOBILIER
Samuel COLLIBEAUX
Tél 02 33 91 40 43 ou 07 76 86 35 53




Etat des risques et pollutions

Les informations sur les risques auxquels ce bien est exposé sont disponibles sur le site Géorisques : www.georisques.gouv.fr.

Caractéristiques du bien

Composition du bien

  • Type d'habitation : Maison
  • Nombre de chambres : 3
  • Cuisine : Type de cuisine Non communique

Aménagement du bien

  • Cave : Non
  • Garage / Parking : Non
    • Surface habitable : 88 m²

    Localisation du bien

    GAVRAY SUR SEINE (50450) , MANCHE (50) - NORMANDIE

    Consommation énergétique

    • F (363 kWh/m² an)
      C (11 kgCO2/m².an)
      Plus d'info
      363
      11
      11
    • DPE réalisé après le 1er juillet 2021.
    • Entre 2950 € TTC / an et 4040 € TTC / an
      Non communiqué
    • Logement à consommation énergétique excessive : classe F

    Nos professionnels vous accompagnent

    Contactez notre agence !

    45 rue de la Libération 50320 LA HAYE PESNEL

    Appeler l’agence Tél : 0233914043

    * Champs obligatoires

    Nous vous informons de l’existence de la liste d’opposition au démarchage téléphonique « BLOCTEL » sur laquelle vous pouvez vous inscrire (https://www.bloctel.gouv.fr).

    En complétant le formulaire «CONTACTEZ NOTRE AGENCE », je reconnais expressément que je consens au traitement de mes données personnelles et que je dispose du droit de retirer mon consentement à tout moment en m'adressant à support@fnaim.fr.
    En savoir plus sur la gestion de vos données et droits : consulter nos mentions légales, « article 5/ Données à caractère personnel ».

    En envoyant ce message, vous acceptez les conditions d'utilisation du site. Plus d'infos