Fnaim.fr
Menu

Réf. DMV1310150479

Achat Appartement 3 pièces 72m² SALLANCHES 74700

292 500 Honoraires charge vendeur

2 chambres Balcon Ascenseur Parking / Garage

Description du bien

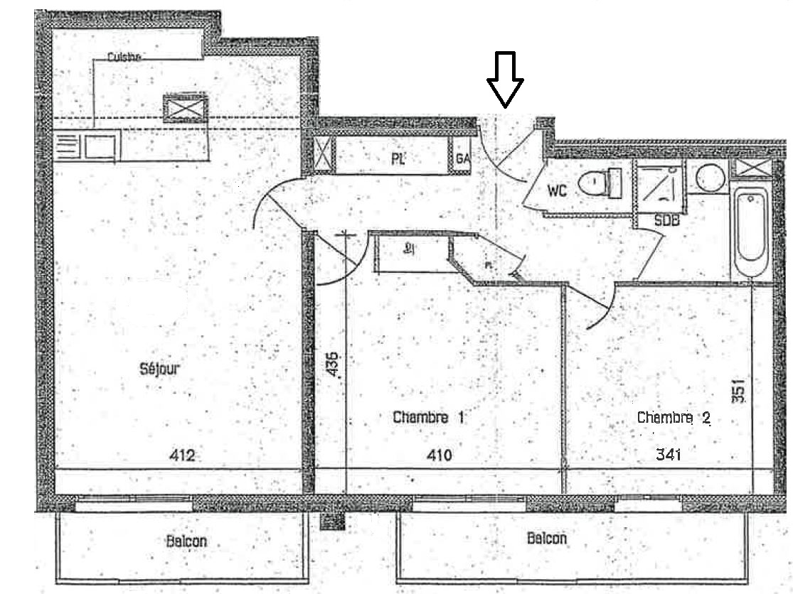
Appartement 3 pièces de 72,6m2 avec balcons à vendre sur le coteau de Sallanches
Le bien est composé d'une entrée avec placards, un vaste séjour de 30m2 avec cuisine ouverte donnant sur un balcon côté Est avec une vue magnifique sur le Mont-Blanc, 2 grandes chambres dont une avec balcon, une salle de bains avec baignoire et douche, et un wc séparé.
Une cave et un garage complètent le bien.
Les charges comprennent tous les frais afférents à la copropriété avec l'eau froide, l'eau chaude et le chauffage au gaz.
Copropriété de 2007 avec ascenseur et parking collectif, à deux pas du centre-ville.
A visiter au plus vite !

Etat des risques et pollutions

Les informations sur les risques auxquels ce bien est exposé sont disponibles sur le site Géorisques : www.georisques.gouv.fr.

Caractéristiques du bien

Composition du bien

  • Type d'habitation : Appartement
  • Cuisine : Type de cuisine Non communique
  • Nombre de pièce(s) : 3
  • Nombre de chambre(s) : 2
  • Salles de bain : 1

Aménagement du bien

Extérieur

  • Terrasse : Non
  • Balcon : Oui

Partie Commune

  • Ascenseur : Oui
  • Surface habitable : 72 m²
  • Parking : Oui

Informations sur la copropriété

  • Bien soumis au statut de la copropriété
  • Nombre de lots : 89
  • Quote part charges courantes : 2300 €/an
  • Procédure en cours : Non

Localisation du bien

SALLANCHES (74700) , HAUTE-SAVOIE (74) - AUVERGNE-RHÔNE-ALPES

Ce bien n'est pas géolocalisé, pour connaitre sa géolocalisation, merci de contacter l'agence.

Consommation énergétique

  • C (136 kWh/m² an)
    C (27 kgCO2/m².an)
    Plus d'info
    136
    27
    27
  • DPE réalisé après le 1er juillet 2021.
  • Entre 626 € TTC / an et 846 € TTC / an
    01/01/2021

Nos professionnels vous accompagnent

Contactez notre agence !

158 PLACE CHARLES ALBERT 74700 SALLANCHES

Appeler l’agence Tél : 04 50 58 48 07

* Champs obligatoires

Nous vous informons de l’existence de la liste d’opposition au démarchage téléphonique « BLOCTEL » sur laquelle vous pouvez vous inscrire (https://www.bloctel.gouv.fr).

En complétant le formulaire «CONTACTEZ NOTRE AGENCE », je reconnais expressément que je consens au traitement de mes données personnelles et que je dispose du droit de retirer mon consentement à tout moment en m'adressant à support@fnaim.fr.
En savoir plus sur la gestion de vos données et droits : consulter nos mentions légales, « article 5/ Données à caractère personnel ».

En envoyant ce message, vous acceptez les conditions d'utilisation du site. Plus d'infos