Fnaim.fr
Menu

Réf. 435416MHP

Achat Maison 8 pièces 196m² CIRY SALSOGNE 02220

350 000 Honoraires charge vendeur

5 chambres Jardin

Description du bien

Derrière sa façade, cette maison T8 dévoile des volumes généreux et une organisation idéale pour une vie de famille confortable, évolutive et fonctionnelle.

Dès l'entrée, les espaces de vie s'enchaînent naturellement. Le salon et le séjour offrent de belles surfaces pour recevoir et partager, tandis que la cuisine, prolongée par un cellier et une buanderie, facilite le quotidien. Un WC complète ce niveau, sans oublier le garage directement accessible, un vrai plus en pratique.

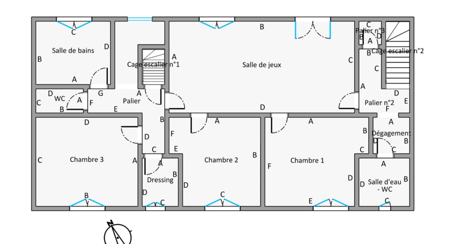
A l'étage, la maison affirme tout son potentiel familial. Trois chambres, un dressing, une salle de bains, une salle d'eau avec WC et un second WC permettent à chacun de trouver sa place. Une salle de jeux vient compléter cet étage, parfaite pour les enfants, un espace télétravail ou une pièce de loisirs selon vos besoins. Le deuxième étage ouvre encore le champ des possibles avec deux chambres supplémentaires, des dégagements bien pensés et un grenier aménageable, idéal pour créer un nouvel espace selon vos projets : chambre, bureau, atelier ou salle de loisirs. En complément, le sous-sol accueille deux caves, une chaufferie et des espaces de rangement appréciables, apportant un vrai confort au quotidien. A l'extérieur, un atelier indépendant vient parfaire l'ensemble, parfait pour le bricolage, le stockage ou une activité annexe.
Cette maison s'adresse à ceux qui recherchent de l'espace, de la polyvalence et un bien capable d'évoluer avec leurs projets de vie. Une visite suffit pour en saisir tout le potentiel.
Le prix de ce bien est de 350 000 euros, honoraires à la charge du vendeur.
DPE.D GE. B
Montant estimé des dépenses annuelles d'énergie pour un usage standard entre 3400 et 4700 euros indexées aux années 2025 (ou 2021 uniquement).
Pour visiter et vous accompagner dans votre projet, contactez Marie-Hélène PITOIS, au 0767622131 ou, par courriel à mh.pitois@proprietes-privees.com.
Selon l'article L.561.5 du Code Monétaire et Financier, pour l'organisation de la visite, la présentation d'une pièce d'identité vous sera demandée.
Cette présente annonce a été rédigée sous la responsabilité éditoriale de Marie-Hélène PITOIS agissant sous le statut d'agent commercial immatriculé au RSAC SOISSONS 498 437 011 auprès de SAS PROPRIETES PRIVEES, au capital de 44 920 euros, ZAC LE CHÊNE FERRÉ - 44 ALLÉE DES CINQ CONTINENTS 44120 VERTOU; SIRET 487 624 777 00040, RCS Nantes. Carte Professionnelle Transactions sur immeubles et fonds de commerce (T) et Gestion immobilière (G) n°CPI 4401 2016 000 010 388 délivrée par la CCI Nantes - Saint Nazaire. Compte séquestre n°30932508467 BPA SAINT-SEBASTIEN-SUR-LOIRE (44230). Garantie GALIAN-SMABTP - 89 rue de la Boétie, 75008 Paris - n°28137 J pour 2 000 000 euros pour T et 120 000 euros pour G. Assurance responsabilité civile professionnelle par GALIAN-SMABTP n° de police 28137.J
Mandat réf : 435416 - Le professionnel garantit et sécurise votre projet immobilier.

Marie-Hélène PITOIS (EI) Agent Commercial - Numéro RSAC : SOISSONS 498 437 011 - .
Les informations sur les risques auxquels ce bien est exposé sont disponibles sur le site Géorisques : www. georisques. gouv. fr

Etat des risques et pollutions

Les informations sur les risques auxquels ce bien est exposé sont disponibles sur le site Géorisques : www.georisques.gouv.fr.

Caractéristiques du bien

Composition du bien

  • Type d'habitation : Maison
  • Nombre de chambres : 5
  • Nombre de salles de bain : 1
  • Cuisine : Simple

Aménagement du bien

  • Cave : Non
  • Garage / Parking : Non
    • Surface habitable : 196 m²

    Localisation du bien

    CIRY SALSOGNE (02220) , AISNE (02) - HAUTS-DE-FRANCE

    Ce bien n'est pas géolocalisé, pour connaitre sa géolocalisation, merci de contacter l'agence.

    Consommation énergétique

    • D (244 kWh/m² an)
      B (7 kgCO2/m².an)
      Plus d'info
      244
      7
      7
    • DPE réalisé après le 1er juillet 2021.
    • Entre 3400 € TTC / an et 4700 € TTC / an
      Non communiqué

    Nos professionnels vous accompagnent

    Contactez notre agence !

    44 Allée des Cinq Continents. ZAC Le Chêne Ferré 44120 VERTOU

    Appeler l’agence Tél : 07 67 62 21 31

    * Champs obligatoires

    Nous vous informons de l’existence de la liste d’opposition au démarchage téléphonique « BLOCTEL » sur laquelle vous pouvez vous inscrire (https://www.bloctel.gouv.fr).

    En complétant le formulaire «CONTACTEZ NOTRE AGENCE », je reconnais expressément que je consens au traitement de mes données personnelles et que je dispose du droit de retirer mon consentement à tout moment en m'adressant à support@fnaim.fr.
    En savoir plus sur la gestion de vos données et droits : consulter nos mentions légales, « article 5/ Données à caractère personnel ».

    En envoyant ce message, vous acceptez les conditions d'utilisation du site. Plus d'infos